Watermint Close, Cannock
By Lovett&Co. Estate Agents
£ 400,000
Reviews
3 out of 5 stars
Lovett&Co. Estate Agents says ..
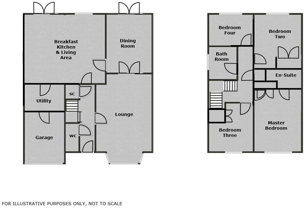
Lovett&Co. Estate Agents are delighted to offer for sale this immaculately presented four bedroom detached family home situated in a quiet cul-de-sac, within a sought after area with excellent local schooling. This ready to move into property has been modernised throughout and briefly compris...
Property Oracle says ..
This property is a 4-bedroom, 2-bathroom detached house located in Watermint Close, Cannock, Staffordshire. The list price is £400,000.
The property appears to be in excellent condition, having undergone recent modernisation and boasting a contemporary kitchen and updated bathrooms. The interior is well-presented and stylish. The images show a modern, well-maintained property with a recently updated kitchen and bathrooms. There is evidence of tasteful décor choices throughout. The property benefits from a well-maintained garden.
The location is within reasonable proximity to several primary schools, some of which have a good Ofsted rating. There are also several train stations within a reasonable commuting distance, providing access to other towns and cities. The property has a private rear garden, which adds to its appeal.
Considering the average house price in the area is £284,468 and the average price per square foot is £305, this property, at £400,000, is priced above average. However, its size (1420 sqft), modern condition, and the inclusion of a garden justify the higher price point compared to other properties in the area. The property is larger than the average property in the area. The higher price may be reflective of the modern condition and the desirable features.
Therefore, we give this property 7 / 10. *Disclaimer: This is our option and does constitute a recommendation or financial advice. Do your own research. *
- Price
- 7
- Condition
- 9
- Location
- 7
- Land
- 7
- Bedrooms
- 4
- Bathrooms
- 2
- Sqft (est)
- 1,420.00
The heatmap indicates the level of crime in the area. The color of the heatmap indicates the crime severity and recency.
Metrics Year-on-Year
- Average area value
- 289,026.00 £Increased by 21.49 %
- Est sale value
- 433,100.00 £Increased by 23.48 %
- Average area rental value
- 978.00 £/moIncreased by 8.91 %
- Est letting value
- 1,420.00 £/mo
- Est rental Yield
- 4.06 %Decreased by 10.38 %
- Crime Rate
- 5.00 %Unchanged by 0.00 %
Agent Activity
Lovett&Co. Estate Agents created the listing.
Nearby Schools
| Name | Type | Ofsted | Distance |
|---|---|---|---|
| Heath Hayes Primary Academy | Academy Sponsor Led | Good | 0.99 KM |
| St Peter'S Cofe Primary Academy | Academy Converter | 1.17 KM | |
| Five Ways Primary School | Community School | Good | 1.19 KM |
| Kingsmead School | Academy Converter | Requires improvement | 1.64 KM |
| Gorsemoor Primary School | Community School | Good | 1.74 KM |
Images
Nearby Streets
| Name | Average Price | Average Sqft | Distance |
|---|---|---|---|
| Beacon Way | £ 220,000 | 0 | 0.00 KM |
| Horseshoe Drive | £ 0 | 0 | 0.00 KM |
| Albany Drive | £ 500,000 | 0 | 0.00 KM |
| Sherbourne Avenue | £ 270,000 | 0 | 0.00 KM |
| Brickworks Road | £ 0 | 0 | 0.00 KM |
Nearby Transport
| Name | NLC | TLC | Distance |
|---|---|---|---|
| Hednesford | 1148 | HNF | 2.56 KM |
| Cannock | 1016 | CAO | 4.93 KM |
| Landywood | 1017 | LAW | 6.71 KM |
| Rugeley Town | 1135 | RGT | 7.60 KM |
| Rugeley Trent Valley | 1084 | RGL | 9.41 KM |
Nearby Listings
| Address | Price | Type | Score | Distance |
|---|---|---|---|---|
| Watermint Close, Cannock | £ 400,000 | BUY | 7 / 10 | 0.00 KM |
| Watermint Close, Wimblebury | £ 400,000 | BUY | 7 / 10 | 0.00 KM |
| Arthur Street, Cannock | £ 135,000 | BUY | 6 / 10 | 0.09 KM |
| Waterlily Close, Hednesford | £ 260,000 | BUY | Unknown | 0.14 KM |
| Watersmead Close, Cannock | £ 210,000 | BUY | 7 / 10 | 0.16 KM |
Nearby Properties
| Address | Price | Distance |
|---|---|---|
| 12 Watermint Close | £ 234,500 | 0.01 KM |
| 54 Watermint Close | £ 355,000 | 0.01 KM |
| 40 Watermint Close | £ 185,000 | 0.01 KM |
| 46 Watermint Close | £ 425,000 | 0.01 KM |
| 6 Watermint Close | £ 94,950 | 0.01 KM |