Low Road, Middleton, Morecambe
By Farrell Heyworth
£ 289,950
Farrell Heyworth says ..
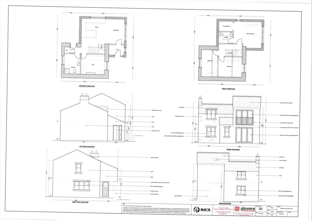
We are pleased to offer for sale a two bedroom detached house located in a popular residential location of Morecambe set in the village of Middleton, close to local amenities schools and transport links as well as being on the edge location of the main gateway link. <br /> <br />The cottage and detached barn provide a exciting opportunity for further development to create a great home on a great plot. The current owners have applied for planning to extend and develop the existing house with a 2 storey extension that would provide 3 bedroom accommodation and balcony. Details of this are contained within this sales information. <br /> <br />The accommodation comprises good size reception room and a fitted kitchen with fitted base units. <br /> <br />To the first floor, there are two good sized bedrooms and a shower room with a walk-in shower, wash basin and wc. <br /> <br />Externally the property offers ample outside space with an outhouse and ample off street parking. <br /> <br />The property requires updating and developing throughout and would be an ideal project for someone wishing to develop this property into a great family home. <br /> <br /><b>What The Agent Says</b><br />This is an ideal project with no chain delay.
- Bedrooms
- 2
- Bathrooms
- 1
The heatmap indicates the level of crime in the area. The color of the heatmap indicates the crime severity and recency.
Metrics Year-on-Year
- Average area value
- 356,495.00 £Increased by 22.65 %
- Average area rental value
- 1,098.00 £/moIncreased by 54.65 %
- Est rental Yield
- 3.70 %Increased by 26.28 %
- Crime Rate
- 50.00 %Unchanged by 0.00 %
Agent Activity
Farrell Heyworth created the listing.
Nearby Schools
| Name | Type | Ofsted | Distance |
|---|---|---|---|
| Trumacar Nursery And Community Primary School | Community School | Good | 2.27 KM |
| Heysham Children'S Centre | Children's Centre | 2.71 KM | |
| Overton St Helen'S Church Of England Primary School | Voluntary Aided School | Good | 2.75 KM |
| Heysham St Peter'S Church Of England Primary School | Voluntary Aided School | Good | 3.11 KM |
| St Patrick'S Catholic Primary School | Voluntary Aided School | Good | 3.23 KM |
Images
Nearby Streets
| Name | Average Price | Average Sqft | Distance |
|---|---|---|---|
| Garden Terrace | £ 165,000 | 0 | 0.00 KM |
| Mallard Close | £ 291,250 | 0 | 0.00 KM |
Nearby Transport
| Name | NLC | TLC | Distance |
|---|---|---|---|
| Heysham Port | 2691 | HHB | 3.56 KM |
| Morecambe | 2695 | MCM | 5.80 KM |
| Bare Lane | 2690 | BAR | 8.07 KM |
| Lancaster | 2685 | LAN | 9.01 KM |
Nearby Listings
| Address | Price | Type | Score | Distance |
|---|---|---|---|---|
| Low Road, Middleton, Morecambe | £ 289,950 | BUY | Unknown | 0.00 KM |
| Carr Lane, Middleton, LA3 3JQ | £ 600,000 | BUY | 7 / 10 | 0.05 KM |
| Low Road,, Middleton, Morecambe | £ 315,000 | BUY | Unknown | 0.09 KM |
| Westbourne Road, Middleton, Morecambe | £ 235,000 | BUY | 7 / 10 | 0.10 KM |
| Carr Lane, Middleton, Morecambe | £ 289,950 | BUY | 6 / 10 | 0.14 KM |
Nearby Properties
| Address | Price | Distance |
|---|---|---|
| 1 Westbourne Road | £ 46,500 | 0.14 KM |
| 3 Westbourne Road | £ 125,000 | 0.14 KM |
| 10 Westbourne Road | £ 120,000 | 0.14 KM |
| 17 Westbourne Road | £ 93,000 | 0.14 KM |
| 15 Westbourne Road | £ 180,000 | 0.14 KM |