Steerforth Street, Earlsfield
By Jacksons Estate Agents
£ 750,000
Reviews
4 out of 5 stars
Jacksons Estate Agents says ..
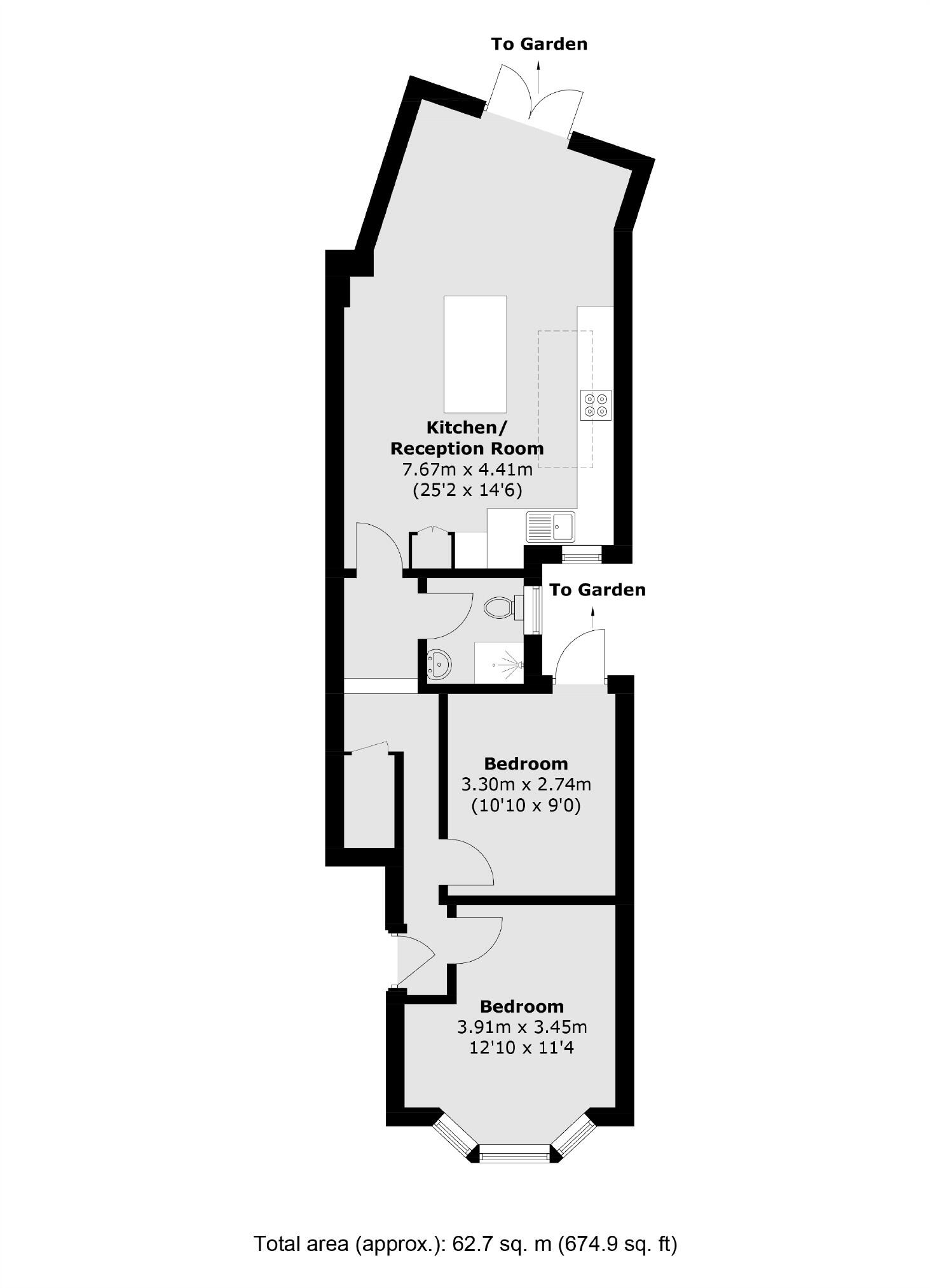
A beautifully presented and newly developed two double bedroom, Victorian conversion flat which has been thoughtfully refurbished and extended by the current vendor to an excellent standard. The property is being offered to the market with no onward chain and a share of the freehold. To the fro...
Property Oracle says ..
This property is a 2 bedroom flat located in Earlsfield, Wandsworth. The area benefits from excellent transport links, with Earlsfield train station just a short walk away, providing easy access to London Victoria and Waterloo. There are also several highly-rated primary schools within a short distance, making it an attractive option for families. The flat itself appears to have been recently renovated to a high standard, with modern fixtures and fittings throughout. The images show a bright, spacious interior with a contemporary kitchen and a well-maintained garden. While the provided data does not give the exact square footage of nearby properties, the average price per square foot in the area is £574. Based on this, and the property’s apparent condition and location, the list price of £750,000 appears to be in line with the market value. However, it is worth noting that the average price for properties in the area is £777,301, suggesting that this property may be slightly undervalued.
Therefore, we give this property 8 / 10. *Disclaimer: This is our option and does constitute a recommendation or financial advice. Do your own research. *
- Price
- 8
- Condition
- 9
- Location
- 9
- Land
- 7
- Bedrooms
- 2
- Bathrooms
- 1
- Sqft (est)
- 573.33
- Lot (est)
- 674.90
The heatmap indicates the level of crime in the area. The color of the heatmap indicates the crime severity and recency.
Metrics Year-on-Year
- Average area value
- 684,091.00 £Decreased by 0.97 %
- Est sale value
- 469,557.27 £Decreased by 1.68 %
- Average area rental value
- 2,456.00 £/moIncreased by 5.54 %
- Est letting value
- 1,146.66 £/moUnchanged by 0.00 %
- Est rental Yield
- 4.31 %Increased by 6.68 %
- Crime Rate
- 6.00 %Unchanged by 0.00 %
Agent Activity
Jacksons Estate Agents created the listing.
Nearby Schools
| Name | Type | Ofsted | Distance |
|---|---|---|---|
| Tram House School | Other Independent Special School | Outstanding | 0.12 KM |
| Garratt Park School | Community Special School | Good | 0.24 KM |
| The Chelsea Group Of Children | Other Independent Special School | Outstanding | 0.39 KM |
| Earlsfield Primary School | Community School | Outstanding | 0.41 KM |
| Wimbledon Park Primary School | Community School | Outstanding | 0.88 KM |
Images
Nearby Streets
| Name | Average Price | Average Sqft | Distance |
|---|---|---|---|
| Duntshill Road | £ 0 | 0 | 0.00 KM |
| Squarey Street | £ 0 | 0 | 0.00 KM |
| Alba Mews | £ 0 | 0 | 0.00 KM |
| Wells Place | £ 0 | 0 | 0.00 KM |
| Atkinson Morley Avenue | £ 0 | 0 | 0.00 KM |
Nearby Transport
| Name | NLC | TLC | Distance |
|---|---|---|---|
| Earlsfield | 5584 | EAD | 0.44 KM |
| Haydons Road | 5289 | HYR | 1.44 KM |
| Wandsworth Town | 5576 | WNT | 2.52 KM |
| Wimbledon | 5578 | WIM | 2.78 KM |
| Wandsworth Common | 5395 | WSW | 2.86 KM |
Nearby Listings
| Address | Price | Type | Score | Distance |
|---|---|---|---|---|
| Steerforth Street, Earlsfield | £ 750,000 | BUY | 8 / 10 | 0.00 KM |
| Steerforth Street, Earlsfield | £ 550,000 | BUY | 6 / 10 | 0.01 KM |
| Steerforth Street, Earlsfield | £ 550,000 | BUY | Unknown | 0.01 KM |
| Steerforth Street, London, SW18 | £ 475,000 | BUY | 7 / 10 | 0.01 KM |
| Steerforth Street, London, SW18 | £ 650,000 | BUY | 6 / 10 | 0.03 KM |
Nearby Properties
| Address | Price | Distance |
|---|---|---|
| 12a Steerforth Street | £ 289,950 | 0.03 KM |
| 20 Steerforth Street | £ 730,000 | 0.03 KM |
| 8 Steerforth Street | £ 535,500 | 0.03 KM |
| 18 Steerforth Street | £ 200,000 | 0.03 KM |
| 22a Steerforth Street | £ 74,500 | 0.03 KM |