Lupin Farm house, Alrewas Road, Kings Bromley, DE13 7HP
By Paul Carr Land & New Homes
£ 399,950
Reviews
2 out of 5 stars
Paul Carr Land & New Homes says ..
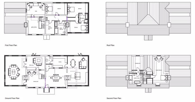
An extremely rare and unique Development Opportunity to acquire an existing Farmhouse with planning permission to create a superb family home of circa 4000 square feet with TWO extensions to create 5 bedrooms. Planning reference 23/00906/FUH. Stunning views over open countryside. Set on the ru...
Property Oracle says ..
Lupin Farm House is a detached property located in Kings Bromley, Staffordshire. The house requires significant renovation but offers a good amount of land. The location provides a balance between rural living and accessibility to amenities and transport links. The asking price reflects the condition of the property and its potential for improvement.
Therefore, we give this property 5 / 10. *Disclaimer: This is our option and does constitute a recommendation or financial advice. Do your own research. *
- Price
- 7
- Condition
- 2
- Location
- 6
- Land
- 7
- Bedrooms
- 4
- Bathrooms
- 1
- Sqft (est)
- 1,040.00
The heatmap indicates the level of crime in the area. The color of the heatmap indicates the crime severity and recency.
Metrics Year-on-Year
- Average area value
- 65,000.00 £Decreased by 67.00 %
- Est sale value
- 127,920.00 £Decreased by 39.11 %
- Average area rental value
- 725.00 £/moIncreased by 21.44 %
- Est letting value
- 1,040.00 £/mo
- Est rental Yield
- 13.38 %Increased by 267.58 %
- Crime Rate
- 51.00 %Unchanged by 0.00 %
Agent Activity
Paul Carr Land & New Homes created the listing.
Nearby Schools
| Name | Type | Ofsted | Distance |
|---|---|---|---|
| Options Trent Acres School | Other Independent Special School | Outstanding | 0.76 KM |
| The Richard Crosse Cofe Primary School | Academy Converter | 0.98 KM | |
| Yoxall St Peter'S Cofe Primary School | Academy Converter | Good | 3.23 KM |
| Hayes Meadow Primary School | Community School | Good | 5.63 KM |
| St Stephen'S Primary School | Community School | Good | 5.87 KM |
Images
Nearby Streets
| Name | Average Price | Average Sqft | Distance |
|---|---|---|---|
| The Croft | £ 382,500 | 0 | 0.00 KM |
| Vicarage Lane | £ 0 | 0 | 0.00 KM |
| Newton Lane | £ 767,500 | 0 | 0.00 KM |
| Fox Court | £ 0 | 0 | 0.00 KM |
| Manor Walk | £ 0 | 0 | 0.00 KM |
Nearby Transport
| Name | NLC | TLC | Distance |
|---|---|---|---|
| Lichfield Trent Valley | 1291 | LTV | 6.99 KM |
| Lichfield City | 1177 | LIC | 7.73 KM |
Nearby Listings
| Address | Price | Type | Score | Distance |
|---|---|---|---|---|
| Lupin Farm house, Alrewas Road, Kings Bromley, DE13 7HP | £ 399,950 | BUY | 5 / 10 | 0.00 KM |
| Plot 4, Lupin Farm Dairy, Alrewas Road, Burton-On-Trent | £ 395,000 | BUY | 6 / 10 | 0.00 KM |
| Alrewas Road, Burton-On-Trent | £ 350,000 | BUY | 7 / 10 | 0.00 KM |
| Plot 3, Lupin Farm Cottage, Alrewas Road, Burton-On-Trent | £ 380,000 | BUY | 6 / 10 | 0.00 KM |
| Alrewas Road, Kings Bromley | £ 550,000 | BUY | Unknown | 0.16 KM |
Nearby Properties
| Address | Price | Distance |
|---|---|---|
| 77 Alrewas Road | £ 235,000 | 0.01 KM |
| The Old Vicarage | £ 740,000 | 0.01 KM |
| Old Vicarage Stables | £ 337,500 | 0.01 KM |
| 73 Alrewas Road | £ 140,100 | 0.01 KM |
| Sunningdale | £ 495,000 | 0.01 KM |