HU
Sun Lane, Burley In Wharfedale, Ilkley
By Hunters
£ 450,000
Hunters says ..
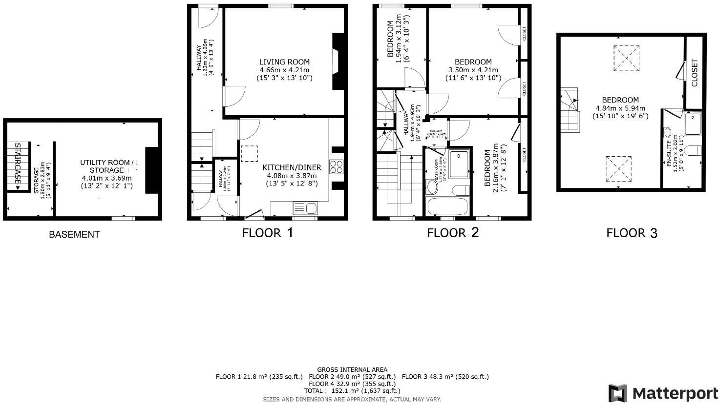
This beautiful character Victorian stone built mid terrace property has been completely renovated from top to bottom, and must be seen to be truly appreciated. To the ground floor the property comprises of an entrance hallway with original stone flagged floor, a spacious lounge, a great sized Sha...
- Bedrooms
- 4
- Bathrooms
- 2
The heatmap indicates the level of crime in the area. The color of the heatmap indicates the crime severity and recency.
Metrics Year-on-Year
- Average area value
- 474,196.00 £Decreased by 8.85 %
- Average area rental value
- 1,571.00 £/moIncreased by 10.17 %
- Est rental Yield
- 3.98 %Increased by 20.97 %
- Crime Rate
- 41.00 %Unchanged by 0.00 %
from 520,249.00 £
from 1,426.00 £/mo
from 3.29 %
from 41.00 %
Agent Activity
Hunters created the listing.
Nearby Schools
| Name | Type | Ofsted | Distance |
|---|---|---|---|
| Ghyll Royd School And Pre-School | Other Independent School | 0.58 KM | |
| Burley Oaks Primary School | Community School | Outstanding | 0.79 KM |
| Burley And Woodhead Cofe Primary School | Voluntary Controlled School | Good | 1.13 KM |
| Askwith Community Primary School | Academy Converter | 2.22 KM | |
| Menston Primary School | Community School | Good | 3.16 KM |
Images
Nearby Streets
| Name | Average Price | Average Sqft | Distance |
|---|---|---|---|
| Victoria Road | £ 515,000 | 0 | 0.00 KM |
| Summer Court | £ 339,983 | 0 | 0.00 KM |
| Mill View | £ 0 | 0 | 0.00 KM |
| Whernside Lane | £ 0 | 0 | 0.00 KM |
| Larch Croft | £ 0 | 0 | 0.00 KM |
Nearby Transport
| Name | NLC | TLC | Distance |
|---|---|---|---|
| Burley-In-Wharfedale | 8565 | BUW | 0.77 KM |
| Menston | 8574 | MNN | 3.26 KM |
| Ben Rhydding | 8564 | BEY | 4.93 KM |
| Guiseley | 8567 | GSY | 6.13 KM |
| Baildon | 8552 | BLD | 7.21 KM |
Nearby Listings
| Address | Price | Type | Score | Distance |
|---|---|---|---|---|
| Sun Lane, Burley In Wharfedale, Ilkley | £ 450,000 | BUY | Unknown | 0.00 KM |
| Booth Street, Burley In Wharfedale, Ilkley | £ 285,000 | BUY | 6 / 10 | 0.05 KM |
| Thornton Street, Burley in Wharfedale, Ilkley, West Yorkshire, LS29 | £ 175,000 | BUY | 7 / 10 | 0.07 KM |
| Thornton Street, Burley In Wharfedale, Ilkley | £ 170,000 | BUY | 7 / 10 | 0.07 KM |
| West Terrace, Burley in Wharfedale, Ilkley, West Yorkshire, LS29 | £ 325,000 | BUY | Unknown | 0.09 KM |
Nearby Properties
| Address | Price | Distance |
|---|---|---|
| 36 Sun Lane | £ 162,500 | 0.01 KM |
| 12 Sun Lane | £ 172,500 | 0.01 KM |
| 44 Sun Lane | £ 125,000 | 0.01 KM |
| 30 Sun Lane | £ 339,950 | 0.01 KM |
| 24 Sun Lane | £ 144,000 | 0.01 KM |