Marsh Road, THORNTON-CLEVELEYS
By Barnard Marcus
£ 70,000
Reviews
2 out of 5 stars
Barnard Marcus says ..
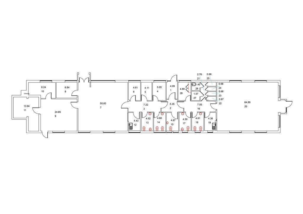
AUCTION SALE 18 November 2025 - Freehold Council Building with permission in principle for a two storey houseSite area approx. 0.19 acres
Property Oracle says ..
This property on Marsh Road in Thornton-Cleveleys presents a unique opportunity. Currently listed as land, the existing structure requires extensive renovation. Its location offers reasonable access to local schools and amenities, enhancing its potential appeal. The price reflects the condition, making it an attractive prospect for those prepared to invest in a comprehensive refurbishment project. The plot offers some land, though it needs landscaping to maximize its value. Overall, this property is ideal for investors or buyers looking for a renovation project with the potential to add significant value.
Therefore, we give this property 5 / 10. *Disclaimer: This is our option and does constitute a recommendation or financial advice. Do your own research. *
- Price
- 8
- Condition
- 3
- Location
- 6
- Land
- 5
- Bedrooms
- 0
- Bathrooms
- 0
The heatmap indicates the level of crime in the area. The color of the heatmap indicates the crime severity and recency.
Metrics Year-on-Year
- Average area value
- 192,500.00 £Decreased by 11.18 %
- Average area rental value
- 715.00 £/moDecreased by 23.77 %
- Est rental Yield
- 4.46 %Decreased by 14.07 %
- Crime Rate
- 5.00 %Unchanged by 0.00 %
Agent Activity
Barnard Marcus created the listing.
Nearby Schools
| Name | Type | Ofsted | Distance |
|---|---|---|---|
| Thornton Cleveleys Royles Brook Primary School | Community School | Good | 0.15 KM |
| Sacred Heart Catholic Primary School, Thornton Cleveleys | Voluntary Aided School | Good | 0.84 KM |
| Great Arley School | Community Special School | Good | 1.08 KM |
| Thornton-Cleveleys Red Marsh School | Community Special School | Outstanding | 1.17 KM |
| Thornton Primary School | Community School | Good | 1.27 KM |
Images
Nearby Streets
| Name | Average Price | Average Sqft | Distance |
|---|---|---|---|
| Millfield Court | £ 0 | 0 | 0.00 KM |
| Hillberry Close | £ 0 | 0 | 0.00 KM |
| The Chase | £ 0 | 0 | 0.00 KM |
| Calder Avenue | £ 0 | 0 | 0.00 KM |
| Burrstone Grange | £ 170,000 | 0 | 0.00 KM |
Nearby Transport
| Name | NLC | TLC | Distance |
|---|---|---|---|
| Poulton-Le-Fylde | 2671 | PFY | 4.35 KM |
| Layton (Lancs) | 2669 | LAY | 4.98 KM |
| Blackpool North | 2739 | BPN | 7.22 KM |
| Blackpool South | 2740 | BPS | 9.52 KM |
Nearby Listings
| Address | Price | Type | Score | Distance |
|---|---|---|---|---|
| Marsh Road, THORNTON-CLEVELEYS | £ 70,000 | BUY | 5 / 10 | 0.00 KM |
| Gaskell Crescent, Thornton, FY5 | £ 240,000 | BUY | 7 / 10 | 0.15 KM |
| Shrewsbury Drive, Thornton-Cleveleys, Lancashire, FY5 | £ 170,000 | BUY | 7 / 10 | 0.17 KM |
| Bardsway, Thornton-Cleveleys, FY5 | £ 160,000 | BUY | 6 / 10 | 0.18 KM |
| Gaskell Crescent, Thornton, FY5 | £ 150,000 | BUY | 5 / 10 | 0.18 KM |
Nearby Properties
| Address | Price | Distance |
|---|---|---|
| 89 Marsh Road | £ 179,000 | 0.00 KM |
| 105 Marsh Road | £ 233,000 | 0.00 KM |
| 97 Marsh Road | £ 40,000 | 0.00 KM |
| 4 Penny Farthing Lane | £ 160,000 | 0.10 KM |
| 3 Penny Farthing Lane | £ 200,000 | 0.10 KM |