Dursley Road, Cambridge
BE

Dursley Road, Cambridge

By Bennett Jones

£ 535,000

Reviews

4 out of 5 stars

Bennett Jones says ..

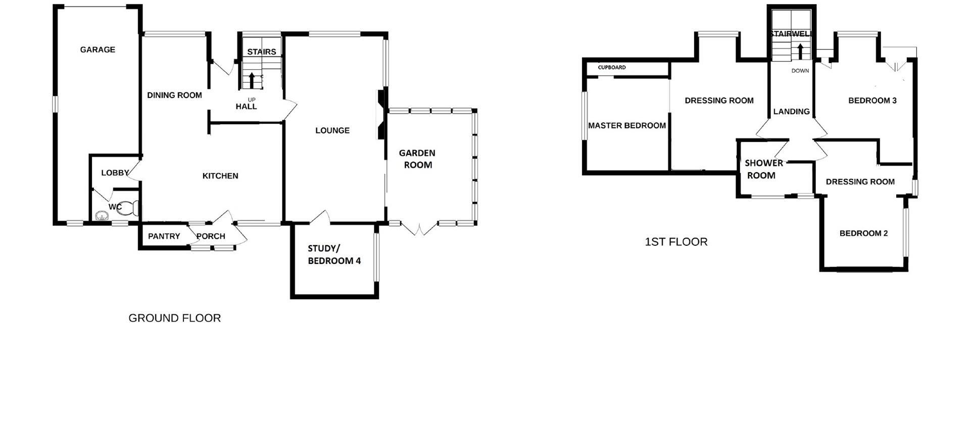
Well presented individual detached house, semi-rural location, entrance hall, spacious kitchen/breakfast room/dining room, utility space, cloakroom, living room, study/occasional fourth bedroom, garden room, three double bedrooms, master and second bedroom both with large dressing rooms, shower r...

Property Oracle says ..

A four-bedroom cottage on Dursley Road, Cambridge, Gloucestershire. Benefits from nearby transportation and schooling. Well-maintained with a generously sized garden, patio, shed, garage, and large driveway. Appears well-priced compared to the area average.

Therefore, we give this property 8 / 10. *Disclaimer: This is our option and does constitute a recommendation or financial advice. Do your own research. *

Price
9
Condition
8
Location
7
Land
8
Bedrooms
4
Bathrooms
1
Sqft (est)
1,946.00

The heatmap indicates the level of crime in the area. The color of the heatmap indicates the crime severity and recency.

Metrics Year-on-Year

Average area value
526,875.00 £
Increased by 21.61 %
from 433,235.00 £
Est sale value
1,136,464.00 £
Increased by 107.83 %
from 546,826.00 £
Average area rental value
1,950.00 £/mo
Increased by 49.54 %
from 1,304.00 £/mo
Est letting value
3,892.00 £/mo
from 0.00 £/mo
Est rental Yield
4.44 %
Increased by 22.99 %
from 3.61 %
Crime Rate
0.00 %
from 0.00 %

Agent Activity

  • Bennett Jones created the listing.

Nearby Schools

NameTypeOfstedDistance
Slimbridge Primary SchoolCommunity SchoolGood1.00 KM
Cam Woodfield Junior SchoolAcademy Sponsor Led3.37 KM
Cam Woodfield Infant SchoolCommunity SchoolGood3.37 KM
Cam Hopton Church Of England Primary SchoolVoluntary Aided SchoolGood3.43 KM
Cam Everlands Primary SchoolCommunity SchoolGood3.53 KM

Images

CP4_9718.jpg CP4_9680.jpg CP4_9674.jpg CP4_9650.jpg CP4_9698.jpg CP4_9618.jpg CP4_9609.jpg CP4_9623.jpg CP4_9626.jpg CP4_9635.jpg CP4_9614.jpg CP4_9692.jpg CP4_9640.jpg CP4_9665.jpg CP4_9693.jpg CP4_9656.jpg CP4_9686.jpg CP4_9683.jpg CP4_9697.jpg CP4_9702.jpg CP4_9712.jpg CP4_9723.jpg CP4_9726.jpg CP4_9729.jpg CP4_9733.jpg

Nearby Streets

NameAverage PriceAverage SqftDistance
Garage Villas £ 000.00 KM
Brunel Road £ 445,00000.00 KM
Pippen Leaze £ 452,50000.00 KM
Halmore Lane £ 850,00000.00 KM
Otter Way £ 000.00 KM

Nearby Transport

NameNLCTLCDistance
Cam And Dursley3238CDU1.13 KM
Stonehouse4770SHU9.68 KM

Nearby Listings

AddressPriceTypeScoreDistance
Dursley Road, Cambridge £ 535,000BUY8 / 100.00 KM
Dursley Road, Cambridge, Gloucester £ 575,000BUYUnknown0.06 KM
Narles Road, Cambridge, Gloucester £ 475,000BUY7 / 100.28 KM
Dursley Road, Cambridge £ 270,000BUY5 / 100.28 KM
Barton Field, Cambridge, Gloucester, GL2 7DH £ 249,950BUYUnknown0.29 KM

Nearby Properties

AddressPriceDistance
Field Row Cottage £ 525,0000.17 KM
Midfields £ 166,0000.17 KM
Brookleaze £ 315,0000.17 KM
3 Barton Field £ 245,0000.32 KM
Glendevon £ 350,0000.32 KM