Prince Of Wales Road, Eversley Court Prince Of Wales Road, NR27
By Millers Estate Agents
£ 200,000
Reviews
3 out of 5 stars
Millers Estate Agents says ..
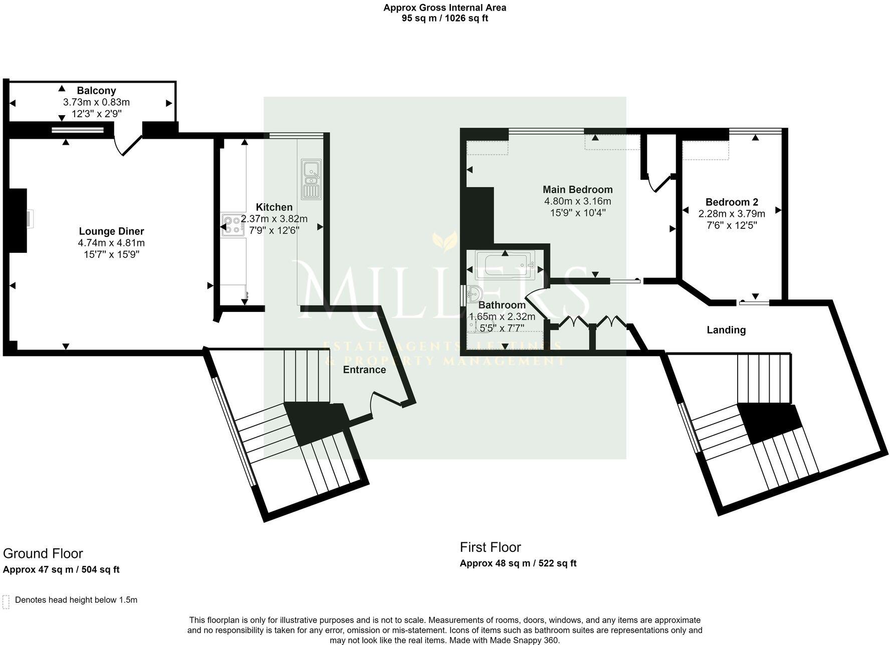
A spacious two bedroom DUPLEX APARTMENT full of CHARM & CHARACTER located in Cromer Town Centre just moments away from THE BEACH. With Off-ROAD PARKING and sold with NO ONWARD CHAIN. Call Millers to view.
Property Oracle says ..
This property is a 2-bedroom apartment located in Cromer, Norfolk. The apartment is situated on Prince of Wales Road and benefits from a central location within the town. The property appears to be in good condition, with a modern kitchen and bathroom. The living area is spacious and benefits from plenty of natural light. While the apartment itself is in good condition, the building shows some signs of age and traditional character. There is no outdoor space associated with this property. The list price of £200,000 is slightly above the average price per square foot for the area, but comparable properties on Prince of Wales Road support this price point.
Therefore, we give this property 6 / 10. *Disclaimer: This is our option and does constitute a recommendation or financial advice. Do your own research. *
- Price
- 7
- Condition
- 8
- Location
- 9
- Land
- 1
- Bedrooms
- 2
- Bathrooms
- 1
- Sqft (est)
- 1,022.57
The heatmap indicates the level of crime in the area. The color of the heatmap indicates the crime severity and recency.
Metrics Year-on-Year
- Average area value
- 318,333.00 £Decreased by 7.87 %
- Est sale value
- 444,817.95 £Decreased by 5.23 %
- Average area rental value
- 1,033.00 £/moIncreased by 9.20 %
- Est letting value
- 1,022.57 £/moUnchanged by 0.00 %
- Est rental Yield
- 3.89 %Increased by 18.24 %
- Crime Rate
- 96.00 %Unchanged by 0.00 %
Agent Activity
Millers Estate Agents created the listing.
Nearby Schools
| Name | Type | Ofsted | Distance |
|---|---|---|---|
| Cromer Academy | Academy Converter | Good | 1.19 KM |
| Cromer Junior School | Academy Converter | 1.33 KM | |
| Suffield Park Infant And Nursery School, Cromer | Community School | Good | 1.47 KM |
| Cromer Children'S Centre | Children's Centre | 1.56 KM | |
| Argyll House | Other Independent Special School | Inadequate | 2.69 KM |
Images
Nearby Streets
| Name | Average Price | Average Sqft | Distance |
|---|---|---|---|
| Chapel Street | £ 0 | 0 | 0.00 KM |
| St Oran's Place# | £ 0 | 0 | 0.00 KM |
| Cromer Promenade | £ 0 | 0 | 0.00 KM |
| Meadow Close | £ 0 | 0 | 0.00 KM |
| Mayfield Drive | £ 330,000 | 0 | 0.00 KM |
Nearby Transport
| Name | NLC | TLC | Distance |
|---|---|---|---|
| Cromer | 7295 | CMR | 0.61 KM |
| Roughton Road | 7297 | RNR | 1.53 KM |
| West Runton | 7329 | WRN | 5.83 KM |
| Gunton | 7299 | GNT | 9.20 KM |
| Sheringham | 7319 | SHM | 9.77 KM |
Nearby Listings
| Address | Price | Type | Score | Distance |
|---|---|---|---|---|
| Prince Of Wales Road, Eversley Court Prince Of Wales Road, NR27 | £ 200,000 | BUY | 6 / 10 | 0.00 KM |
| Oakes House, 4 Hamilton Road, Cromer, NR27 | £ 450,000 | BUY | 6 / 10 | 0.04 KM |
| Prince Of Wales Road, Cromer | £ 160,000 | BUY | 5 / 10 | 0.05 KM |
| Prince Of Wales Road, Cromer NR27 | £ 150,000 | BUY | 6 / 10 | 0.06 KM |
| Prince Of Wales Road, Cromer | £ 220,000 | BUY | 5 / 10 | 0.06 KM |
Nearby Properties
| Address | Price | Distance |
|---|---|---|
| 9 Prince Of Wales Road | £ 69,750 | 0.06 KM |
| 5 Prince Of Wales Road | £ 16,500 | 0.06 KM |
| 7 Prince Of Wales Road | £ 64,500 | 0.06 KM |
| 5 Corner Street | £ 205,000 | 0.09 KM |
| 7 Corner Street | £ 147,000 | 0.09 KM |