Ocean says ..
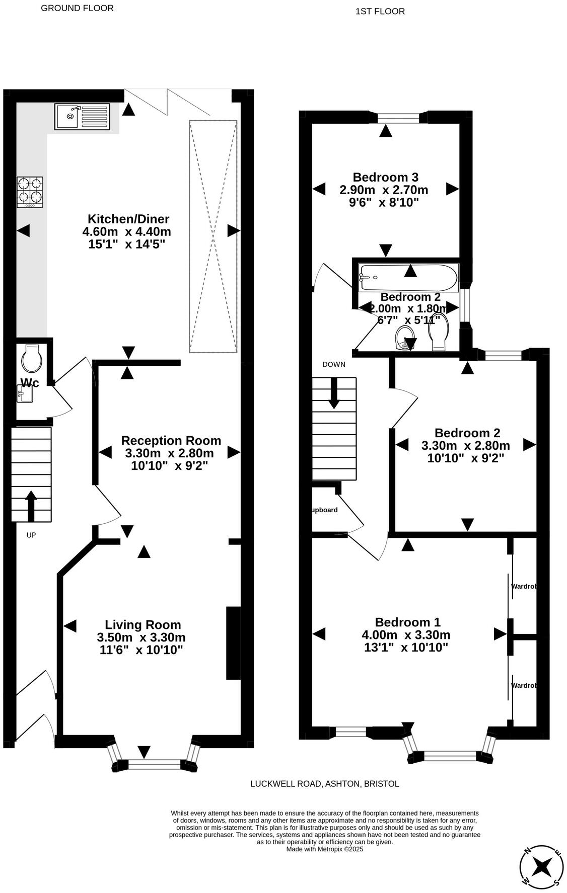
Bright and charming 3-bedroom terrace on Luckwell Road, Ashton. Perfect for those looking for a warm and welcoming family home with a south-west facing garden.
Property Oracle says ..
Therefore, we give this property 6 / 10. *Disclaimer: This is our option and does constitute a recommendation or financial advice. Do your own research. *
- Price
- 6
- Condition
- 7
- Location
- 7
- Land
- 6
- Bedrooms
- 3
- Bathrooms
- 1
The heatmap indicates the level of crime in the area. The color of the heatmap indicates the crime severity and recency.
Metrics Year-on-Year
- Average area value
- 331,250.00 £Decreased by 14.00 %
- Average area rental value
- 1,534.00 £/moDecreased by 7.03 %
- Est rental Yield
- 5.56 %Increased by 8.17 %
- Crime Rate
- 7.00 %Unchanged by 0.00 %
from 385,168.00 £
from 1,650.00 £/mo
from 5.14 %
from 7.00 %
Agent Activity
Ocean created the listing.
Nearby Schools
| Name | Type | Ofsted | Distance |
|---|---|---|---|
| Luckwell Primary School | Academy Sponsor Led | 0.32 KM | |
| Compass Point: South Street School & Children'S Centre | Children's Centre | 0.69 KM | |
| Compass Point Primary School | Academy Converter | 0.71 KM | |
| Parson Street Primary School | Academy Converter | Requires improvement | 0.73 KM |
| Ashton Gate Primary School | Community School | Outstanding | 0.98 KM |
Images
Nearby Streets
| Name | Average Price | Average Sqft | Distance |
|---|---|---|---|
| Longmoor Road | £ 500,000 | 0 | 0.00 KM |
| Trafalgar Terrace | £ 335,000 | 0 | 0.00 KM |
| Kingdom View | £ 0 | 0 | 0.00 KM |
| Old School Lane | £ 308,333 | 0 | 0.00 KM |
| Greenmarsh Lane | £ 0 | 0 | 0.00 KM |
Nearby Transport
| Name | NLC | TLC | Distance |
|---|---|---|---|
| Parson Street | 3246 | PSN | 0.44 KM |
| Bedminster | 3245 | BMT | 1.99 KM |
| Clifton Down | 3202 | CFN | 3.30 KM |
| Bristol Temple Meads | 3231 | BRI | 3.68 KM |
| Redland | 3247 | RDA | 3.96 KM |
Nearby Listings
| Address | Price | Type | Score | Distance |
|---|---|---|---|---|
| Luckwell Road, Ashton, Bristol | £ 500,000 | BUY | 6 / 10 | 0.00 KM |
| Lynwood House, Lynwood Road, Ashton, Bristol | £ 300,000 | BUY | 7 / 10 | 0.03 KM |
| Lynwood House, Lynwood Road, Ashton, Bristol | £ 235,000 | BUY | 6 / 10 | 0.03 KM |
| Luckwell Road, Bedminster | £ 500,000 | BUY | 6 / 10 | 0.05 KM |
| Luckwell Road, Ashton, BRISTOL | £ 475,000 | BUY | 6 / 10 | 0.07 KM |
Nearby Properties
| Address | Price | Distance |
|---|---|---|
| 180 Luckwell Road | £ 335,000 | 0.03 KM |
| 178 Luckwell Road | £ 149,000 | 0.03 KM |
| 190 Luckwell Road | £ 340,000 | 0.03 KM |
| 186 Luckwell Road | £ 428,000 | 0.03 KM |
| 221 Luckwell Road | £ 310,000 | 0.08 KM |