Belgarum says ..
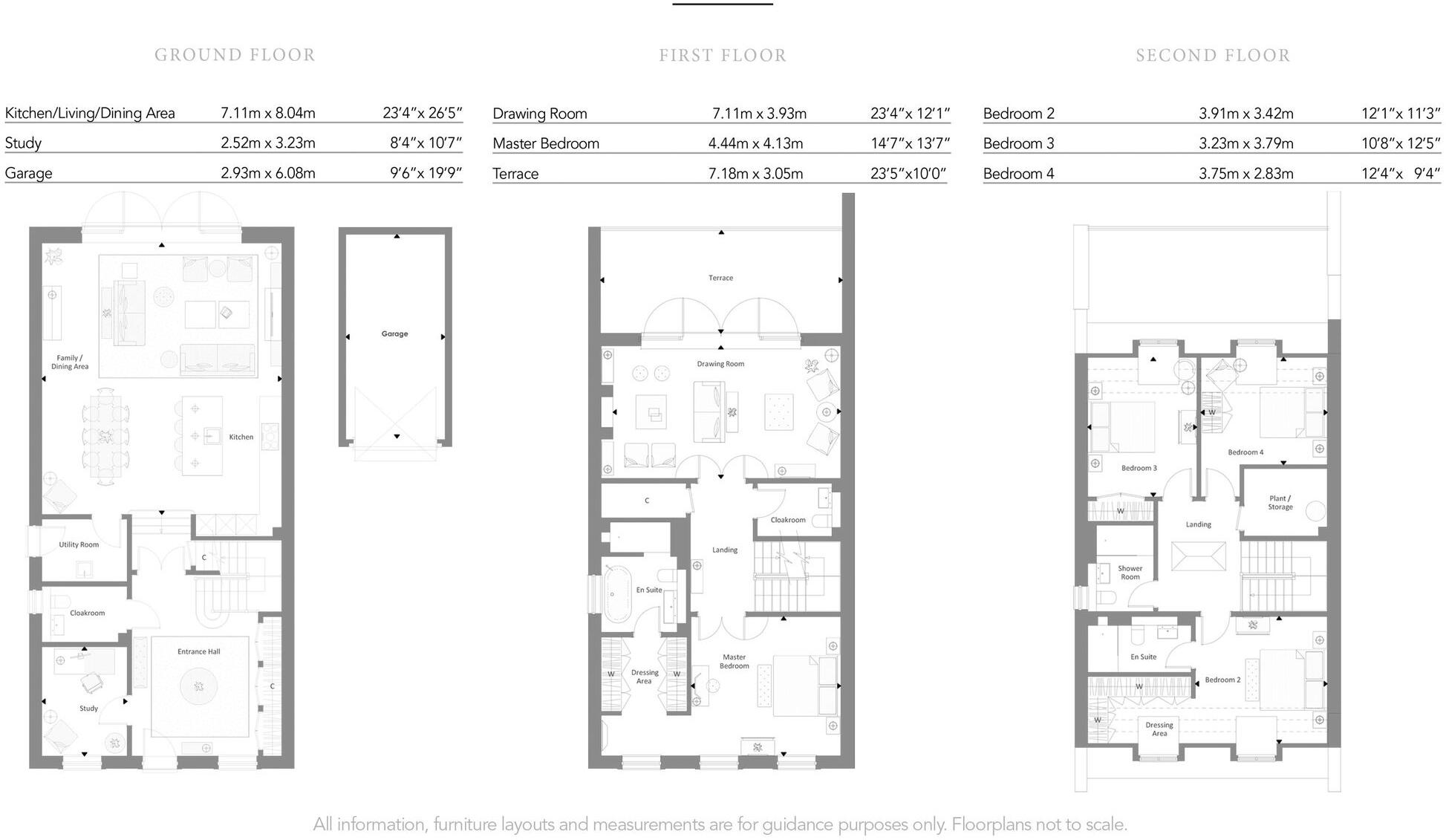
Exceptional brand new house by Alfred Homes with excellent accommodation of 3186sq.ft providing a perfect balance of reception and bedroom space.
Property Oracle says ..
A modern, terraced property in Winchester with 4 bedrooms, 3 bathrooms and a garden. The house is well-located close to schools and transport links.
Therefore, we give this property 7 / 10. *Disclaimer: This is our option and does constitute a recommendation or financial advice. Do your own research. *
- Price
- 6
- Condition
- 9
- Location
- 8
- Land
- 7
- Bedrooms
- 4
- Bathrooms
- 3
- Sqft (est)
- 2,018.23
The heatmap indicates the level of crime in the area. The color of the heatmap indicates the crime severity and recency.
Metrics Year-on-Year
- Average area value
- 642,857.00 £Decreased by 10.83 %
- Est sale value
- 1,525,781.88 £Increased by 44.00 %
- Average area rental value
- 2,176.00 £/moIncreased by 29.37 %
- Est letting value
- 4,036.46 £/moIncreased by 100.00 %
- Est rental Yield
- 4.06 %Increased by 45.00 %
- Crime Rate
- 2.00 %Unchanged by 0.00 %
from 720,964.00 £
from 1,059,570.75 £
from 1,682.00 £/mo
from 2,018.23 £/mo
from 2.80 %
from 2.00 %
Agent Activity
Belgarum created the listing.
Nearby Schools
| Name | Type | Ofsted | Distance |
|---|---|---|---|
| Harestock Primary School | Community School | Good | 0.67 KM |
| Weeke Primary School | Community School | Good | 0.76 KM |
| Western Church Of England Primary School | Voluntary Controlled School | Good | 1.26 KM |
| Henry Beaufort School | Community School | Good | 1.32 KM |
| The Westgate School | Community School | Good | 1.44 KM |
Images
Nearby Streets
| Name | Average Price | Average Sqft | Distance |
|---|---|---|---|
| Ashmore Road | £ 950,000 | 0 | 0.00 KM |
| Ashurst Close | £ 400,000 | 0 | 0.00 KM |
| Butt's Close | £ 1,287,500 | 0 | 0.00 KM |
| Lynch Road | £ 0 | 0 | 0.00 KM |
| Buchanan's Place | £ 1,722,500 | 0 | 0.00 KM |
Nearby Transport
| Name | NLC | TLC | Distance |
|---|---|---|---|
| Winchester | 5924 | WIN | 2.52 KM |
| Shawford | 5929 | SHW | 6.15 KM |
Nearby Listings
| Address | Price | Type | Score | Distance |
|---|---|---|---|---|
| Langham Place, Winchester, SO22 | £ 1,595,000 | BUY | 7 / 10 | 0.00 KM |
| Langham Place, Winchester, SO22 | £ 1,795,000 | BUY | 7 / 10 | 0.00 KM |
| Langham Place, Winchester, Hampshire, SO22 | £ 1,595,000 | BUY | 7 / 10 | 0.03 KM |
| Langham Place, Winchester, SO22 | £ 1,595,000 | BUY | 7 / 10 | 0.04 KM |
| Thistledown Close, Winchester, Hampshire, SO22 | £ 450,000 | BUY | 7 / 10 | 0.16 KM |
Nearby Properties
| Address | Price | Distance |
|---|---|---|
| 2 Woodpecker Drive | £ 710,000 | 0.08 KM |
| Castle Acre | £ 667,000 | 0.09 KM |
| 3 Thistledown Close | £ 645,000 | 0.16 KM |
| 2 Thistledown Close | £ 437,500 | 0.16 KM |
| 10 Thistledown Close | £ 720,000 | 0.16 KM |