Orchard Gardens, Teignmouth, Devon
By Bradleys
£ 160,000
Reviews
2 out of 5 stars
Bradleys says ..
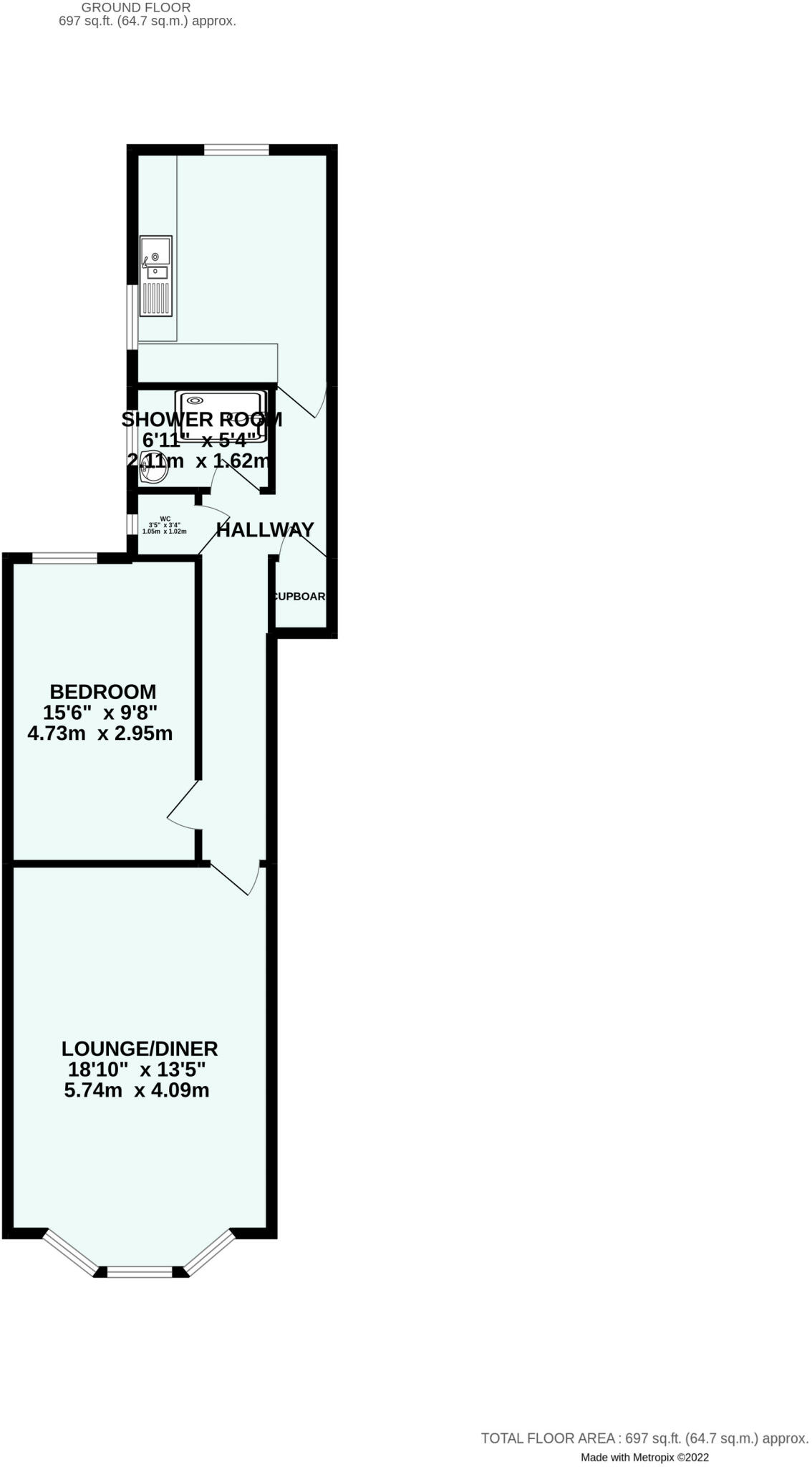
This is a lovely large and airy one double bedroom upper ground floor flat close to town centre and main line railway station. Lounge with high ceiling and original shutters, modern fitted kitchen/breakfast room and gas fired central heating. Tastefully decorated. Ready to move into. Vacant Posse...
Property Oracle says ..
This one-bedroom apartment in Teignmouth, Devon, is situated on Orchard Gardens, close to the town centre and the mainline railway station. This offers convenient access to local amenities and transportation links. The property itself is presented in a clean and neutral style. The provided images reveal an updated bathroom and kitchen, suggesting a moderate level of recent renovation work. However, a lack of outside space or garden area should be noted. The property’s location offers a good base for exploring Teignmouth, a pleasant seaside town in Devon, although more specific details regarding the immediate surroundings of the property would enhance the overall assessment. The pricing seems competitive compared to some similar apartments in the area, though further analysis with more data would be needed to confirm this fully. The lack of information regarding the overall condition of the property and specific details of the apartment size impact the overall assessment. Buyers should carefully consider their individual needs and preferences before making an offer.
Therefore, we give this property 5 / 10. *Disclaimer: This is our option and does constitute a recommendation or financial advice. Do your own research. *
- Price
- 7
- Condition
- 6
- Location
- 7
- Land
- 1
- Bedrooms
- 1
- Bathrooms
- 1
- Sqft (est)
- 697.00
The heatmap indicates the level of crime in the area. The color of the heatmap indicates the crime severity and recency.
Metrics Year-on-Year
- Average area value
- 288,750.00 £Decreased by 25.15 %
- Est sale value
- 159,613.00 £Decreased by 22.90 %
- Average area rental value
- 821.00 £/moDecreased by 25.30 %
- Est letting value
- 0.00 £/mo
- Est rental Yield
- 3.41 %Decreased by 0.29 %
- Crime Rate
- 85.00 %Unchanged by 0.00 %
Agent Activity
Bradleys created the listing.
Nearby Schools
| Name | Type | Ofsted | Distance |
|---|---|---|---|
| Teignmouth Community School, Exeter Road | Academy Converter | Requires improvement | 0.86 KM |
| Trinity School | Other Independent School | 1.19 KM | |
| Shaldon Primary School | Academy Converter | 1.54 KM | |
| Dawlish Children'S Centre | Children's Centre | 1.63 KM | |
| Our Lady And St Patrick'S Roman Catholic Primary School | Academy Sponsor Led | Good | 1.63 KM |
Images
Nearby Streets
| Name | Average Price | Average Sqft | Distance |
|---|---|---|---|
| Bank Street | £ 0 | 0 | 0.00 KM |
| Wellington Street | £ 0 | 0 | 0.00 KM |
| Den Road | £ 0 | 0 | 0.00 KM |
| Shute Hill | £ 0 | 0 | 0.00 KM |
| Bilton Park Road | £ 230,000 | 0 | 0.00 KM |
Nearby Transport
| Name | NLC | TLC | Distance |
|---|---|---|---|
| Teignmouth | 3430 | TGM | 0.26 KM |
| Dawlish | 3408 | DWL | 5.18 KM |
| Dawlish Warren | 3409 | DWW | 8.23 KM |
| Torre | 3432 | TRR | 9.85 KM |
Nearby Listings
| Address | Price | Type | Score | Distance |
|---|---|---|---|---|
| Orchard Gardens, Teignmouth, Devon | £ 160,000 | BUY | 5 / 10 | 0.00 KM |
| Orchard Gardens, Teignmouth | £ 175,000 | BUY | 6 / 10 | 0.01 KM |
| Clampet Lane, Teignmouth, TQ14 | £ 139,950 | BUY | 6 / 10 | 0.03 KM |
| Orchard Gardens, Teignmouth, Devon, TQ14 | £ 77,000 | BUY | 6 / 10 | 0.03 KM |
| 4 Orchard Gardens, Teignmouth, TQ14 8DP | £ 100,000 | BUY | 4 / 10 | 0.03 KM |
Nearby Properties
| Address | Price | Distance |
|---|---|---|
| The Olive Tree | £ 120,000 | 0.03 KM |
| Tideteller Cottage | £ 165,000 | 0.03 KM |
| 13 Orchard Gardens | £ 152,500 | 0.03 KM |
| 16 Orchard Gardens | £ 90,456 | 0.07 KM |
| 3a Higher Brook Street | £ 165,000 | 0.10 KM |