Jude Court, Leeds, West Yorkshire
By Manning Stainton
£ 130,000
Reviews
3 out of 5 stars
Manning Stainton says ..
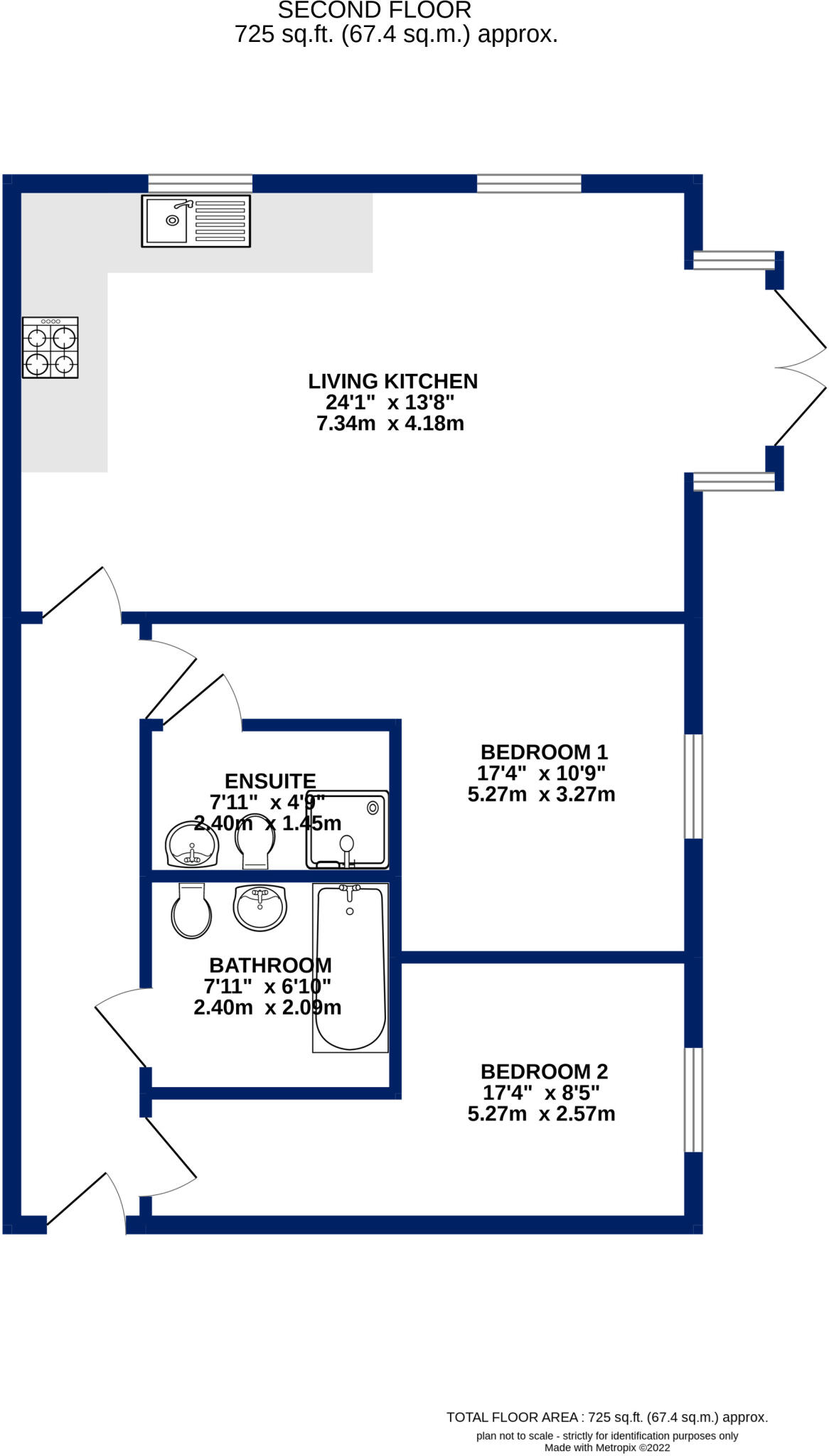
A contemporary two bedroom, two bathroom second floor apartment of generous proportions, ideally situated for nearby amenities in Bramley and Kirkstall and with easy access to the commuter links into Leeds City Centre. With spacious open plan living/kitchen with Juliet balcony, two double bedro...
Property Oracle says ..
This property is a two bedroom, two bathroom apartment located in Armley, Leeds. The apartment is modern and well-presented, with a contemporary kitchen and bathroom. It benefits from a balcony and is within easy reach of local amenities and transport links. The price is slightly below the average price per square foot for the area, making it potentially good value for money. However, the lack of plot size should be considered.
Therefore, we give this property 6 / 10. *Disclaimer: This is our option and does constitute a recommendation or financial advice. Do your own research. *
- Price
- 8
- Condition
- 9
- Location
- 7
- Land
- 1
- Bedrooms
- 2
- Bathrooms
- 2
- Sqft (est)
- 725.49
The heatmap indicates the level of crime in the area. The color of the heatmap indicates the crime severity and recency.
Metrics Year-on-Year
- Average area value
- 158,332.00 £Decreased by 16.71 %
- Est sale value
- 176,294.07 £Increased by 43.79 %
- Average area rental value
- 837.00 £/moIncreased by 15.13 %
- Est letting value
- 725.49 £/mo
- Est rental Yield
- 6.34 %Increased by 38.13 %
- Crime Rate
- 9.00 %Unchanged by 0.00 %
Agent Activity
Manning Stainton created the listing.
Nearby Schools
| Name | Type | Ofsted | Distance |
|---|---|---|---|
| Hollybush Primary | Community School | Good | 0.18 KM |
| Hollybush Children'S Centre | Children's Centre | 0.77 KM | |
| Raynville Academy | Academy Converter | 0.83 KM | |
| Future Horizons Leeds Ltd | Special Post 16 Institution | 0.86 KM | |
| Christ The King Catholic Primary School, A Voluntary Academy | Academy Sponsor Led | Good | 0.95 KM |
Images
Nearby Streets
| Name | Average Price | Average Sqft | Distance |
|---|---|---|---|
| Broadlea Place | £ 210,817 | 0 | 0.00 KM |
| Back Raynville Mount | £ 199,995 | 0 | 0.00 KM |
| Back Landseer Avenue | £ 0 | 0 | 0.00 KM |
| Back Landseer Grove | £ 170,000 | 0 | 0.00 KM |
| Houghley Gill | £ 0 | 0 | 0.00 KM |
Nearby Transport
| Name | NLC | TLC | Distance |
|---|---|---|---|
| Kirkstall Forge | 6544 | KLF | 1.31 KM |
| Headingley | 8498 | HDY | 2.36 KM |
| Bramley (West Yorkshire) | 8496 | BLE | 2.63 KM |
| Horsforth | 8499 | HRS | 4.06 KM |
| Burley Park | 8500 | BUY | 4.15 KM |
Nearby Listings
| Address | Price | Type | Score | Distance |
|---|---|---|---|---|
| Jude Court, Leeds, West Yorkshire | £ 130,000 | BUY | 6 / 10 | 0.00 KM |
| Jude Court, Broad Lane | £ 110,000 | BUY | 6 / 10 | 0.03 KM |
| Jude Court, Leeds, LS13 | £ 135,000 | BUY | 5 / 10 | 0.07 KM |
| Broad Lane, Leeds, West Yorkshire, LS13 | £ 189,995 | BUY | Unknown | 0.14 KM |
| Broad Lane, Leeds | £ 190,000 | BUY | 7 / 10 | 0.16 KM |
Nearby Properties
| Address | Price | Distance |
|---|---|---|
| 5 Broadlea Place | £ 152,000 | 0.13 KM |
| 51 Broad Lane | £ 27,500 | 0.14 KM |
| 49 Broad Lane | £ 97,500 | 0.14 KM |
| 53 Broad Lane | £ 105,000 | 0.14 KM |
| 45 Broad Lane | £ 117,000 | 0.14 KM |