Robert Watts says ..
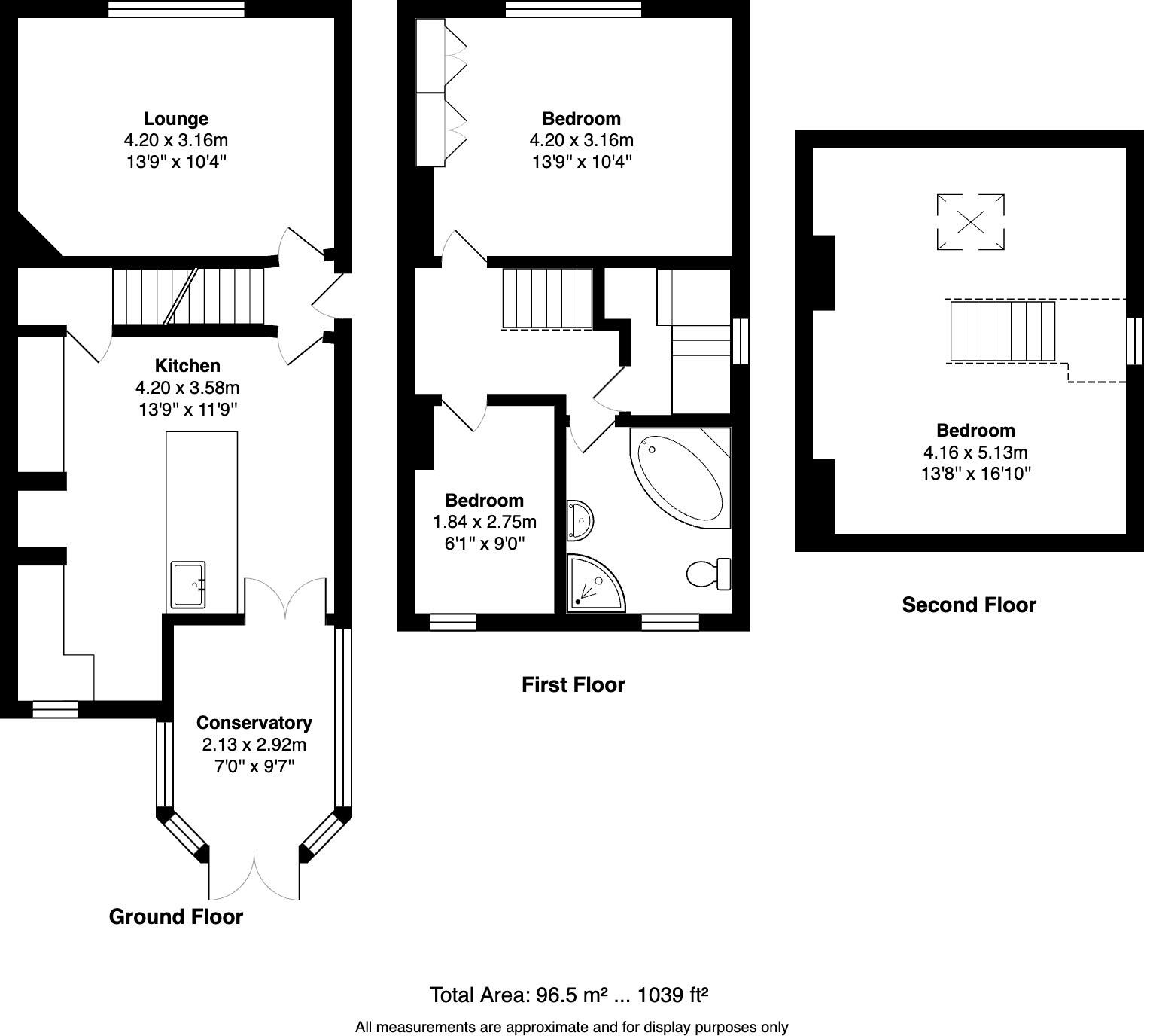
** VIEWING STRONGLY ADVISED ** Excellent stone built THREE BEDROOM semi detached house situated within this sought after area of BD7, Horton Bank Top, ideal for many amenities, shops, schools and commute. This family accommodation comprises: vestibule, lounge, superb breakfast kitchen leading con...
Property Oracle says ..
This three-bedroom semi-detached house in Poplar Grove, Bradford, BD7, presents a well-maintained and updated home suitable for families. The property benefits from a modern kitchen and bathroom, suggesting recent improvements. The interior is presented in a clean and contemporary style. The inclusion of a conservatory adds extra living space, and the small garden and decked area offer outdoor space. The location in a sought-after area of Bradford, close to several ‘Good’-rated primary schools and with reasonable access to train stations, enhances its appeal. While the precise plot size is not specified, the available photos indicate a relatively small garden. The asking price appears to be competitive with other similar properties in the area, making it a potentially attractive purchase for those seeking a family home in a convenient location. Further investigation into the specific condition of the property and the precise plot size would refine the overall assessment.
Therefore, we give this property 6 / 10. *Disclaimer: This is our option and does constitute a recommendation or financial advice. Do your own research. *
- Price
- 7
- Condition
- 7
- Location
- 7
- Land
- 4
- Bedrooms
- 3
- Bathrooms
- 1
- Sqft (est)
- 1,039.00
The heatmap indicates the level of crime in the area. The color of the heatmap indicates the crime severity and recency.
Metrics Year-on-Year
- Average area value
- 856,250.00 £Increased by 15.74 %
- Est sale value
- 737,690.00 £Increased by 21.37 %
- Average area rental value
- 2,000.00 £/moDecreased by 15.25 %
- Est letting value
- 1,039.00 £/moUnchanged by 0.00 %
- Est rental Yield
- 2.80 %Decreased by 26.89 %
- Crime Rate
- 4.00 %Unchanged by 0.00 %
Agent Activity
Robert Watts created the listing.
Nearby Schools
| Name | Type | Ofsted | Distance |
|---|---|---|---|
| Reevy Hill Children'S Centre | Children's Centre | 0.67 KM | |
| Brackenhill Primary School | Community School | Good | 0.69 KM |
| Reevy Hill Primary School | Academy Sponsor Led | Good | 0.80 KM |
| Buttershaw Business & Enterprise College Academy | Academy Sponsor Led | Requires improvement | 0.94 KM |
| Hollingwood Primary School | Academy Converter | 1.07 KM |
Images
Nearby Streets
| Name | Average Price | Average Sqft | Distance |
|---|---|---|---|
| Beacon Grove | £ 0 | 0 | 0.00 KM |
| Farhills | £ 145,000 | 0 | 0.00 KM |
| Kenley Avenue | £ 0 | 0 | 0.00 KM |
| Highlands Close | £ 0 | 0 | 0.00 KM |
| The Crescent | £ 0 | 0 | 0.00 KM |
Nearby Transport
| Name | NLC | TLC | Distance |
|---|---|---|---|
| Low Moor | 8416 | LMR | 5.20 KM |
| Bradford Forster Square | 8346 | BDQ | 5.21 KM |
| Bradford Interchange | 8345 | BDI | 5.27 KM |
| Frizinghall | 8556 | FZH | 5.88 KM |
| Shipley (Yorks) | 8347 | SHY | 6.98 KM |
Nearby Listings
| Address | Price | Type | Score | Distance |
|---|---|---|---|---|
| Poplar Grove, Bradford, BD7 | £ 230,000 | BUY | 6 / 10 | 0.00 KM |
| Poplar Grove, Bradford, BD7 4LG | £ 170,000 | BUY | 7 / 10 | 0.03 KM |
| Poplar Grove, Bradford | £ 215,000 | BUY | 6 / 10 | 0.04 KM |
| Poplar Grove, Horton Bank Top, Bradford | £ 219,950 | BUY | 6 / 10 | 0.06 KM |
| Pickles Lane, Horton Bank Top, Bradford, BD7 | £ 165,000 | BUY | 6 / 10 | 0.09 KM |
Nearby Properties
| Address | Price | Distance |
|---|---|---|
| 110 Poplar Grove | £ 98,500 | 0.06 KM |
| 116 Poplar Grove | £ 130,000 | 0.06 KM |
| 120 Poplar Grove | £ 125,000 | 0.06 KM |
| 102 Poplar Grove | £ 115,000 | 0.06 KM |
| 104 Poplar Grove | £ 85,000 | 0.06 KM |