Maggs & Allen says ..
No summary available.
Property Oracle says ..
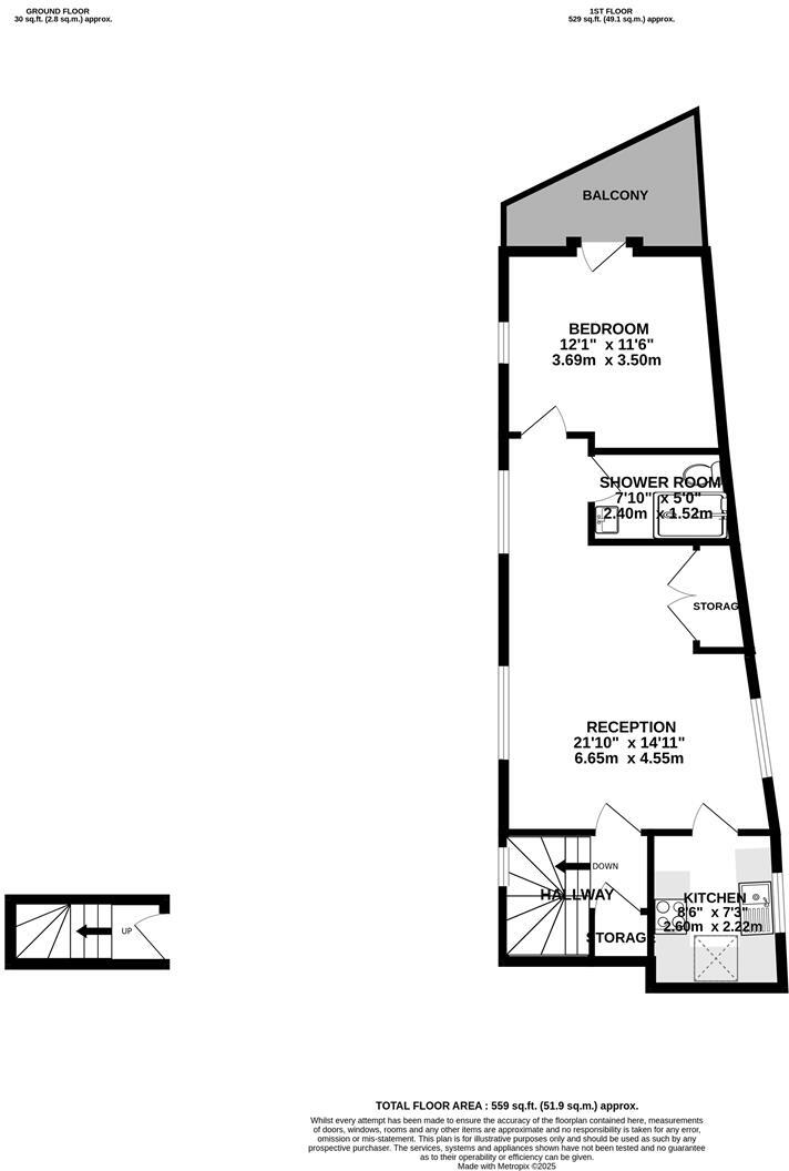
This is a well-presented one-bedroom flat in the popular Totterdown area of Bristol. The property is in good condition and benefits from a balcony. The location is convenient for access to local amenities and transport links. The price is reasonable for the area.
Therefore, we give this property 7 / 10. *Disclaimer: This is our option and does constitute a recommendation or financial advice. Do your own research. *
- Price
- 7
- Condition
- 8
- Location
- 7
- Land
- 6
- Bedrooms
- 1
- Bathrooms
- 1
- Sqft (est)
- 560.68
The heatmap indicates the level of crime in the area. The color of the heatmap indicates the crime severity and recency.
Metrics Year-on-Year
- Average area value
- 290,625.00 £Decreased by 26.53 %
- Est sale value
- 223,711.32 £Decreased by 10.74 %
- Average area rental value
- 1,590.00 £/moDecreased by 1.73 %
- Est letting value
- 1,121.36 £/moIncreased by 100.00 %
- Est rental Yield
- 6.57 %Increased by 33.81 %
- Crime Rate
- 3.00 %Unchanged by 0.00 %
from 395,568.00 £
from 250,623.96 £
from 1,618.00 £/mo
from 560.68 £/mo
from 4.91 %
from 3.00 %
Agent Activity
Maggs & Allen created the listing.
Nearby Schools
| Name | Type | Ofsted | Distance |
|---|---|---|---|
| Victoria Park Primary School | Academy Converter | 0.75 KM | |
| St Mary Redcliffe Church Of England Primary School | Academy Sponsor Led | 0.79 KM | |
| Lpw Independent School | Other Independent School | Good | 0.81 KM |
| St Mary Redcliffe And Temple School | Voluntary Aided School | Outstanding | 0.96 KM |
| Redcliffe Childrens Centre And Maintained Nursery School | Local Authority Nursery School | Outstanding | 0.99 KM |
Images
Nearby Streets
| Name | Average Price | Average Sqft | Distance |
|---|---|---|---|
| Bellevue Road | £ 39,500 | 0 | 0.00 KM |
| Vernon Street | £ 0 | 0 | 0.00 KM |
| Saint Agnes Walk | £ 0 | 0 | 0.00 KM |
| Saint Agnes Avenue | £ 595,000 | 0 | 0.00 KM |
| Clarence Road | £ 0 | 0 | 0.00 KM |
Nearby Transport
| Name | NLC | TLC | Distance |
|---|---|---|---|
| Bristol Temple Meads | 3231 | BRI | 1.02 KM |
| Bedminster | 3245 | BMT | 1.32 KM |
| Lawrence Hill | 3225 | LWH | 2.81 KM |
| Parson Street | 3246 | PSN | 2.92 KM |
| Montpelier | 3203 | MTP | 3.24 KM |
Nearby Listings
| Address | Price | Type | Score | Distance |
|---|---|---|---|---|
| St. Johns Lane | Totterdown | £ 250,000 | BUY | 7 / 10 | 0.00 KM |
| Marmaduke Street, Victoria Park, Bristol | £ 395,000 | BUY | Unknown | 0.05 KM |
| Marmaduke Street, Victoria Park, Bristol | £ 350,000 | BUY | 6 / 10 | 0.05 KM |
| Monmouth Street, Victoria Park, Bristol, BS3 | £ 400,000 | BUY | 7 / 10 | 0.07 KM |
| St Johns Lane, Victoria Park, Bristol | £ 230,000 | BUY | 7 / 10 | 0.07 KM |
Nearby Properties
| Address | Price | Distance |
|---|---|---|
| 77 St Johns Lane | £ 125,000 | 0.03 KM |
| 111 St Johns Lane | £ 280,100 | 0.03 KM |
| 91 St Johns Lane | £ 193,000 | 0.03 KM |
| 119 St Johns Lane | £ 185,500 | 0.03 KM |
| 105 St Johns Lane | £ 340,000 | 0.03 KM |