Tandridge Lane, Lingfield, Surrey, RH7 6LL
By Robert Leech Estate Agents
£ 1,575,000
Reviews
3 out of 5 stars
Robert Leech Estate Agents says ..
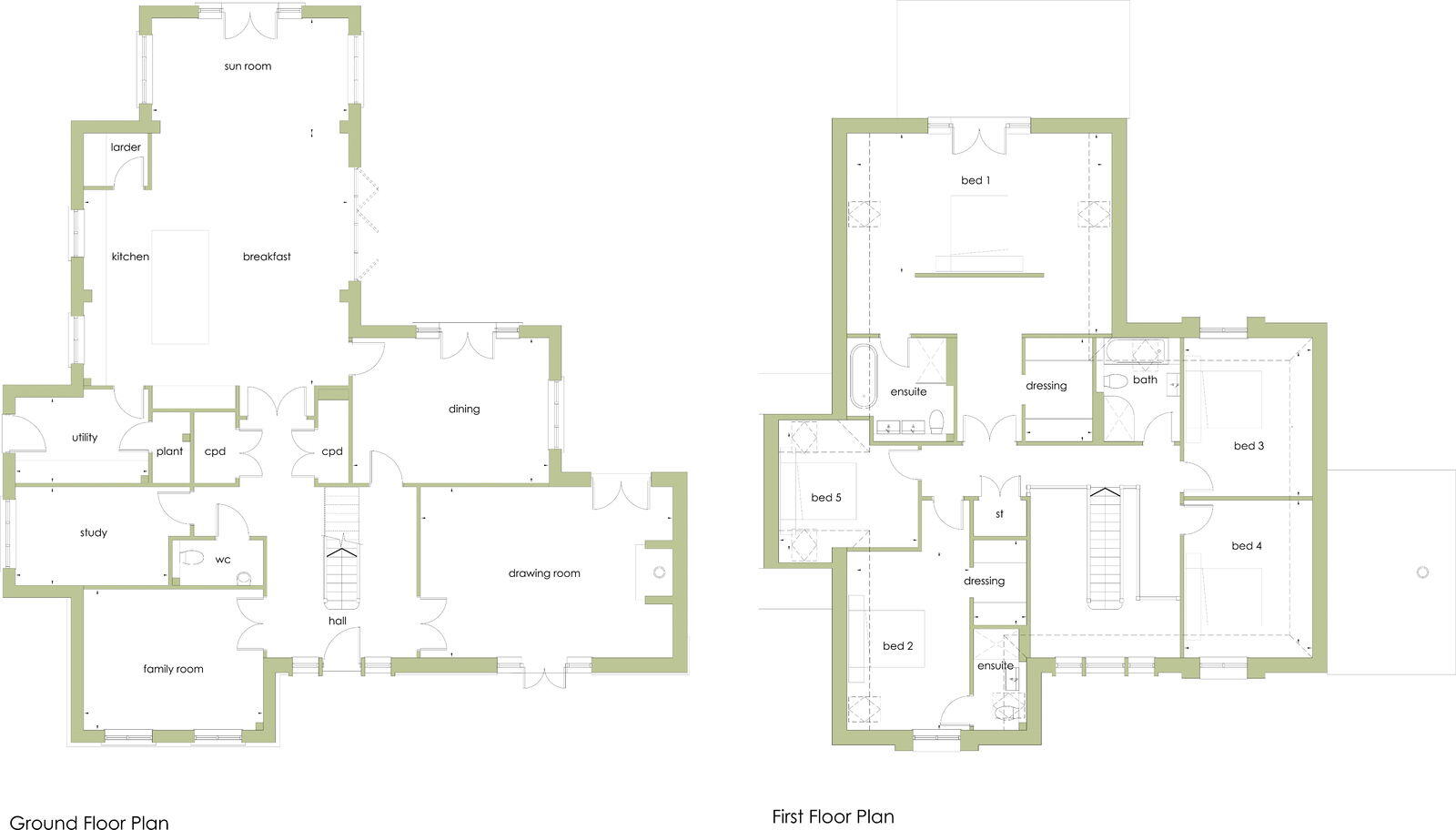
READY FOR OCCUPATION - 80% Sold or Reserved. Oldencraig Mews is a spectacular new development in an idyllic location yet close to Lingfield village's amenities and the larger towns of Oxted and East Grinstead. This 5 bedroom detached family home is perfect for modern living, compri...
Property Oracle says ..
This is a modern detached property located on Tandridge Lane, Lingfield, Surrey. The property boasts five bedrooms and three bathrooms, with a total square footage of 1,763.01. The house is situated in a desirable area with convenient access to transportation and nearby schools. The interior of the property is in excellent condition, featuring modern fixtures and fittings. The exterior is equally well-maintained, with a good-sized garden and a driveway. While the listing price of 1,575,000 is above the local average, the property’s size, condition, and location justify the cost. Overall, this property offers a comfortable and stylish living space in a sought-after location.
Therefore, we give this property 7 / 10. *Disclaimer: This is our option and does constitute a recommendation or financial advice. Do your own research. *
- Price
- 6
- Condition
- 9
- Location
- 7
- Land
- 7
- Bedrooms
- 5
- Bathrooms
- 3
- Sqft (est)
- 1,763.01
The heatmap indicates the level of crime in the area. The color of the heatmap indicates the crime severity and recency.
Metrics Year-on-Year
- Average area value
- 1,235,000.00 £Increased by 76.34 %
- Est sale value
- 1,276,419.24 £Increased by 42.80 %
- Average area rental value
- 2,650.00 £/moIncreased by 9.55 %
- Est letting value
- 1,763.01 £/moUnchanged by 0.00 %
- Est rental Yield
- 2.57 %Decreased by 37.92 %
- Crime Rate
- 0.00 %
Agent Activity
Robert Leech Estate Agents created the listing.
Nearby Schools
| Name | Type | Ofsted | Distance |
|---|---|---|---|
| St Stephen'S Cofe Primary School | Academy Converter | 3.10 KM | |
| Lingfield Primary School | Community School | Good | 3.34 KM |
| St Peter'S Cofe Infant School | Voluntary Aided School | Outstanding | 5.35 KM |
| St Piers College (Young Epilepsy) | Special Post 16 Institution | Good | 5.55 KM |
| St Piers School | Non-maintained Special School | Good | 5.55 KM |
Images
Nearby Transport
| Name | NLC | TLC | Distance |
|---|---|---|---|
| Godstone | 5474 | GDN | 2.95 KM |
| Lingfield | 5369 | LFD | 4.23 KM |
| Dormans | 5413 | DMS | 5.85 KM |
| Hurst Green | 5463 | HUR | 7.62 KM |
| East Grinstead | 5486 | EGR | 7.88 KM |
Nearby Listings
| Address | Price | Type | Score | Distance |
|---|---|---|---|---|
| Oldencraig Mews, Lingfield, RH7 | £ 1,575,000 | BUY | 7 / 10 | 0.00 KM |
| Tandridge Lane, Lingfield, RH7 6LL | £ 899,950 | BUY | 7 / 10 | 0.00 KM |
| Tandridge Lane, Lingfield, RH7 6LL | £ 1,775,000 | BUY | 7 / 10 | 0.00 KM |
| Tandridge Lane, Lingfield, RH7 6LL | £ 725,000 | BUY | 7 / 10 | 0.00 KM |
| Tandridge Lane, Lingfield, RH7 6LL | £ 600,000 | BUY | 7 / 10 | 0.00 KM |
Nearby Properties
| Address | Price | Distance |
|---|---|---|
| Ardenrun Lodge | £ 950,000 | 0.01 KM |
| Tippywichett | £ 532,500 | 0.01 KM |
| Tippywychett | £ 875,000 | 0.01 KM |
| Oldencraig Cottage | £ 275,000 | 0.01 KM |
| Macconkeys | £ 1,170,000 | 0.01 KM |