Cromer Street, Newcastle, Staffordshire, ST5
By Reeds Rains
£ 125,000
Reviews
2 out of 5 stars
Reeds Rains says ..
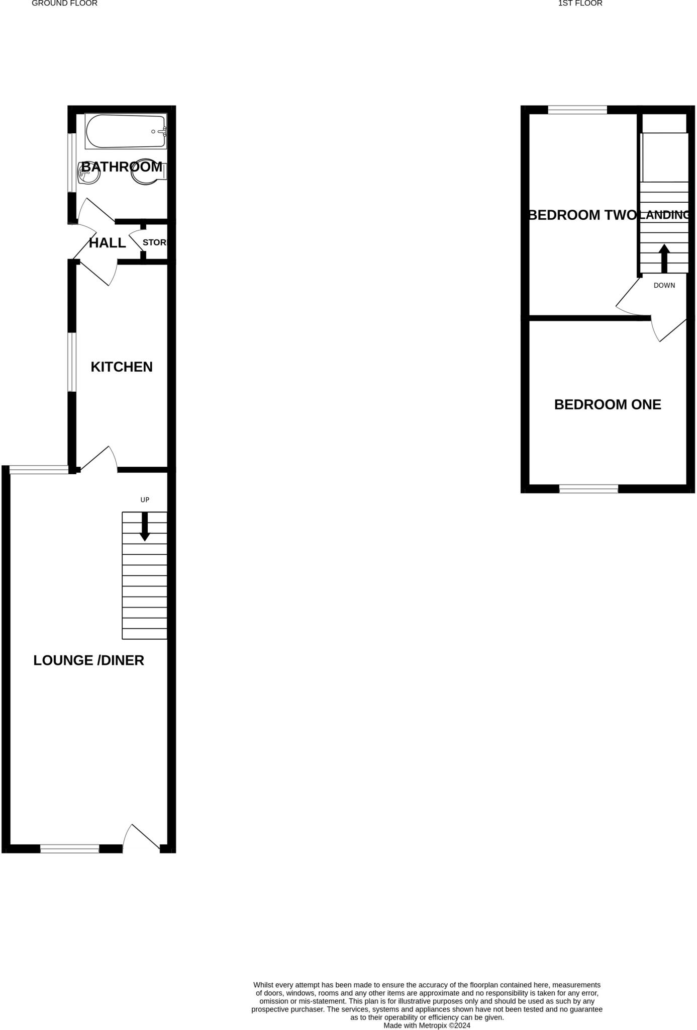
This delightful terraced property offers a well-maintained, spacious interior with high ceilings, a modern kitchen, bright bedrooms, a stylish bathroom, and convenient access to public transport, schools, and local amenities. EPC D
Property Oracle says ..
This two-bedroom terraced house in May Bank, Newcastle-under-Lyme, offers a functional living space at a seemingly competitive price. The property’s location is a definite plus, with good access to local schools (some with outstanding Ofsted ratings) and relatively close proximity to train stations. The property’s condition is fair; it is habitable, but some cosmetic updates to the kitchen and bathroom, along with general modernisation, would likely improve its marketability and value. The included small, decked rear garden provides some outdoor space, although it is not expansive. The list price appears to be within the range of similar properties, although comparative analysis is hampered by a lack of available sqft data for nearby properties. Overall, this property presents itself as a suitable option for first-time buyers or investors looking for a property in a convenient location that requires some renovation and improvement. Buyers should factor the potential costs of modernisation into their calculations.
Therefore, we give this property 5 / 10. *Disclaimer: This is our option and does constitute a recommendation or financial advice. Do your own research. *
- Price
- 7
- Condition
- 6
- Location
- 7
- Land
- 3
- Bedrooms
- 2
- Bathrooms
- 1
- Sqft (est)
- 720.00
The heatmap indicates the level of crime in the area. The color of the heatmap indicates the crime severity and recency.
Metrics Year-on-Year
- Average area value
- 253,300.00 £Increased by 15.48 %
- Est sale value
- 176,400.00 £Increased by 55.06 %
- Average area rental value
- 823.00 £/moIncreased by 0.73 %
- Est letting value
- 0.00 £/mo
- Est rental Yield
- 3.90 %Decreased by 12.75 %
- Crime Rate
- 5.00 %Unchanged by 0.00 %
Agent Activity
Reeds Rains created the listing.
Nearby Schools
| Name | Type | Ofsted | Distance |
|---|---|---|---|
| May Bank Infants' School | Community School | Outstanding | 0.35 KM |
| St Wulstan'S Catholic Primary School | Academy Converter | Good | 0.44 KM |
| St Margaret'S Cofe (Vc) Junior School | Voluntary Controlled School | Good | 0.65 KM |
| Ellison Primary Academy | Academy Converter | Good | 1.02 KM |
| The Orme Academy | Academy Sponsor Led | Requires improvement | 1.26 KM |
Images
Nearby Streets
| Name | Average Price | Average Sqft | Distance |
|---|---|---|---|
| East Crescent | £ 249,950 | 0 | 0.00 KM |
| The Avenue | £ 283,475 | 0 | 0.00 KM |
| Davey Close | £ 0 | 0 | 0.00 KM |
| Walley's Drive | £ 0 | 0 | 0.00 KM |
| Stanley Road | £ 0 | 0 | 0.00 KM |
Nearby Transport
| Name | NLC | TLC | Distance |
|---|---|---|---|
| Longport | 1305 | LPT | 1.94 KM |
| Stoke-On-Trent | 1314 | SOT | 3.91 KM |
| Kidsgrove | 1229 | KDG | 7.75 KM |
| Longton | 1306 | LGN | 9.15 KM |
Nearby Listings
| Address | Price | Type | Score | Distance |
|---|---|---|---|---|
| Cromer Street, Newcastle, Staffordshire, ST5 | £ 125,000 | BUY | 5 / 10 | 0.00 KM |
| Cromer Street, Maybank | £ 130,000 | BUY | 7 / 10 | 0.01 KM |
| Cromer Street, Newcastle Under Lyme, Staffordshire, ST5 | £ 135,000 | BUY | Unknown | 0.01 KM |
| Cromer Street, May Bank, Newcastle-under-Lyme | £ 115,000 | BUY | 6 / 10 | 0.01 KM |
| Cromer Street, Newcastle, Staffordshire, ST5 | £ 140,000 | BUY | 6 / 10 | 0.03 KM |
Nearby Properties
| Address | Price | Distance |
|---|---|---|
| 12 Cromer Street | £ 88,000 | 0.01 KM |
| 9 Cromer Street | £ 96,500 | 0.01 KM |
| 12b Cromer Street | £ 230,000 | 0.01 KM |
| 53 Cromer Street | £ 98,500 | 0.01 KM |
| 59 Cromer Street | £ 250,000 | 0.01 KM |