Peel Lodge, Marlow
ST

Peel Lodge, Marlow

By Stratton & King Ltd

£ 500,000

Reviews

3 out of 5 stars

Stratton & King Ltd says ..

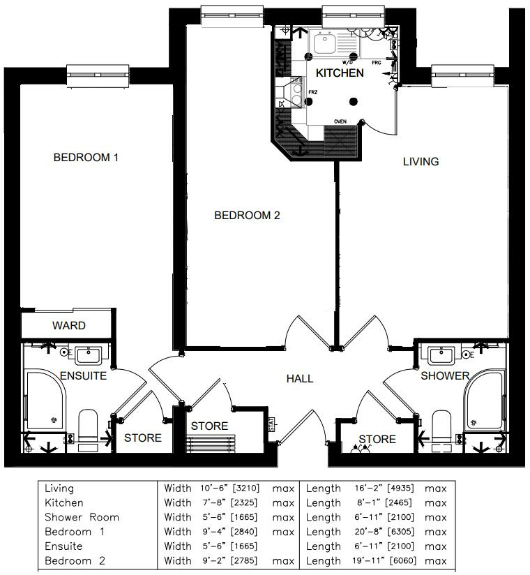
Churchill Sales & Lettings are delighted to be marketing this stunning two bedroom, two bathroom first floor apartment. The property offers deceptively spacious accommodation throughout and is presented in fantastic order. The Lounge offers ample space for living and dining room furnitu...

Property Oracle says ..

This two-bedroom, two-bathroom apartment at Peel Lodge in Marlow, Buckinghamshire presents a well-maintained and attractively presented retirement property. The property is situated in a highly desirable location, benefiting from its proximity to excellent schools, Marlow’s town centre, and convenient transport links to London and other areas. The interior is modern, clean, and functional, with a well-equipped kitchen and modern bathrooms. The apartment is part of a well-maintained retirement development with access to communal gardens and communal facilities which include a lounge and bar. While the property doesn’t feature a private garden, the communal areas appear well-landscaped and offer residents space for relaxation and socialisation. Overall, the property represents a comfortable and convenient retirement option, but potential buyers should be aware of the limited outdoor space and consider the cost of the apartment compared to other options within the region. Note, this analysis is solely based on the provided details and images; a physical viewing would be required for a complete and thorough assessment.

Therefore, we give this property 6 / 10. *Disclaimer: This is our option and does constitute a recommendation or financial advice. Do your own research. *

Price
7
Condition
8
Location
9
Land
3
Bedrooms
2
Bathrooms
2
Sqft (est)
1,158.95

The heatmap indicates the level of crime in the area. The color of the heatmap indicates the crime severity and recency.

Metrics Year-on-Year

Average area value
821,772.00 £
Decreased by 0.15 %
from 822,984.00 £
Est sale value
1,250,507.05 £
Increased by 98.35 %
from 630,468.80 £
Average area rental value
2,157.00 £/mo
Decreased by 8.37 %
from 2,354.00 £/mo
Est letting value
2,317.90 £/mo
Increased by 100.00 %
from 1,158.95 £/mo
Est rental Yield
3.15 %
Decreased by 8.16 %
from 3.43 %
Crime Rate
28.00 %
Unchanged by 0.00 %
from 28.00 %

Agent Activity

  • Stratton & King Ltd created the listing.

Nearby Schools

NameTypeOfstedDistance
Holy Trinity Church Of England (Aided) SchoolVoluntary Aided SchoolOutstanding0.15 KM
Marlow Church Of England Infant SchoolVoluntary Aided SchoolOutstanding0.50 KM
St Peter'S Catholic Primary SchoolAcademy Converter0.51 KM
Sir William Borlase'S Grammar SchoolAcademy ConverterOutstanding0.64 KM
Foxes Piece SchoolCommunity SchoolGood1.02 KM

Images

Gardens.jpg Owners Patio Area.JPG Living Room (2).jpg Kitchen.jpg Bedroom One.jpg Bedroom One (2).jpg Ensuite.jpg Living Room.jpg Bedroom Two.jpg Bedroom Two (2).jpg Shower Room.jpg Hallway.jpg Owners Lounge.jpg Owners Lounge (2).jpg Owners Coffee Bar.JPG Owners Guest Suite.jpg Peel Lodge - rear.jpg 1331444-3-6888f05041569.jpg 1331444-6-6888f0717fa7d.jpg 1331444-5-6888f064346bb.jpg 1331444-7-6888f08acac2e.jpg 1331444-12-6888f12b3caed.jpg 1331444-11-6888f115620c6.jpg 1331444-9-6888f0c6f0608.jpg 1331444-8-6888f09e79bfc.jpg 1331444-10-6888f0ee59640.jpg 1331444-4-6888f05d5fa1a.jpg 1331444-1-6888e540b7f1b.jpg 1331444-2-6888f038a67b6.jpg

Nearby Streets

NameAverage PriceAverage SqftDistance
Portland Crescent £ 1,007,25000.00 KM
Cromwell Road £ 000.00 KM
The Causeway £ 000.00 KM
Westwood Road £ 000.00 KM
Riverside £ 2,500,00000.00 KM

Nearby Transport

NameNLCTLCDistance
Marlow3021MLW1.28 KM
Cookham3019COO6.41 KM
High Wycombe3054HWY7.10 KM
Furze Platt3144FZP7.11 KM
Bourne End3018BNE7.42 KM

Nearby Listings

AddressPriceTypeScoreDistance
Peel Lodge, Marlow £ 500,000BUY6 / 100.00 KM
Flat 18, Oram Court, Dean Street, Marlow, Buckinghamshire £ 350,000BUY5 / 100.02 KM
Peel Lodge, Dean Street, Marlow £ 300,000BUY5 / 100.04 KM
Peel Lodge, Marlow £ 449,950BUY7 / 100.04 KM
1 Bed Apartment, Peel Lodge, Marlow £ 356,265BUY6 / 100.04 KM

Nearby Properties

AddressPriceDistance
4 Trinity Road £ 470,0000.07 KM
Florella £ 605,0000.09 KM
27 Trinity Road £ 139,0000.09 KM
6 Klondyke £ 265,0000.12 KM
2 Klondyke £ 575,0000.12 KM