Gascoigne Halman says ..
A stunning semi-detached property situated in a popular residential location within easy reach of East Didsbury tram station, local amenities and schools. Tastefully decorated throughout, this fabulous home must be viewed to be fully appreciated.
Property Oracle says ..
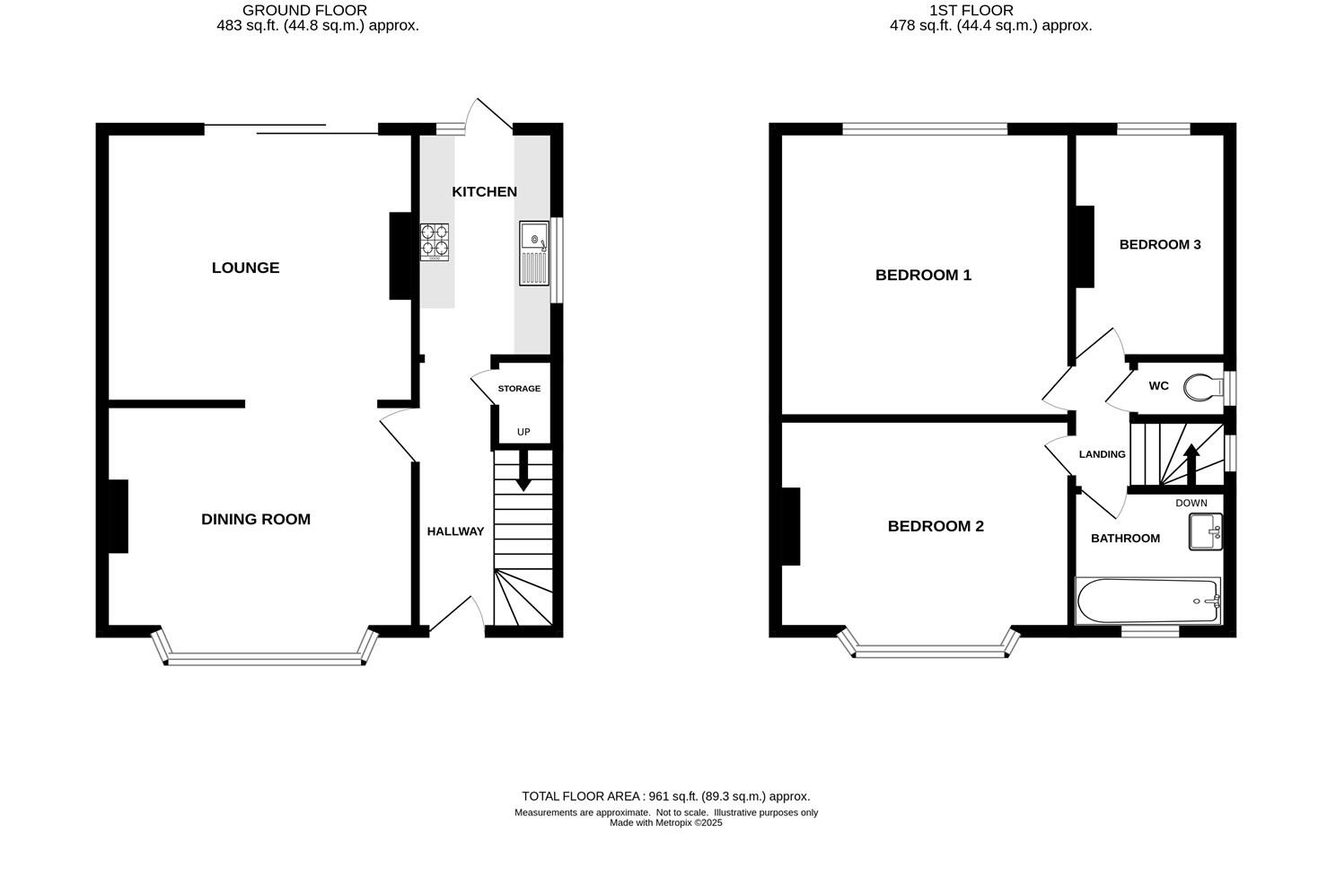
This is a well-presented semi-detached property in Burnage, Manchester. The house benefits from a modern interior, a good-sized garden, and proximity to local amenities, including schools and transport links. The property appears to be in good condition, suggesting it is ready to move into. The price is in line with the local market, making it a potentially attractive purchase.
Therefore, we give this property 7 / 10. *Disclaimer: This is our option and does constitute a recommendation or financial advice. Do your own research. *
- Price
- 7
- Condition
- 8
- Location
- 7
- Land
- 7
- Bedrooms
- 3
- Bathrooms
- 1
The heatmap indicates the level of crime in the area. The color of the heatmap indicates the crime severity and recency.
Metrics Year-on-Year
- Average area value
- 320,833.00 £Increased by 5.35 %
- Average area rental value
- 1,380.00 £/moDecreased by 15.49 %
- Est rental Yield
- 5.16 %Decreased by 19.75 %
- Crime Rate
- 0.00 %
Agent Activity
Gascoigne Halman created the listing.
Nearby Schools
| Name | Type | Ofsted | Distance |
|---|---|---|---|
| Burnage Academy For Boys | Academy Converter | Outstanding | 0.91 KM |
| Stella Maris School | Other Independent School | Good | 1.03 KM |
| St John'S Church Of England Primary School | Voluntary Controlled School | Good | 1.03 KM |
| Ladybarn Primary School | Academy Converter | 1.06 KM | |
| Burnage Sure Start Children'S Centre | Children's Centre | 1.19 KM |
Images
Nearby Streets
| Name | Average Price | Average Sqft | Distance |
|---|---|---|---|
| Swinly Crescent | £ 0 | 0 | 0.00 KM |
| Albury Drive | £ 0 | 0 | 0.00 KM |
| Fair Oak Road | £ 350,000 | 0 | 0.00 KM |
| Harwood Road | £ 242,500 | 0 | 0.00 KM |
| Kenwood Avenue | £ 370,000 | 0 | 0.00 KM |
Nearby Transport
| Name | NLC | TLC | Distance |
|---|---|---|---|
| Burnage | 2945 | BNA | 0.59 KM |
| Mauldeth Road | 2867 | MAU | 1.30 KM |
| East Didsbury | 2949 | EDY | 1.86 KM |
| Levenshulme | 2862 | LVM | 3.20 KM |
| Heaton Chapel | 2861 | HTC | 3.50 KM |
Nearby Listings
| Address | Price | Type | Score | Distance |
|---|---|---|---|---|
| Burnage Lane, Burnage | £ 335,000 | BUY | 7 / 10 | 0.00 KM |
| Leaburn Drive, MANCHESTER, Lancashire, M19 | £ 325,000 | BUY | Unknown | 0.05 KM |
| Leaburn Drive, Burnage, Manchester, Greater Manchester, M19 | £ 300,000 | BUY | 7 / 10 | 0.05 KM |
| Holmside Gardens, Manchester, Greater Manchester, M19 | £ 395,000 | BUY | 6 / 10 | 0.13 KM |
| Erica Drive, M19 | £ 340,000 | BUY | 7 / 10 | 0.15 KM |
Nearby Properties
| Address | Price | Distance |
|---|---|---|
| 603 Burnage Lane | £ 205,000 | 0.02 KM |
| 609 Burnage Lane | £ 225,000 | 0.02 KM |
| 623 Burnage Lane | £ 125,000 | 0.04 KM |
| 595 Burnage Lane | £ 225,000 | 0.04 KM |
| 611 Burnage Lane | £ 100,000 | 0.04 KM |