Winkworth Clapham says ..
A superb two-bedroom purpose-built Victorian maisonette with generous living space, private terrace and share of freehold, ideally positioned on Klea Avenue in Abbeville Village.
Property Oracle says ..
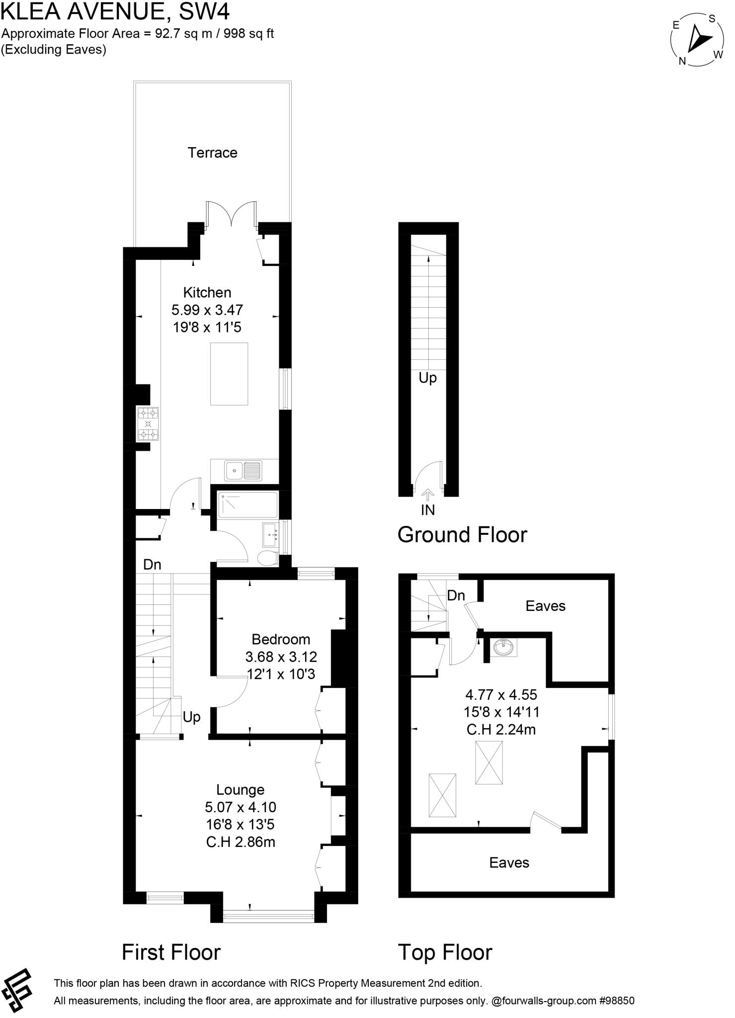
This is a two-bedroom end-of-terrace flat located on Klea Avenue, in the Clapham Common area of London. The property is listed for £925,000 by Winkworth Clapham. The flat has one bathroom and measures 804.39 square feet. The property benefits from its location in a popular area, close to schools and transport links. While appearing modern, some minor updates may be required. It also features a small outdoor space, adding to its appeal. The price is slightly above the average for the area, potentially reflecting the desirable location and modern features.
Therefore, we give this property 6 / 10. *Disclaimer: This is our option and does constitute a recommendation or financial advice. Do your own research. *
- Price
- 6
- Condition
- 7
- Location
- 8
- Land
- 6
- Bedrooms
- 2
- Bathrooms
- 1
- Sqft (est)
- 804.39
The heatmap indicates the level of crime in the area. The color of the heatmap indicates the crime severity and recency.
Metrics Year-on-Year
- Average area value
- 868,170.00 £Decreased by 7.78 %
- Est sale value
- 742,451.97 £Increased by 9.23 %
- Average area rental value
- 3,274.00 £/moIncreased by 7.73 %
- Est letting value
- 2,413.17 £/moIncreased by 50.00 %
- Est rental Yield
- 4.53 %Increased by 17.05 %
- Crime Rate
- 4.00 %Unchanged by 0.00 %
Agent Activity
Winkworth Clapham created the listing.
Nearby Schools
| Name | Type | Ofsted | Distance |
|---|---|---|---|
| Bonneville Primary School | Community School | Good | 0.22 KM |
| Lambeth Academy | Academy Sponsor Led | Good | 0.32 KM |
| Lambeth College | Further Education | Requires improvement | 0.52 KM |
| St Mary'S Roman Catholic Primary School | Voluntary Aided School | Outstanding | 0.61 KM |
| St Bernadette Catholic Junior School | Voluntary Aided School | Good | 0.78 KM |
Images
Nearby Streets
| Name | Average Price | Average Sqft | Distance |
|---|---|---|---|
| Hazelbourne Road | £ 0 | 0 | 0.00 KM |
| Headlam Road | £ 0 | 0 | 0.00 KM |
| Long Road | £ 575,000 | 0 | 0.00 KM |
| A205 | £ 0 | 0 | 0.00 KM |
| Margaret Rutherford Place | £ 0 | 0 | 0.00 KM |
Nearby Transport
| Name | NLC | TLC | Distance |
|---|---|---|---|
| Clapham High Street | 5301 | CLP | 1.54 KM |
| Wandsworth Road | 5372 | WWR | 1.77 KM |
| Balham | 5399 | BAL | 1.78 KM |
| Queenstown Road (Battersea) | 5596 | QRB | 2.36 KM |
| Streatham Hill | 5435 | SRH | 2.38 KM |
Nearby Listings
| Address | Price | Type | Score | Distance |
|---|---|---|---|---|
| Klea Avenue, London, SW4 | £ 925,000 | BUY | 6 / 10 | 0.00 KM |
| Narbonne Avenue, London, SW4 | £ 1,650,000 | BUY | Unknown | 0.06 KM |
| Cautley Avenue, Clapham | £ 2,850,000 | BUY | 7 / 10 | 0.07 KM |
| Narbonne Avenue, London, SW4 | £ 975,000 | BUY | Unknown | 0.07 KM |
| Narbonne Avenue, London, SW4 | £ 850,000 | BUY | Unknown | 0.07 KM |
Nearby Properties
| Address | Price | Distance |
|---|---|---|
| 61a Klea Avenue | £ 875,000 | 0.01 KM |
| 53 Klea Avenue | £ 805,000 | 0.01 KM |
| 61 Klea Avenue | £ 280,000 | 0.01 KM |
| 57a Klea Avenue | £ 875,000 | 0.01 KM |
| 55 Klea Avenue | £ 935,000 | 0.01 KM |