Windmill Platt, Handcross, RH17
By Mansell McTaggart
£ 175,000
Reviews
3 out of 5 stars
Mansell McTaggart says ..
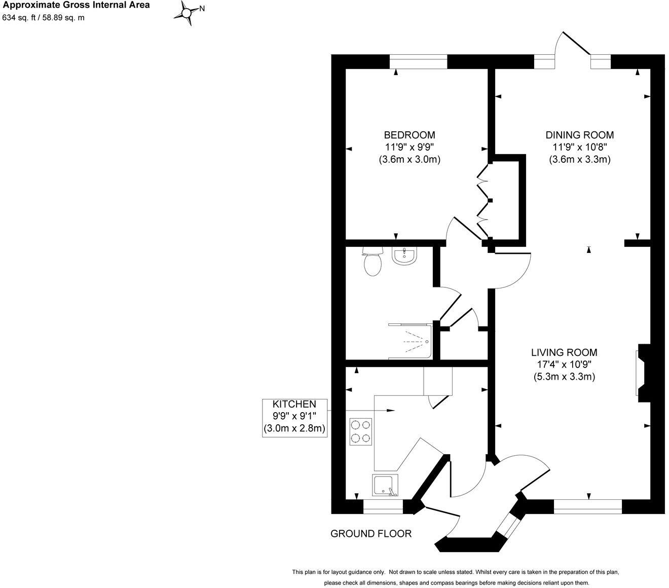
GUIDE: £175,000 - £200,000. An excellent 1-2 double bedroom end-of terrace retirement bungalow with allocated parking & private garden situated in the ever-popular Forge development in Handcross.
Property Oracle says ..
This is a two-bedroom semi-detached bungalow located in Handcross, West Sussex. The property is in reasonable condition but would benefit from some modernisation. It features a small garden. The location is convenient for families with the Handcross Primary School nearby. The listing price of £175,000 appears to be good value compared to average property prices in the area.
Therefore, we give this property 6 / 10. *Disclaimer: This is our option and does constitute a recommendation or financial advice. Do your own research. *
- Price
- 8
- Condition
- 6
- Location
- 7
- Land
- 5
- Bedrooms
- 2
- Bathrooms
- 1
- Sqft (est)
- 153.42
The heatmap indicates the level of crime in the area. The color of the heatmap indicates the crime severity and recency.
Metrics Year-on-Year
- Average area value
- 469,167.00 £Decreased by 15.00 %
- Est sale value
- 102,944.82 £Increased by 40.67 %
- Average area rental value
- 4,750.00 £/moIncreased by 210.86 %
- Est letting value
- 920.52 £/moIncreased by 500.00 %
- Est rental Yield
- 12.15 %Increased by 265.96 %
- Crime Rate
- 62.00 %Unchanged by 0.00 %
Agent Activity
Mansell McTaggart created the listing.
Nearby Schools
| Name | Type | Ofsted | Distance |
|---|---|---|---|
| Handcross Primary School | Community School | Good | 0.60 KM |
| Handcross Park School | Other Independent School | 0.91 KM | |
| Brantridge School | Academy Special Converter | 2.47 KM | |
| St. Mark'S Cofe Primary School | Voluntary Controlled School | Good | 3.01 KM |
| Woodgate Primary School | Community School | Good | 3.52 KM |
Images
Nearby Streets
| Name | Average Price | Average Sqft | Distance |
|---|---|---|---|
| Buckingham Gate | £ 0 | 0 | 0.00 KM |
| East Park Lane | £ 0 | 0 | 0.00 KM |
| Park Road | £ 0 | 0 | 0.00 KM |
Nearby Transport
| Name | NLC | TLC | Distance |
|---|---|---|---|
| Crawley | 5484 | CRW | 6.54 KM |
| Ifield | 5495 | IFI | 6.91 KM |
| Balcombe | 5492 | BAB | 7.04 KM |
| Three Bridges | 5491 | TBD | 8.15 KM |
| Faygate | 5493 | FGT | 8.26 KM |
Nearby Listings
| Address | Price | Type | Score | Distance |
|---|---|---|---|---|
| Windmill Platt, Handcross, RH17 | £ 175,000 | BUY | 6 / 10 | 0.00 KM |
| Windmill Platt, Handcross, Haywards Heath | £ 185,000 | BUY | 6 / 10 | 0.01 KM |
| The Forge, Handcross | £ 175,000 | BUY | Unknown | 0.01 KM |
| The Forge, Windmill Platt, Handcross, RH17 | £ 175,000 | BUY | 7 / 10 | 0.03 KM |
| The Forge, Handcross | £ 179,950 | BUY | 6 / 10 | 0.04 KM |
Nearby Properties
| Address | Price | Distance |
|---|---|---|
| 27 The Forge | £ 171,500 | 0.01 KM |
| 30 The Forge | £ 135,000 | 0.01 KM |
| 25 The Forge | £ 155,000 | 0.01 KM |
| 7 The Forge | £ 108,000 | 0.01 KM |
| 12 The Forge | £ 195,000 | 0.01 KM |