Dartford Road, Sevenoaks, Kent, TN13
By Knight Frank
£ 2,500,000
Reviews
3 out of 5 stars
Knight Frank says ..
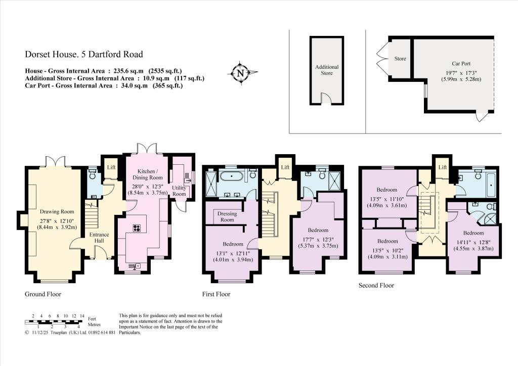
An exceptional townhouse in the heart of Sevenoaks Dorset House is an impressive detached townhouse, occupying a prime central position with stunning views over The Vine and just a short stroll from the High Street. Built in 2012 to an outstanding specification, this elegant home offers beautifu...
Property Oracle says ..
Dorset House is a detached property located on Dartford Road in Sevenoaks. The property is well-presented and appears to be in excellent condition, with modern fixtures and fittings throughout. It benefits from having five bedrooms, four bathrooms, a modern kitchen, and a garden. The property also has an elevator, which is a desirable feature. The location is good, with local schools and transport links within easy reach. The asking price of £2,500,000 seems high compared to similar properties in the area.
Therefore, we give this property 7 / 10. *Disclaimer: This is our option and does constitute a recommendation or financial advice. Do your own research. *
- Price
- 5
- Condition
- 9
- Location
- 8
- Land
- 6
- Bedrooms
- 5
- Bathrooms
- 4
The heatmap indicates the level of crime in the area. The color of the heatmap indicates the crime severity and recency.
Metrics Year-on-Year
- Average area value
- 1,137,500.00 £Increased by 71.72 %
- Average area rental value
- 2,181.00 £/moDecreased by 6.44 %
- Est rental Yield
- 2.30 %Decreased by 45.50 %
- Crime Rate
- 7.00 %Unchanged by 0.00 %
Agent Activity
Knight Frank created the listing.
Nearby Schools
| Name | Type | Ofsted | Distance |
|---|---|---|---|
| Lady Boswell'S Church Of England Voluntary Aided Primary School, Sevenoaks | Voluntary Aided School | Outstanding | 0.30 KM |
| St Thomas' Catholic Primary School, Sevenoaks | Academy Converter | 0.67 KM | |
| Walthamstow Hall | Other Independent School | 0.74 KM | |
| Sevenoaks School | Other Independent School | 1.10 KM | |
| St John'S Church Of England Primary School, Sevenoaks | Voluntary Controlled School | Good | 1.12 KM |
Images
Nearby Streets
| Name | Average Price | Average Sqft | Distance |
|---|---|---|---|
| Blighs Road | £ 0 | 0 | 0.00 KM |
| Bligh's Walk | £ 250,000 | 0 | 0.00 KM |
| Brewery Lane | £ 0 | 0 | 0.00 KM |
| Plymouth Drive | £ 0 | 0 | 0.00 KM |
| Ashley Close | £ 0 | 0 | 0.00 KM |
Nearby Transport
| Name | NLC | TLC | Distance |
|---|---|---|---|
| Sevenoaks | 5124 | SEV | 1.20 KM |
| Bat And Ball | 5090 | BBL | 1.64 KM |
| Dunton Green | 5102 | DNG | 3.36 KM |
| Otford | 5071 | OTF | 4.26 KM |
| Shoreham (Kent) | 5074 | SEH | 6.37 KM |
Nearby Listings
| Address | Price | Type | Score | Distance |
|---|---|---|---|---|
| Dartford Road, Sevenoaks, Kent, TN13 | £ 2,500,000 | BUY | 7 / 10 | 0.00 KM |
| Dartford Road, Sevenoaks, TN13 | £ 725,000 | BUY | 7 / 10 | 0.00 KM |
| Sevenoaks, TN13 | £ 695,000 | BUY | 6 / 10 | 0.04 KM |
| Dartford Road, Sevenoaks, TN13 | £ 575,000 | BUY | 6 / 10 | 0.05 KM |
| Dartford Road, Sevenoaks, Kent | £ 750,000 | BUY | 6 / 10 | 0.07 KM |
Nearby Properties
| Address | Price | Distance |
|---|---|---|
| 1 Dartford Road | £ 112,000 | 0.00 KM |
| Ragstones | £ 1,895,000 | 0.04 KM |
| Belmont | £ 2,660,000 | 0.04 KM |
| 10 Sackville Place | £ 1,850,000 | 0.04 KM |
| 9 Sackville Place | £ 1,460,000 | 0.04 KM |