Simon Blyth says ..
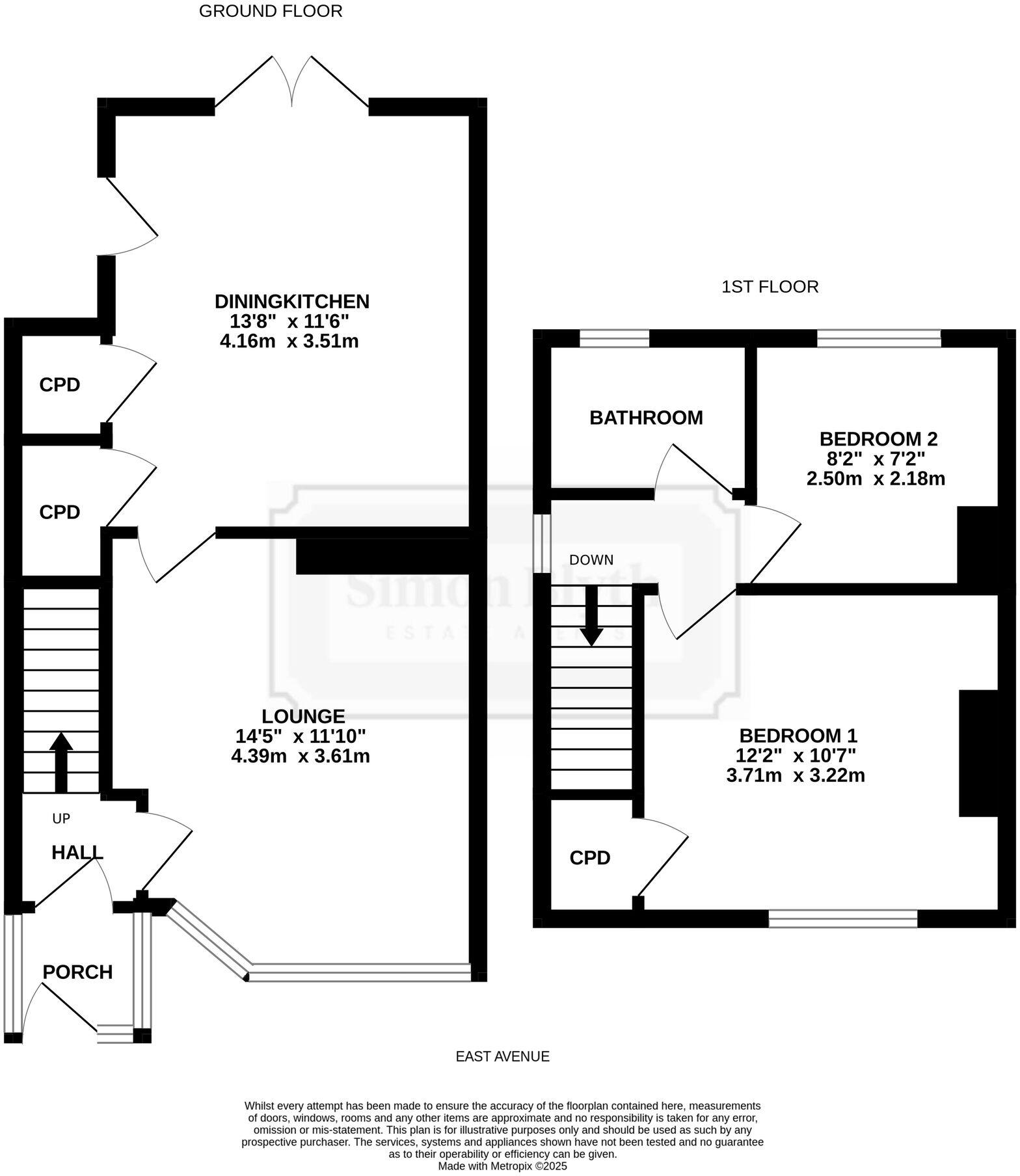
***For sale by Modern Method of Auction, Starting Bid Price £110,000 plus Reservation Fee*** A TWO BEDROOM SEMI DETACHED HOME OFFERED TO THE MARKET WITH NO UPPER VENDOR CHAIN IN A HIGHLY COMMUTABLE CONVENIENT LOCATION WITH ACCESS TO MANY LOCAL AMENITIES, INCLUDING WOMBWELL HIGH STREET AND WOMBWEL...
Property Oracle says ..
Therefore, we give this property 7 / 10. *Disclaimer: This is our option and does constitute a recommendation or financial advice. Do your own research. *
- Price
- 9
- Condition
- 7
- Location
- 8
- Land
- 7
- Bedrooms
- 2
- Bathrooms
- 1
- Sqft (est)
- 514.84
The heatmap indicates the level of crime in the area. The color of the heatmap indicates the crime severity and recency.
Metrics Year-on-Year
- Average area value
- 176,250.00 £Increased by 3.89 %
- Est sale value
- 94,730.56 £Increased by 2.22 %
- Average area rental value
- 554.00 £/moDecreased by 16.69 %
- Est letting value
- 0.00 £/mo
- Est rental Yield
- 3.77 %Decreased by 19.79 %
- Crime Rate
- 10.00 %Unchanged by 0.00 %
from 169,657.00 £
from 92,671.20 £
from 665.00 £/mo
from 0.00 £/mo
from 4.70 %
from 10.00 %
Agent Activity
Simon Blyth created the listing.
Nearby Schools
| Name | Type | Ofsted | Distance |
|---|---|---|---|
| High View Primary Learning Centre | Academy Converter | 0.33 KM | |
| Kings Oak Primary Learning Centre | Community School | Outstanding | 1.02 KM |
| Wombwell Family Centre | Children's Centre Linked Site | 1.03 KM | |
| The Ellis Church Of England (Voluntary Aided) Primary School | Voluntary Aided School | Good | 1.82 KM |
| Netherwood Academy | Academy Sponsor Led | Requires improvement | 1.97 KM |
Images
Nearby Streets
| Name | Average Price | Average Sqft | Distance |
|---|---|---|---|
| West Street | £ 0 | 0 | 0.00 KM |
| Midland Way | £ 0 | 0 | 0.00 KM |
| Neville Court | £ 0 | 0 | 0.00 KM |
| Kilncroft | £ 450,000 | 0 | 0.00 KM |
| Mitchells Way | £ 0 | 0 | 0.00 KM |
Nearby Transport
| Name | NLC | TLC | Distance |
|---|---|---|---|
| Wombwell | 6688 | WOM | 0.74 KM |
| Elsecar | 6667 | ELR | 3.15 KM |
| Barnsley | 6774 | BNY | 7.75 KM |
| Chapeltown (South Yorkshire) | 6664 | CLN | 8.93 KM |
Nearby Listings
| Address | Price | Type | Score | Distance |
|---|---|---|---|---|
| East Avenue, Wombwell, S73 | £ 110,000 | BUY | 7 / 10 | 0.00 KM |
| East Avenue, Wombwell, Barnsley | £ 140,000 | BUY | 6 / 10 | 0.03 KM |
| Kitchin Road, Wombwell, Barnsley | £ 190,000 | BUY | 7 / 10 | 0.12 KM |
| Burrows Grove, Wombwell, Barnsley, S73 | £ 230,000 | BUY | 6 / 10 | 0.17 KM |
| Burrows Grove, Wombwell, Barnsley | £ 180,000 | BUY | 6 / 10 | 0.17 KM |
Nearby Properties
| Address | Price | Distance |
|---|---|---|
| 54 East Avenue | £ 30,950 | 0.01 KM |
| 52 East Avenue | £ 116,000 | 0.01 KM |
| 18 East Avenue | £ 136,000 | 0.01 KM |
| 50 East Avenue | £ 53,950 | 0.01 KM |
| 46 East Avenue | £ 82,500 | 0.01 KM |