Land adjacent to, 17 Broad Street Green Road, Heybridge, Essex, CM9 4BE
By Dedman Gray Auction
£ 190,000
Reviews
3 out of 5 stars
Dedman Gray Auction says ..
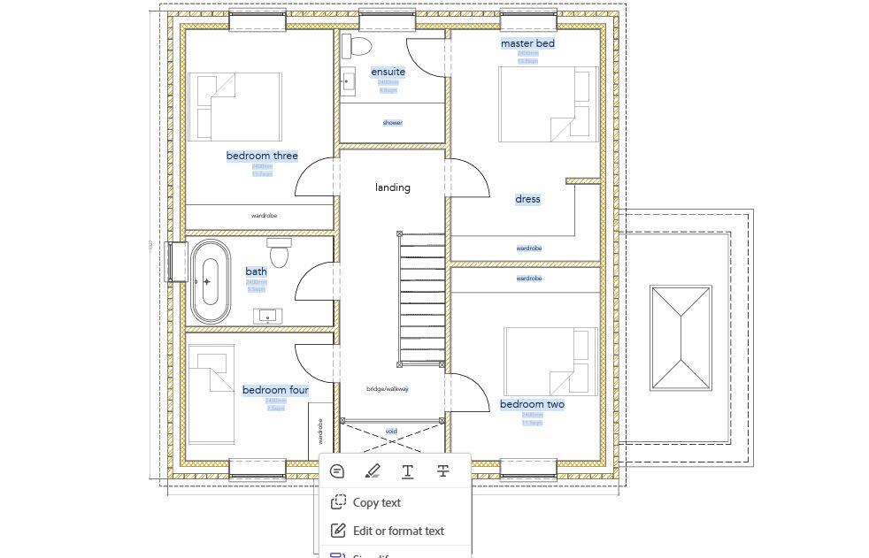
FOR SALE BY PUBLIC AUCTION ON THURSDAY, 12TH JUNE 2025 AT 12.00PM. LIVE STREAMED VIA DEDMAN GRAY WEBSITE. BIDDING AVAILABLE BY TELEPHONE, PROXY AND ONLINE; DEVELOPMENT OPPORTUNITY: A VACANT FREEHOLD PLOT IN SEMI RURAL AREA WITH PLANNING PERMISSION FOR THE DEVELOPMENT OF FOUR BEDROOM DETACHED
Property Oracle says ..
This land plot is located in Heybridge, Essex, a town with a mix of residential and commercial properties. The proximity to Heybridge Primary School (0.70 KM) and Heybridge Co-Operative Academy (1.05 KM) could be attractive to families. The nearby train station in Witham offers a connection to other areas, enhancing accessibility. However, the plot itself is vacant land, requiring significant investment to develop. The surrounding properties vary in price and style, suggesting a diverse housing market. The list price of £190,000 needs to be considered in the context of the land’s size and the costs associated with building a property from scratch. The average price per sqft in the area (£247) is not directly applicable to this land sale, as it is for finished properties.
Therefore, we give this property 6 / 10. *Disclaimer: This is our option and does constitute a recommendation or financial advice. Do your own research. *
- Price
- 0
- Condition
- 0
- Location
- 7
- Land
- 5
- Bedrooms
- 0
- Bathrooms
- 0
The heatmap indicates the level of crime in the area. The color of the heatmap indicates the crime severity and recency.
Metrics Year-on-Year
- Average area value
- 281,000.00 £Increased by 9.76 %
- Average area rental value
- 748.00 £/moDecreased by 41.38 %
- Est rental Yield
- 3.19 %Decreased by 46.66 %
- Crime Rate
- 26.00 %Unchanged by 0.00 %
Agent Activity
Dedman Gray Auction created the listing.
Nearby Schools
| Name | Type | Ofsted | Distance |
|---|---|---|---|
| Heybridge Primary School | Academy Sponsor Led | Good | 0.70 KM |
| Heybridge Co-Operative Academy | Academy Alternative Provision Converter | 1.05 KM | |
| Maldon Primary School | Academy Sponsor Led | 2.63 KM | |
| Maldon Court Preparatory School | Other Independent School | 2.69 KM | |
| Mal2 Maldon Family Hub | Children's Centre | 2.70 KM |
Images
Nearby Streets
| Name | Average Price | Average Sqft | Distance |
|---|---|---|---|
| Lapwing Drive | £ 450,000 | 0 | 0.00 KM |
| Heron Way | £ 270,000 | 0 | 0.00 KM |
| Oliver Close | £ 0 | 0 | 0.00 KM |
| The Square | £ 0 | 0 | 0.00 KM |
| Maypole Road | £ 430,662 | 0 | 0.00 KM |
Nearby Transport
| Name | NLC | TLC | Distance |
|---|---|---|---|
| Witham | 6844 | WTM | 8.84 KM |
Nearby Listings
| Address | Price | Type | Score | Distance |
|---|---|---|---|---|
| Land adjacent to, 17 Broad Street Green Road, Heybridge, Essex, CM9 4BE | £ 190,000 | BUY | 6 / 10 | 0.00 KM |
| Scylla Close, Heybridge | £ 395,000 | BUY | 6 / 10 | 0.08 KM |
| Spickets Drive, Heybridge, CM9 | £ 400,000 | BUY | 6 / 10 | 0.13 KM |
| Ash Grove, Heybridge | £ 360,000 | BUY | 6 / 10 | 0.14 KM |
| Ash Grove Heybridge, Maldon, CM9 4BB | £ 350,000 | BUY | 7 / 10 | 0.15 KM |
Nearby Properties
| Address | Price | Distance |
|---|---|---|
| 20 Broad Street Green Road | £ 410,000 | 0.08 KM |
| 5 Scylla Close | £ 249,000 | 0.09 KM |
| 12 Scylla Close | £ 405,000 | 0.09 KM |
| 3 Scylla Close | £ 212,500 | 0.09 KM |
| 15 Scylla Close | £ 183,000 | 0.09 KM |