HA
Cottenham Park Road, Wimbledon, SW20
By Hawes & Co
£ 2,400,000
Reviews
4 out of 5 stars
Hawes & Co says ..
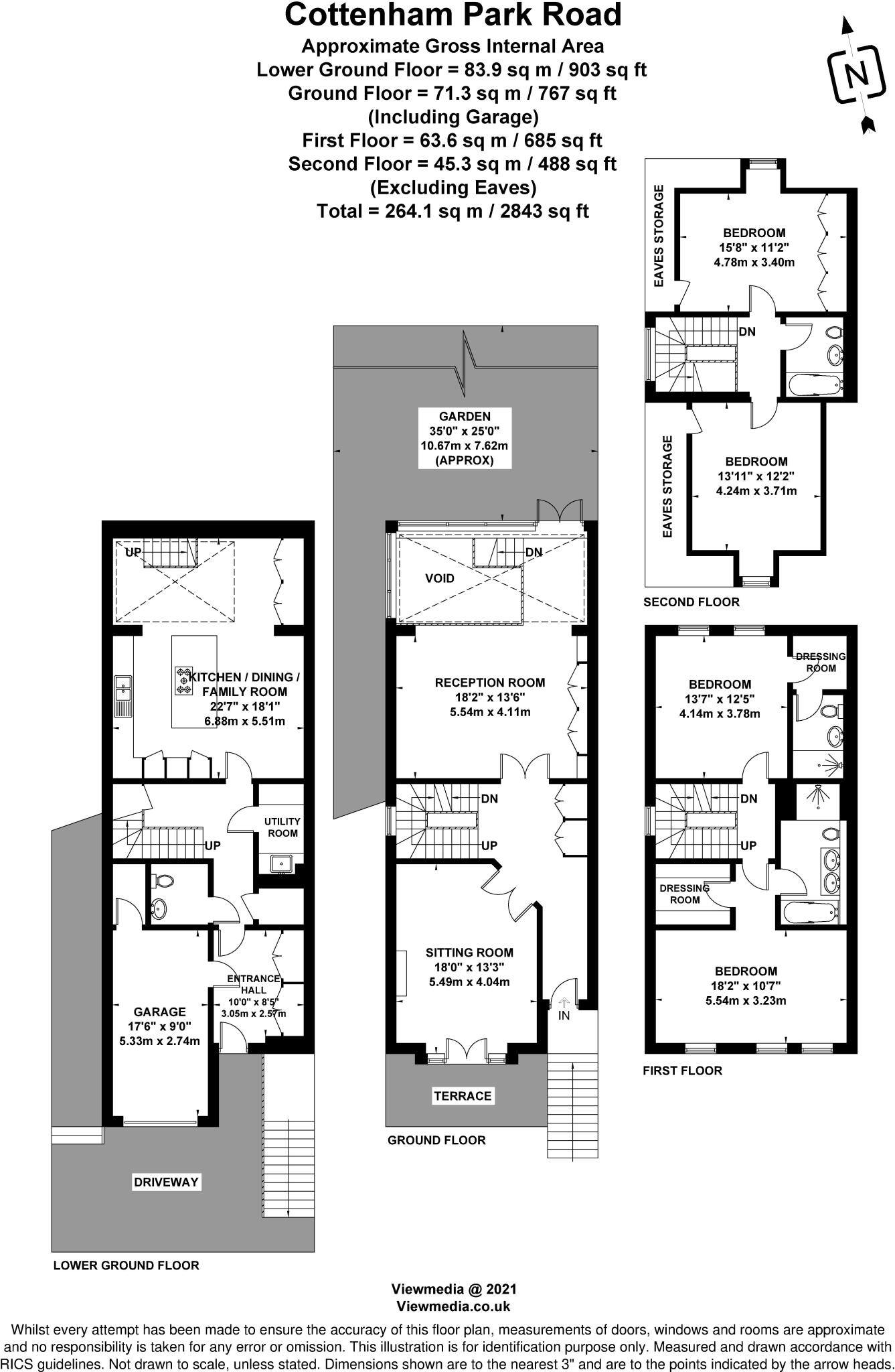
This superbly presented four-bedroom, three bathrooms semi-detached townhouse offers stylish and versatile living across four beautifully arranged floors. The standout feature is the stunning open-plan kitchen, which boasts an impressive atrium opening up to the sitting room above, creating a bri...
Property Oracle says ..
Therefore, we give this property 8 / 10. *Disclaimer: This is our option and does constitute a recommendation or financial advice. Do your own research. *
- Price
- 7
- Condition
- 9
- Location
- 9
- Land
- 7
- Bedrooms
- 4
- Bathrooms
- 3
The heatmap indicates the level of crime in the area. The color of the heatmap indicates the crime severity and recency.
Metrics Year-on-Year
- Average area value
- 516,545.00 £Decreased by 47.34 %
- Average area rental value
- 3,946.00 £/moDecreased by 6.85 %
- Est rental Yield
- 9.17 %Increased by 77.03 %
- Crime Rate
- 3.00 %Unchanged by 0.00 %
from 980,853.00 £
from 4,236.00 £/mo
from 5.18 %
from 3.00 %
Agent Activity
Hawes & Co created the listing.
Nearby Schools
| Name | Type | Ofsted | Distance |
|---|---|---|---|
| Hollymount School | Community School | Good | 0.34 KM |
| Norwegian School In London | Other Independent School | Good | 0.79 KM |
| The Norwegian Kindergarten In London | Other Independent School | Good | 0.79 KM |
| The Rowans School | Other Independent School | 0.89 KM | |
| The Bridge Children'S Centre | Children's Centre Linked Site | 0.95 KM |
Images
Nearby Streets
| Name | Average Price | Average Sqft | Distance |
|---|---|---|---|
| Orchard Lane | £ 2,200,000 | 0 | 0.00 KM |
| Orchard Grove | £ 2,125,000 | 0 | 0.00 KM |
| Hillview | £ 985,000 | 0 | 0.00 KM |
| Prospect Place | £ 2,495,000 | 0 | 0.00 KM |
| Cambridge Road | £ 0 | 0 | 0.00 KM |
Nearby Transport
| Name | NLC | TLC | Distance |
|---|---|---|---|
| Raynes Park | 5569 | RAY | 0.84 KM |
| Wimbledon Chase | 5612 | WBO | 2.22 KM |
| Motspur Park | 5645 | MOT | 2.46 KM |
| New Malden | 5567 | NEM | 2.88 KM |
| Wimbledon | 5578 | WIM | 2.99 KM |
Nearby Listings
| Address | Price | Type | Score | Distance |
|---|---|---|---|---|
| Cottenham Park Road, Wimbledon, SW20 | £ 2,400,000 | BUY | 8 / 10 | 0.00 KM |
| Cottenham Park Road, Wimbledon, London, SW20 | £ 1,270,000 | BUY | 7 / 10 | 0.02 KM |
| Cottenham Park Road, Wimbledon, London, SW20 | £ 2,500,000 | BUY | 7 / 10 | 0.03 KM |
| Cottenham Park Road, Wimbledon, London, SW20 | £ 2,000,000 | BUY | 7 / 10 | 0.06 KM |
| Cottenham Park Road, West Wimbledon, London, SW20 | £ 1,595,000 | BUY | 7 / 10 | 0.06 KM |
Nearby Properties
| Address | Price | Distance |
|---|---|---|
| 54 Cottenham Park Road | £ 760,000 | 0.01 KM |
| 48 Cottenham Park Road | £ 410,000 | 0.02 KM |
| 52 Cottenham Park Road | £ 707,000 | 0.02 KM |
| 40 Cottenham Park Road | £ 1,375,000 | 0.02 KM |
| 42 Cottenham Park Road | £ 727,000 | 0.02 KM |