Littlecote Gardens, Appleton, Warrington
By Gascoigne Halman
£ 750,000
Reviews
3 out of 5 stars
Gascoigne Halman says ..
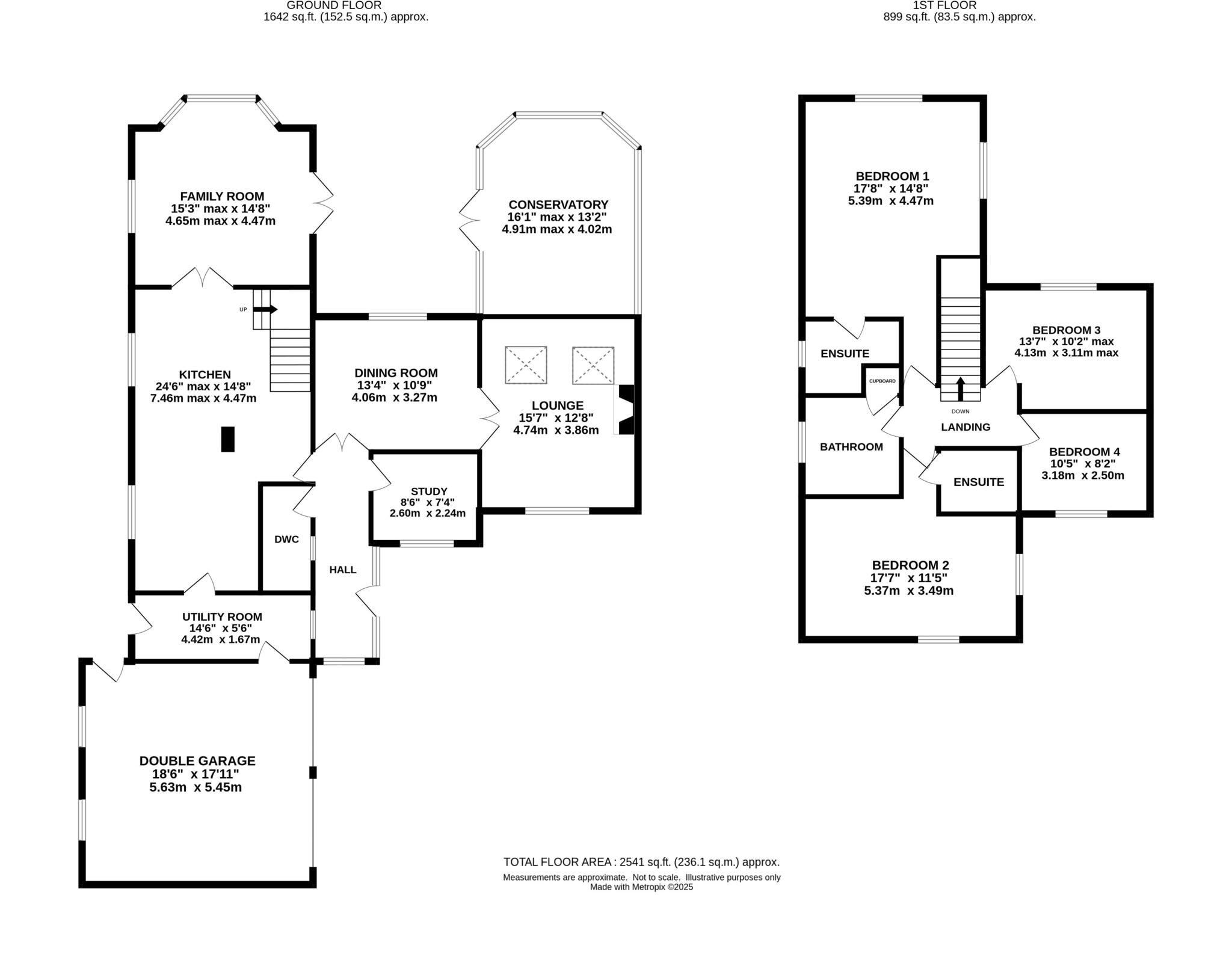
A spacious four-bedroom detached family home, tucked away at the end of a quiet private driveway, offering extended accommodation with four reception rooms, three bathrooms, a conservatory, and a double garage.
Property Oracle says ..
This is a detached property in Appleton, Warrington. It features four bedrooms and three bathrooms. The property is in a good location, close to schools and transport links. The condition of the property is generally good, although some aspects of the interior design are dated. The property benefits from a large garden. The listing price is {750,000.
Therefore, we give this property 7 / 10. *Disclaimer: This is our option and does constitute a recommendation or financial advice. Do your own research. *
- Price
- 6
- Condition
- 7
- Location
- 8
- Land
- 8
- Bedrooms
- 4
- Bathrooms
- 3
The heatmap indicates the level of crime in the area. The color of the heatmap indicates the crime severity and recency.
Metrics Year-on-Year
- Average area value
- 375,667.00 £Decreased by 6.15 %
- Average area rental value
- 1,270.00 £/moDecreased by 19.62 %
- Est rental Yield
- 4.06 %Decreased by 14.35 %
- Crime Rate
- 2.00 %Unchanged by 0.00 %
Agent Activity
Gascoigne Halman created the listing.
Nearby Schools
| Name | Type | Ofsted | Distance |
|---|---|---|---|
| Stretton St Matthew'S Cofe Primary School | Voluntary Aided School | Outstanding | 0.79 KM |
| Bridgewater High School | Academy Converter | 1.73 KM | |
| Broomfields Junior School | Academy Converter | 1.79 KM | |
| St Monica'S Catholic Primary School | Voluntary Aided School | Good | 1.93 KM |
| The Cygnets Children'S Centre | Children's Centre Linked Site | 2.10 KM |
Images
Nearby Streets
| Name | Average Price | Average Sqft | Distance |
|---|---|---|---|
| Lynton Gardens | £ 525,000 | 0 | 0.00 KM |
| Fulford Close | £ 355,000 | 0 | 0.00 KM |
| Hayling Close | £ 465,000 | 0 | 0.00 KM |
| Seacroft Avenue | £ 0 | 0 | 0.00 KM |
| Baldwin Grove | £ 0 | 0 | 0.00 KM |
Nearby Transport
| Name | NLC | TLC | Distance |
|---|---|---|---|
| Warrington Bank Quay | 2384 | WBQ | 5.40 KM |
| Warrington Central | 2390 | WAC | 5.44 KM |
| Padgate | 2387 | PDG | 6.74 KM |
| Warrington West | 6583 | WAW | 8.89 KM |
| Birchwood | 2304 | BWD | 8.97 KM |
Nearby Listings
| Address | Price | Type | Score | Distance |
|---|---|---|---|---|
| Littlecote Gardens, Appleton, Warrington | £ 750,000 | BUY | 7 / 10 | 0.00 KM |
| Littlecote Gardens, Appleton, Warrington, WA4 | £ 695,000 | BUY | 7 / 10 | 0.06 KM |
| Littlecote Gardens, Warrington, WA4 | £ 699,950 | BUY | 7 / 10 | 0.10 KM |
| Pewterspear Lane, Appleton WA4 | £ 775,000 | BUY | 7 / 10 | 0.18 KM |
| Highfield Avenue, Appleton | £ 550,000 | BUY | 7 / 10 | 0.22 KM |
Nearby Properties
| Address | Price | Distance |
|---|---|---|
| 35 Littlecote Gardens | £ 349,950 | 0.07 KM |
| 31 Littlecote Gardens | £ 550,000 | 0.07 KM |
| 14 Littlecote Gardens | £ 555,000 | 0.07 KM |
| 12 Littlecote Gardens | £ 385,000 | 0.07 KM |
| 5 Littlecote Gardens | £ 495,950 | 0.07 KM |