Maybank, 9 Balformo Road, Scone, Perth
RE

Maybank, 9 Balformo Road, Scone, Perth

By Rettie & Co

£ 735,000

Reviews

3 out of 5 stars

Rettie & Co says ..

A beautifully presented period home, affording comfortable and stylish modern living in a refined period setting, which is set apart by its generous and private plot in the historic town of Scone. Maybank is accompanied by a traditional coach house/stable block, which provide scope fo...

Property Oracle says ..

Maybank, located in Scone, Perthshire, is a substantial six-bedroom detached period home presented to a high standard. The property boasts considerable charm, including original features complemented by contemporary updates. The interior photographs reveal spacious and well-lit rooms, suggesting comfortable and stylish living. Externally, the home benefits from a large garden, offering both privacy and space. A detached coach house/stable block offers additional potential for a variety of uses. The location in Scone offers the advantages of a desirable village setting whilst also being near enough to Perth for access to additional amenities and transport. Overall, the property appears to be a well-maintained, high-quality family home with a rich architectural history. The lack of precise plot size data and the absence of easily comparable properties in the immediate vicinity however, hinders complete and total analysis.

Therefore, we give this property 7 / 10. *Disclaimer: This is our option and does constitute a recommendation or financial advice. Do your own research. *

Price
7
Condition
8
Location
7
Land
6
Bedrooms
6
Bathrooms
2
Sqft (est)
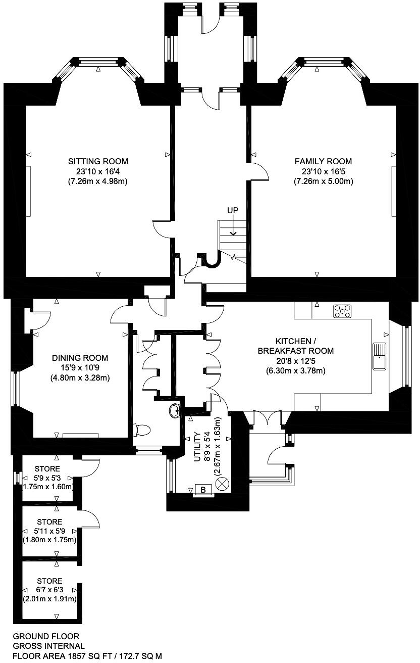
1,858.93

The heatmap indicates the level of crime in the area. The color of the heatmap indicates the crime severity and recency.

Metrics Year-on-Year

Average area value
317,500.00 £
Increased by 8.70 %
from 292,078.00 £
Est sale value
360,632.42 £
Decreased by 4.43 %
from 377,362.79 £
Average area rental value
495.00 £/mo
Decreased by 58.12 %
from 1,182.00 £/mo
Est letting value
0.00 £/mo
from 0.00 £/mo
Est rental Yield
1.87 %
Decreased by 61.52 %
from 4.86 %
Crime Rate
0.00 %
from 0.00 %

Agent Activity

  • Rettie & Co created the listing.

Images

Picture No. 08 Picture No. 09 Picture No. 10 Picture No. 13 Picture No. 12 Picture No. 11 Picture No. 15 Picture No. 16 Picture No. 17 Picture No. 19 Picture No. 25 Picture No. 26 Picture No. 07 Picture No. 03 Picture No. 04 Picture No. 18 Picture No. 20 Picture No. 24 Picture No. 23 Picture No. 28 Picture No. 05 Picture No. 06 Picture No. 02 Picture No. 01 Picture No. 27

Nearby Streets

NameAverage PriceAverage SqftDistance
Thistle Place £ 162,50000.00 KM
Lovers Lane £ 000.00 KM
The Acres £ 000.00 KM
Perth Road £ 148,03600.00 KM
Goshen Crescent £ 206,75000.00 KM

Nearby Transport

NameNLCTLCDistance
Perth8805PTH5.47 KM

Nearby Listings

AddressPriceTypeScoreDistance
Balformo Road, Scone, Perth £ 699,950BUY7 / 100.00 KM
29 Union Road, Scone, Perth, Perth and Kinross, PH2 £ 430,000BUY7 / 100.11 KM
Union Road, Scone, Perth, Perth and Kinross, PH2 £ 430,000BUYUnknown0.12 KM
Plot 217, Mansfield Park, Scone, PH2 6FQ £ 454,000BUYUnknown0.18 KM
Stormont Road, Scone, Perth £ 59,950BUY5 / 100.20 KM