Chatfield Drive, Guildford, Surrey, GU4
By Seymours
£ 650,000
Reviews
3 out of 5 stars
Seymours says ..
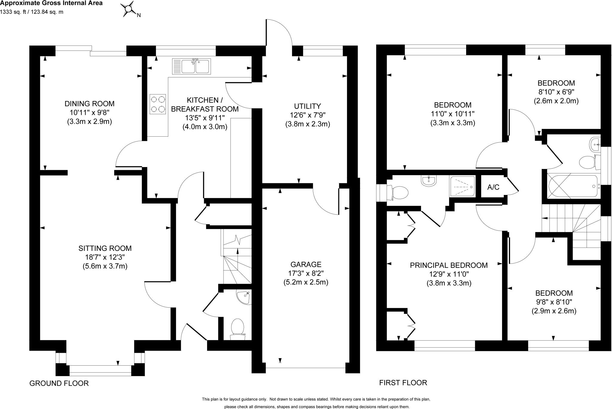
This charming home is a detached four-bedroom family home, built by Charles Church, and is situated in the highly sought-after Merrow Park. The property offers generous living space arranged over two floors and, while well maintained, presents an opportunity for a new owner to modernise and updat...
Property Oracle says ..
This detached property located on Chatfield Drive, Guildford, presents a good opportunity for buyers looking to invest in a property with renovation potential. The house offers four bedrooms and two bathrooms, making it suitable for families. While the interior requires modernisation, the property benefits from a desirable location with access to good schools and transportation links. The presence of a good-sized garden adds to the appeal. The asking price of £650,000 reflects the need for renovation and is competitive compared to the average property prices in the area.
Therefore, we give this property 6 / 10. *Disclaimer: This is our option and does constitute a recommendation or financial advice. Do your own research. *
- Price
- 7
- Condition
- 4
- Location
- 7
- Land
- 7
- Bedrooms
- 4
- Bathrooms
- 2
- Sqft (est)
- 371.35
The heatmap indicates the level of crime in the area. The color of the heatmap indicates the crime severity and recency.
Metrics Year-on-Year
- Average area value
- 891,667.00 £Increased by 21.04 %
- Est sale value
- 232,465.10 £Increased by 89.70 %
- Average area rental value
- 2,393.00 £/moIncreased by 18.17 %
- Est letting value
- 371.35 £/mo
- Est rental Yield
- 3.22 %Decreased by 2.42 %
- Crime Rate
- 12.00 %Unchanged by 0.00 %
Agent Activity
Seymours created the listing.
Nearby Schools
| Name | Type | Ofsted | Distance |
|---|---|---|---|
| Bushy Hill Junior School | Foundation School | Good | 0.39 KM |
| Merrow Cofe Controlled Infant School | Voluntary Controlled School | Outstanding | 0.43 KM |
| St Peter'S Catholic School | Academy Converter | 0.61 KM | |
| St Thomas Of Canterbury Catholic Primary School | Academy Converter | 1.25 KM | |
| Boxgrove Sure Start Children'S Centre | Children's Centre | 1.30 KM |
Images
Nearby Streets
| Name | Average Price | Average Sqft | Distance |
|---|---|---|---|
| Kingfisher Court | £ 250,000 | 0 | 0.00 KM |
| Highgrove | £ 250,000 | 0 | 0.00 KM |
| Merrow Common Road | £ 1,049,975 | 1,232 | 0.00 KM |
| White House Drive | £ 1,075,000 | 0 | 0.00 KM |
| Belmont Place | £ 0 | 0 | 0.00 KM |
Nearby Transport
| Name | NLC | TLC | Distance |
|---|---|---|---|
| London Road (Guildford) | 5632 | LRD | 3.63 KM |
| Clandon | 5555 | CLA | 3.74 KM |
| Chilworth | 5296 | CHL | 4.13 KM |
| Guildford | 5631 | GLD | 5.37 KM |
| Shalford (Surrey) | 5638 | SFR | 5.47 KM |
Nearby Listings
| Address | Price | Type | Score | Distance |
|---|---|---|---|---|
| Chatfield Drive, Guildford, Surrey, GU4 | £ 650,000 | BUY | 6 / 10 | 0.00 KM |
| Chatfield Drive, Merrow Park, GU4 | £ 850,000 | BUY | 8 / 10 | 0.00 KM |
| Chatfield Drive, Merrow Park, GU4 | £ 699,950 | BUY | 6 / 10 | 0.00 KM |
| Woodger Close, Guildford | £ 300,000 | BUY | 7 / 10 | 0.11 KM |
| Woodger Close, Guildford | £ 305,000 | BUY | Unknown | 0.11 KM |
Nearby Properties
| Address | Price | Distance |
|---|---|---|
| 20 Chatfield Drive | £ 155,950 | 0.01 KM |
| 14 Chatfield Drive | £ 185,000 | 0.01 KM |
| 28 Chatfield Drive | £ 205,000 | 0.01 KM |
| 18 Chatfield Drive | £ 317,500 | 0.01 KM |
| 34 Chatfield Drive | £ 133,000 | 0.01 KM |