HA
3 Pinewood Close Shrewsbury, SY1 3SF
By Halls Estate Agents
£ 275,000
Reviews
3 out of 5 stars
Halls Estate Agents says ..
A beautifully updated semi-detached family home situated in a highly sought after location with lovely rear gardens and views.
Property Oracle says ..
Therefore, we give this property 7 / 10. *Disclaimer: This is our option and does constitute a recommendation or financial advice. Do your own research. *
- Price
- 6
- Condition
- 8
- Location
- 7
- Land
- 7
- Bedrooms
- 3
- Bathrooms
- 1
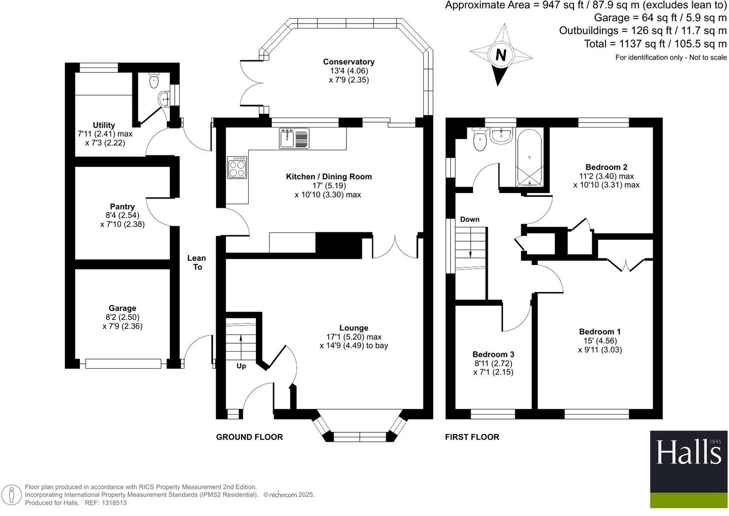
- Sqft (est)
- 1,059.84
The heatmap indicates the level of crime in the area. The color of the heatmap indicates the crime severity and recency.
Metrics Year-on-Year
- Average area value
- 243,278.00 £Decreased by 3.15 %
- Est sale value
- 331,729.92 £Increased by 28.81 %
- Average area rental value
- 1,186.00 £/moIncreased by 12.42 %
- Est letting value
- 1,059.84 £/moUnchanged by 0.00 %
- Est rental Yield
- 5.85 %Increased by 16.07 %
- Crime Rate
- 0.00 %
from 251,196.00 £
from 257,541.12 £
from 1,055.00 £/mo
from 1,059.84 £/mo
from 5.04 %
from 0.00 %
Agent Activity
Halls Estate Agents created the listing.
Nearby Schools
| Name | Type | Ofsted | Distance |
|---|---|---|---|
| Grange Primary School | Academy Sponsor Led | 0.68 KM | |
| Mount Pleasant Primary | Academy Converter | Good | 0.81 KM |
| Greenacres Primary School | Academy Converter | 1.29 KM | |
| Greenfields Primary School | Academy Converter | Good | 1.38 KM |
| The Prepatoria School | Other Independent School | Outstanding | 1.48 KM |
Images
Nearby Streets
| Name | Average Price | Average Sqft | Distance |
|---|---|---|---|
| Horley Drive | £ 250,000 | 0 | 0.00 KM |
| Heathfield Close | £ 0 | 0 | 0.00 KM |
| Worcester Road | £ 0 | 0 | 0.00 KM |
| Grafton Mews | £ 0 | 0 | 0.00 KM |
| Cedar Drive | £ 500,000 | 0 | 0.00 KM |
Nearby Transport
| Name | NLC | TLC | Distance |
|---|---|---|---|
| Shrewsbury | 4387 | SHR | 2.35 KM |
| Yorton | 1351 | YRT | 8.54 KM |
Nearby Listings
| Address | Price | Type | Score | Distance |
|---|---|---|---|---|
| 3 Pinewood Close Shrewsbury, SY1 3SF | £ 275,000 | BUY | 7 / 10 | 0.00 KM |
| Pinewood Close, Heath Farm, Shrewsbury | £ 350,000 | BUY | 7 / 10 | 0.03 KM |
| Pinewood Close, Shrewsbury, SY1 | £ 269,950 | BUY | 7 / 10 | 0.07 KM |
| Ashfields Road, Heath Farm, Shrewsbury, Shropshire, SY1 | £ 240,000 | BUY | Unknown | 0.14 KM |
| 35 Ashfields Road, Heath Farm, Shrewsbury, SY1 3SB | £ 350,000 | BUY | 6 / 10 | 0.14 KM |
Nearby Properties
| Address | Price | Distance |
|---|---|---|
| 22 Pinewood Close | £ 165,000 | 0.06 KM |
| 39 Pinewood Close | £ 255,000 | 0.06 KM |
| 41 Pinewood Close | £ 205,000 | 0.06 KM |
| 3 Pinewood Close | £ 176,000 | 0.06 KM |
| 6 Pinewood Close | £ 242,000 | 0.06 KM |