Winkworth says ..
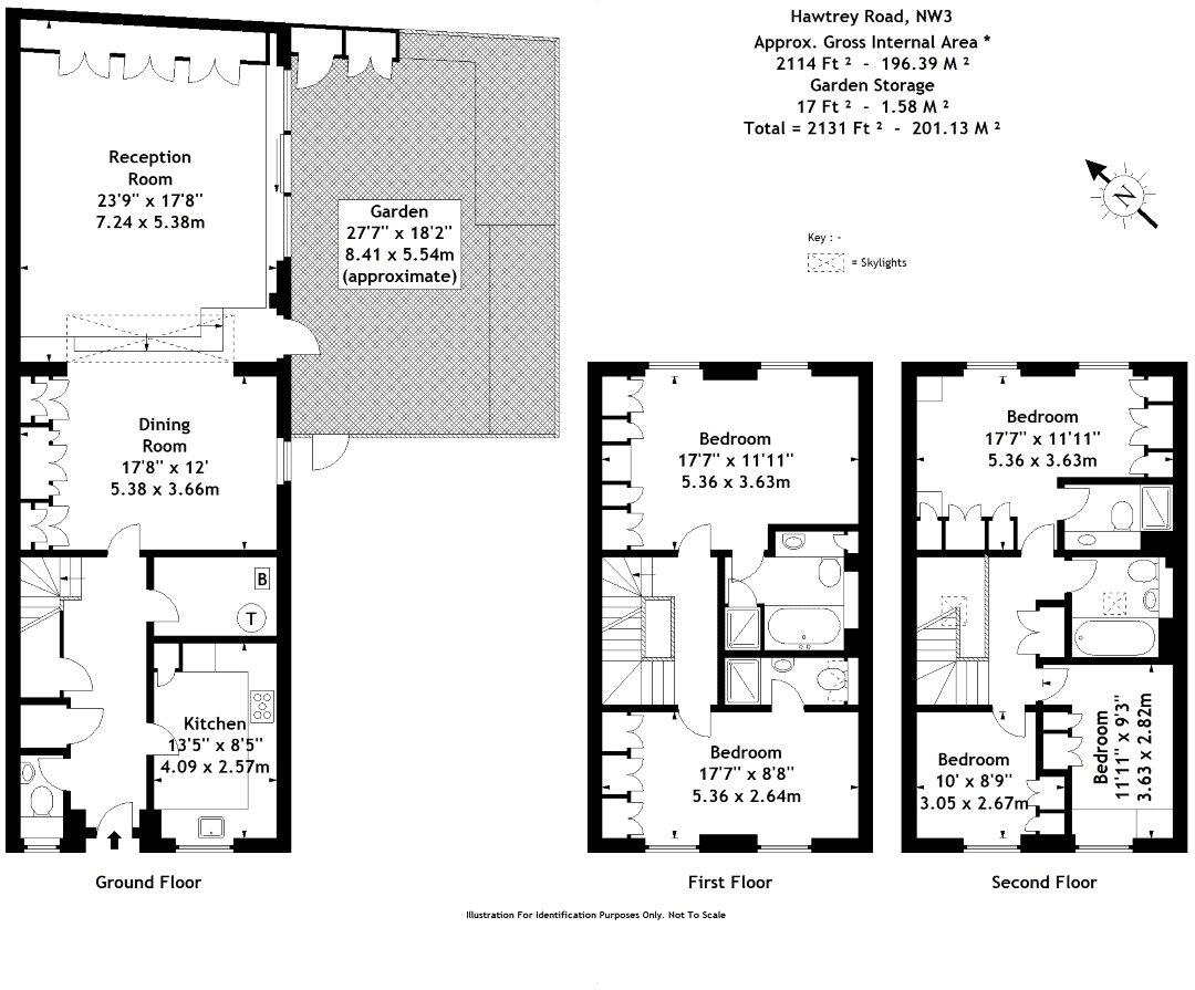
A 5 bedroom contemporary style town house provides 2,114 sqft / 196 sqm of immaculately presented accommodation within a short walk of Primrose Hill (0.3 mile) and the extensive amenities of Swiss Cottage. Set over three floors, the house comprises a large reception room with separate split level...
Property Oracle says ..
This property is a 5 bedroom, 4 bathroom end of terrace house located in Swiss Cottage, a highly desirable area of London. The property benefits from a modern interior, well-maintained throughout and benefits from a private rear garden. The location is excellent, with good transport links and local amenities close by. The property is priced at £2,750,000 which is above the average price for the area but in line with similar properties nearby. Given the size, condition and location, the price appears reasonable.
Therefore, we give this property 8 / 10. *Disclaimer: This is our option and does constitute a recommendation or financial advice. Do your own research. *
- Price
- 7
- Condition
- 9
- Location
- 10
- Land
- 7
- Bedrooms
- 5
- Bathrooms
- 4
- Sqft (est)
- 2,950.93
The heatmap indicates the level of crime in the area. The color of the heatmap indicates the crime severity and recency.
Metrics Year-on-Year
- Average area value
- 952,139.00 £Decreased by 44.31 %
- Est sale value
- 3,119,133.01 £Decreased by 13.08 %
- Average area rental value
- 2,414.00 £/moDecreased by 22.03 %
- Est letting value
- 5,901.86 £/moUnchanged by 0.00 %
- Est rental Yield
- 3.04 %Increased by 40.09 %
- Crime Rate
- 4.00 %Unchanged by 0.00 %
Agent Activity
Winkworth created the listing.
Nearby Schools
| Name | Type | Ofsted | Distance |
|---|---|---|---|
| Sarum Hall School | Other Independent School | 0.34 KM | |
| Trevor-Roberts School | Other Independent School | 0.35 KM | |
| Hereward House School | Other Independent School | 0.38 KM | |
| Swiss Cottage School - Development & Research Centre | Community Special School | Outstanding | 0.44 KM |
| The Hall School | Other Independent School | 0.48 KM |
Images
Nearby Streets
| Name | Average Price | Average Sqft | Distance |
|---|---|---|---|
| Lyttleton Close | £ 0 | 0 | 0.00 KM |
| Harben Road | £ 0 | 0 | 0.00 KM |
| Winchester Mews | £ 0 | 0 | 0.00 KM |
| Rudgwick Terrace | £ 4,950,000 | 0 | 0.00 KM |
| Primrose Hill Road | £ 0 | 0 | 0.00 KM |
Nearby Transport
| Name | NLC | TLC | Distance |
|---|---|---|---|
| South Hampstead | 1451 | SOH | 1.24 KM |
| Hampstead Heath | 1413 | HDH | 1.43 KM |
| Finchley Road And Frognal | 1445 | FNY | 1.91 KM |
| Marylebone | 1475 | MYB | 2.29 KM |
| Gospel Oak | 1409 | GPO | 2.36 KM |
Nearby Listings
| Address | Price | Type | Score | Distance |
|---|---|---|---|---|
| Hawtrey Road, Primrose Hill, London, NW3 | £ 1,800,000 | BUY | 8 / 10 | 0.02 KM |
| Hawtrey Road, Swiss Cottage, NW3 | £ 1,800,000 | BUY | 6 / 10 | 0.03 KM |
| Hawtrey Road, London, NW3 | £ 1,750,000 | BUY | Unknown | 0.10 KM |
| King Henrys Road, Primrose Hill, London, NW3 | £ 975,000 | BUY | Unknown | 0.10 KM |
| King Henrys Road, London | £ 1,000,000 | BUY | 6 / 10 | 0.10 KM |
Nearby Properties
| Address | Price | Distance |
|---|---|---|
| 183 Adelaide Road | £ 560,000 | 0.03 KM |
| 179 Adelaide Road | £ 475,000 | 0.03 KM |
| 13 Hawtrey Road | £ 1,620,000 | 0.10 KM |
| 1 Hawtrey Road | £ 2,500,000 | 0.10 KM |
| 56 Hawtrey Road | £ 900,000 | 0.10 KM |