Nicholls Tyreman says ..
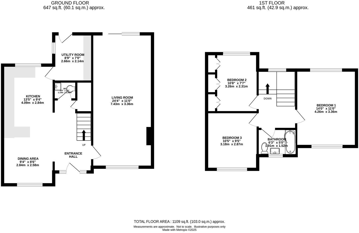
A beautifully presented, brick built, extended semi detached property, located in this enviable location between Ripley and Knaresborough, adjacent to open countryside. The property has recently been modernised and truly requires an internal inspection to appreciate the well planned and ...
Property Oracle says ..
Therefore, we give this property 7 / 10. *Disclaimer: This is our option and does constitute a recommendation or financial advice. Do your own research. *
- Price
- 6
- Condition
- 8
- Location
- 8
- Land
- 7
- Bedrooms
- 3
- Bathrooms
- 1
- Sqft (est)
- 902.09
The heatmap indicates the level of crime in the area. The color of the heatmap indicates the crime severity and recency.
Metrics Year-on-Year
- Average area value
- 425,000.00 £Increased by 22.40 %
- Est sale value
- 357,227.64 £Increased by 78.38 %
- Average area rental value
- 1,098.00 £/moDecreased by 12.09 %
- Est letting value
- 902.09 £/mo
- Est rental Yield
- 3.10 %Decreased by 28.24 %
- Crime Rate
- 11.00 %Unchanged by 0.00 %
from 347,213.00 £
from 200,263.98 £
from 1,249.00 £/mo
from 0.00 £/mo
from 4.32 %
from 11.00 %
Agent Activity
Nicholls Tyreman created the listing.
Nearby Schools
| Name | Type | Ofsted | Distance |
|---|---|---|---|
| Scotton Lingerfield Primary School | Community School | Good | 1.70 KM |
| Starbeck Primary Academy | Academy Sponsor Led | 2.09 KM | |
| Springwater School | Community Special School | Outstanding | 2.17 KM |
| Henshaws College | Special Post 16 Institution | Good | 2.20 KM |
| St Mary'S Primary School Knaresborough, A Voluntary Catholic Academy | Academy Converter | Good | 2.42 KM |
Images
Nearby Streets
| Name | Average Price | Average Sqft | Distance |
|---|---|---|---|
| Smithy Lane | £ 1,050,000 | 0 | 0.00 KM |
| Manor Drive | £ 0 | 0 | 0.00 KM |
| Hillbank Road | £ 0 | 0 | 0.00 KM |
Nearby Transport
| Name | NLC | TLC | Distance |
|---|---|---|---|
| Starbeck | 8221 | SBE | 2.55 KM |
| Knaresborough | 8214 | KNA | 2.69 KM |
| Harrogate | 8213 | HGT | 5.86 KM |
| Hornbeam Park | 8212 | HBP | 5.90 KM |
| Pannal | 8479 | PNL | 8.26 KM |
Nearby Listings
| Address | Price | Type | Score | Distance |
|---|---|---|---|---|
| Ripley Road, Knaresborough | £ 450,000 | BUY | 7 / 10 | 0.00 KM |
| Ripley Road, Knaresborough | £ 425,000 | BUY | 7 / 10 | 0.00 KM |
| Appleby Green, Knaresborough, HG5 | £ 800,000 | BUY | 7 / 10 | 0.16 KM |
| Ripley Road, Knaresborough | £ 1,600,000 | BUY | Unknown | 0.21 KM |
| Appleby Avenue, Knaresborough | £ 775,000 | BUY | Unknown | 0.22 KM |
Nearby Properties
| Address | Price | Distance |
|---|---|---|
| 7 Appleby Green | £ 500,000 | 0.18 KM |
| 8 Appleby Green | £ 565,000 | 0.18 KM |
| 2 Appleby Green | £ 340,000 | 0.18 KM |
| 3 Appleby Green | £ 394,000 | 0.18 KM |
| 16 Appleby Green | £ 408,000 | 0.18 KM |