Kidwell Place, Cobham, Surrey, KT11
By So Resi
£ 135,625
Reviews
2 out of 5 stars
So Resi says ..
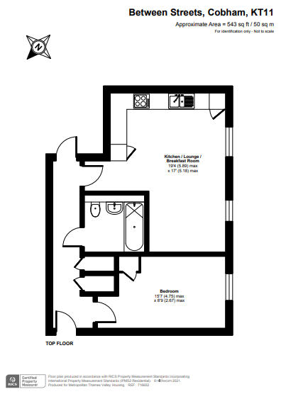
Contemporary second floor apartment in Cobham, Surrey available for sale through the Shared Onwership Scheme. The property comprises two large bedrooms, open plan kitchen/reception area,hallway with fitted storage cupboards and bathroom with WC. The property comes with allocated parking space....
Property Oracle says ..
This two-bedroom apartment in Cobham, Surrey, is situated in a convenient location near to schools, and transport links. The property boasts a modern interior with a recently updated kitchen, creating a contemporary feel. The photos showcase a clean and well-maintained space, although the absence of square footage and plot size details limits a comprehensive assessment. The lack of outdoor space is a notable drawback, particularly given the area’s desirability. Compared to nearby properties, this apartment’s price appears comparatively low, potentially due to its smaller size and lack of private land. While the location and condition are positive attributes, potential buyers should carefully consider the limited space and lack of a garden when comparing it to other options in the market.
Therefore, we give this property 5 / 10. *Disclaimer: This is our option and does constitute a recommendation or financial advice. Do your own research. *
- Price
- 6
- Condition
- 8
- Location
- 7
- Land
- 1
- Bedrooms
- 2
- Bathrooms
- 0
The heatmap indicates the level of crime in the area. The color of the heatmap indicates the crime severity and recency.
Metrics Year-on-Year
- Average area value
- 2,713,636.00 £Increased by 69.90 %
- Average area rental value
- 4,007.00 £/moIncreased by 11.27 %
- Est rental Yield
- 1.77 %Decreased by 34.69 %
- Crime Rate
- 0.00 %
Agent Activity
So Resi created the listing.
Nearby Schools
| Name | Type | Ofsted | Distance |
|---|---|---|---|
| Notre Dame Preparatory School | Other Independent School | 0.00 KM | |
| Notre Dame Senior School | Other Independent School | 0.00 KM | |
| Feltonfleet | Other Independent School | 1.12 KM | |
| Cobham Montessori School | Other Independent School | 2.38 KM | |
| Cobham Sure Start Children'S Centre | Children's Centre | 2.38 KM |
Images
Nearby Streets
| Name | Average Price | Average Sqft | Distance |
|---|---|---|---|
| Convent Lane | £ 800,000 | 0 | 0.00 KM |
| Portsmouth Road | £ 0 | 0 | 0.00 KM |
| Norwood Farm Lane | £ 0 | 0 | 0.00 KM |
| Elvedon Road | £ 0 | 0 | 0.00 KM |
Nearby Transport
| Name | NLC | TLC | Distance |
|---|---|---|---|
| Walton-On-Thames | 5575 | WAL | 3.58 KM |
| Weybridge | 5577 | WYB | 4.28 KM |
| Cobham And Stoke D'Abernon | 5557 | CSD | 4.71 KM |
| Hersham | 5590 | HER | 5.41 KM |
| Effingham Junction | 5642 | EFF | 5.67 KM |
Nearby Listings
| Address | Price | Type | Score | Distance |
|---|---|---|---|---|
| Kidwell Place, Cobham, Surrey, KT11 | £ 135,625 | BUY | 5 / 10 | 0.00 KM |
| Convent Lane, Cobham, KT11 | £ 1,500,000 | BUY | Unknown | 0.45 KM |
| Bridge Way, Cobham, Surrey, KT11 | £ 850,000 | BUY | 7 / 10 | 0.81 KM |
| Riverview Gardens, Cobham, Surrey, KT11 | £ 475,000 | BUY | 7 / 10 | 0.83 KM |
| Riverview Gardens, Cobham, Surrey, KT11 | £ 320,000 | BUY | 8 / 10 | 0.84 KM |
Nearby Properties
| Address | Price | Distance |
|---|---|---|
| The Pavilion | £ 1,325,000 | 0.46 KM |
| Kingfisher | £ 500,000 | 0.46 KM |
| Dell Cottage | £ 1,255,000 | 0.46 KM |
| Caigers Cottage | £ 485,000 | 0.46 KM |
| 22 Riverview Gardens | £ 410,000 | 0.84 KM |