Beck Lane, South Kilvington, YO7
By Nove Property
£ 284,950
Reviews
3 out of 5 stars
Nove Property says ..
Nestled in the heart of a charming village, this exquisite 2-bedroom dormer bungalow crafted by Harkwood Homes is a masterpiece of modern design.
Property Oracle says ..
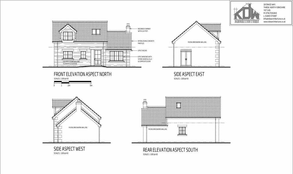
This property is a new build 2-bedroom dormer bungalow located in South Kilvington, North Yorkshire. The listing highlights its modern design, created by Harkwood Homes. The architectural plans reveal a well-designed layout, splitting living space across ground and first floors. The artist’s impressions suggest a high-quality finish. The nearby South Kilvington Church of England Primary School is a plus for families, and the proximity to Thirsk provides access to additional amenities and transportation. A small garden is suggested, though details on the plot size are not provided. The asking price appears to be in line with other properties in the area, though a definitive comparison is difficult due to the lack of consistent square footage data in the provided information for comparable properties. The overall impression is of a modern, well-designed property in a desirable village location.
Therefore, we give this property 6 / 10. *Disclaimer: This is our option and does constitute a recommendation or financial advice. Do your own research. *
- Price
- 7
- Condition
- 9
- Location
- 7
- Land
- 3
- Bedrooms
- 2
- Bathrooms
- 1
- Sqft (est)
- 787.92
The heatmap indicates the level of crime in the area. The color of the heatmap indicates the crime severity and recency.
Metrics Year-on-Year
- Average area value
- 235,000.00 £Increased by 13.70 %
- Est sale value
- 227,708.88 £Increased by 30.18 %
- Average area rental value
- 1,100.00 £/moDecreased by 0.99 %
- Est letting value
- 787.92 £/moUnchanged by 0.00 %
- Est rental Yield
- 5.62 %Decreased by 12.87 %
- Crime Rate
- 12.00 %Unchanged by 0.00 %
Agent Activity
Nove Property created the listing.
Nearby Schools
| Name | Type | Ofsted | Distance |
|---|---|---|---|
| South Kilvington Church Of England Voluntary Controlled Primary School | Voluntary Controlled School | Good | 0.30 KM |
| Thirsk Community Primary School | Community School | Requires improvement | 1.95 KM |
| Thirsk Children'S Centre | Children's Centre | 1.95 KM | |
| All Saints Catholic Primary School, A Catholic Voluntary Academy | Academy Sponsor Led | 2.48 KM | |
| Sowerby Primary Academy | Academy Converter | 2.56 KM |
Images
Nearby Streets
| Name | Average Price | Average Sqft | Distance |
|---|---|---|---|
| Northallerton Road | £ 280,000 | 0 | 0.00 KM |
| St Mary's Avenue | £ 0 | 0 | 0.00 KM |
| The Green | £ 0 | 0 | 0.00 KM |
| St. James Green | £ 0 | 0 | 0.00 KM |
| St Mary's Drive | £ 0 | 0 | 0.00 KM |
Nearby Transport
| Name | NLC | TLC | Distance |
|---|---|---|---|
| Thirsk | 8191 | THI | 3.57 KM |
Nearby Listings
| Address | Price | Type | Score | Distance |
|---|---|---|---|---|
| Beck Lane, South Kilvington, YO7 | £ 284,950 | BUY | 6 / 10 | 0.00 KM |
| Upsall Road, South Kilvington, Thirsk | £ 385,000 | BUY | 7 / 10 | 0.12 KM |
| South Kilvington, Thirsk | £ 280,000 | BUY | 7 / 10 | 0.14 KM |
| South Kilvington, Thirsk | £ 320,000 | BUY | 7 / 10 | 0.14 KM |
| South Kilvington, Thirsk | £ 785,000 | BUY | 7 / 10 | 0.18 KM |
Nearby Properties
| Address | Price | Distance |
|---|---|---|
| 1 Starling Hall Cottages | £ 234,000 | 0.14 KM |
| 6a Upsall Road | £ 250,000 | 0.35 KM |
| Fivetrees | £ 120,000 | 0.35 KM |
| Five Trees | £ 320,000 | 0.35 KM |
| Dunelm | £ 215,000 | 0.37 KM |