NORTH ROCKS ROAD BROADSANDS PAIGNTON
By Eric Lloyd & Co
£ 655,000
Reviews
3 out of 5 stars
Eric Lloyd & Co says ..
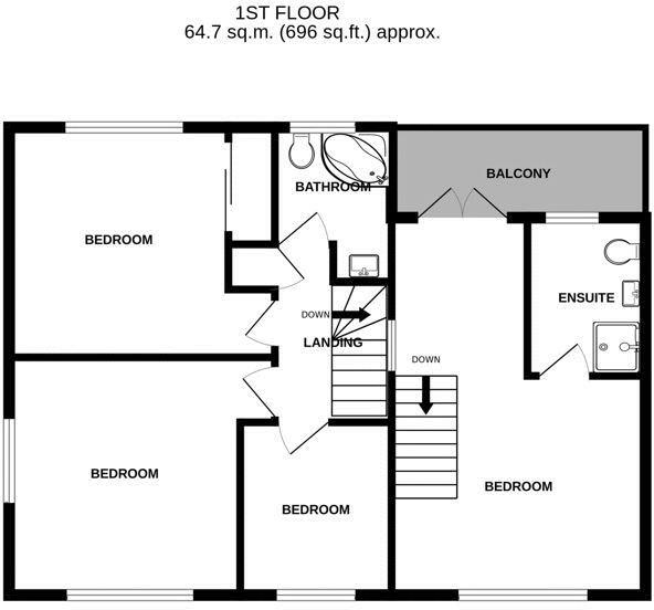
A beautiful, well maintained family home at Broadsands within close proximity to Broadsands Beach and the coastline, local shopping facilities a excellent bus service and highly regarded schools. Located between the bustling fishing Port of Brixham and sea side town of Paignton. This FOUR BEDROO...
Property Oracle says ..
This four-bedroom detached house in Broadsands, Paignton offers a desirable coastal location with proximity to beaches, shops, and transportation. The property appears well-maintained with a modernised kitchen, suggesting ongoing upkeep. The interior décor is generally clean and well-presented, although some aspects may require updating to appeal to all buyers. The photos reveal a good-sized garden with paved patio areas. The location is a significant selling point, given its proximity to amenities and coastal scenery, making it suitable for families or those seeking a seaside lifestyle. The lack of information regarding plot size, and the significant price range within the near-by comparables makes it difficult to give a definitive opinion on price, but more information is needed for a complete picture.
Therefore, we give this property 7 / 10. *Disclaimer: This is our option and does constitute a recommendation or financial advice. Do your own research. *
- Price
- 7
- Condition
- 7
- Location
- 8
- Land
- 6
- Bedrooms
- 4
- Bathrooms
- 2
- Sqft (est)
- 887.00
The heatmap indicates the level of crime in the area. The color of the heatmap indicates the crime severity and recency.
Metrics Year-on-Year
- Average area value
- 419,056.00 £Increased by 8.17 %
- Est sale value
- 361,009.00 £Increased by 18.31 %
- Average area rental value
- 1,300.00 £/moUnchanged by 0.00 %
- Est letting value
- 887.00 £/moUnchanged by 0.00 %
- Est rental Yield
- 3.72 %Decreased by 7.69 %
- Crime Rate
- 1.00 %Unchanged by 0.00 %
Agent Activity
Eric Lloyd & Co created the listing.
Nearby Schools
| Name | Type | Ofsted | Distance |
|---|---|---|---|
| Churston Ferrers Grammar School Academy | Academy Converter | 1.13 KM | |
| Galmpton Church Of England Primary School | Academy Converter | 1.17 KM | |
| White Rock Primary School | Foundation School | Good | 1.38 KM |
| Roselands Primary School | Academy Converter | Good | 2.50 KM |
| South Devon College | Further Education | Good | 2.88 KM |
Images
Nearby Streets
| Name | Average Price | Average Sqft | Distance |
|---|---|---|---|
| St. Mawes Drive | £ 327,500 | 0 | 0.00 KM |
| Orchard Close | £ 0 | 0 | 0.00 KM |
| Blackbrook Avenue | £ 0 | 0 | 0.00 KM |
| Waterside View | £ 0 | 0 | 0.00 KM |
| The Coombe | £ 325,000 | 0 | 0.00 KM |
Nearby Transport
| Name | NLC | TLC | Distance |
|---|---|---|---|
| Paignton | 3427 | PGN | 3.33 KM |
| Torquay | 3434 | TQY | 6.65 KM |
| Torre | 3432 | TRR | 7.83 KM |
Nearby Listings
| Address | Price | Type | Score | Distance |
|---|---|---|---|---|
| NORTH ROCKS ROAD BROADSANDS PAIGNTON | £ 655,000 | BUY | 7 / 10 | 0.00 KM |
| North Rocks Road, Paignton, TQ4 | £ 400,000 | BUY | 6 / 10 | 0.05 KM |
| NORTH ROCKS ROAD BROADSANDS PAIGNTON | £ 595,000 | BUY | 6 / 10 | 0.06 KM |
| North Rocks Road, Paignton, Devon, TQ4 | £ 630,000 | BUY | 7 / 10 | 0.06 KM |
| North Rocks Road, Paignton | £ 550,000 | BUY | 6 / 10 | 0.07 KM |
Nearby Properties
| Address | Price | Distance |
|---|---|---|
| 40 North Rocks Road | £ 280,000 | 0.06 KM |
| 32 North Rocks Road | £ 282,000 | 0.06 KM |
| 7 North Rocks Road | £ 370,000 | 0.06 KM |
| 20 North Rocks Road | £ 365,000 | 0.06 KM |
| 26 North Rocks Road | £ 309,950 | 0.06 KM |