Ash Road, Aldershot, Hampshire, GU12
By Bridges Estate Agents
£ 400,000
Reviews
3 out of 5 stars
Bridges Estate Agents says ..
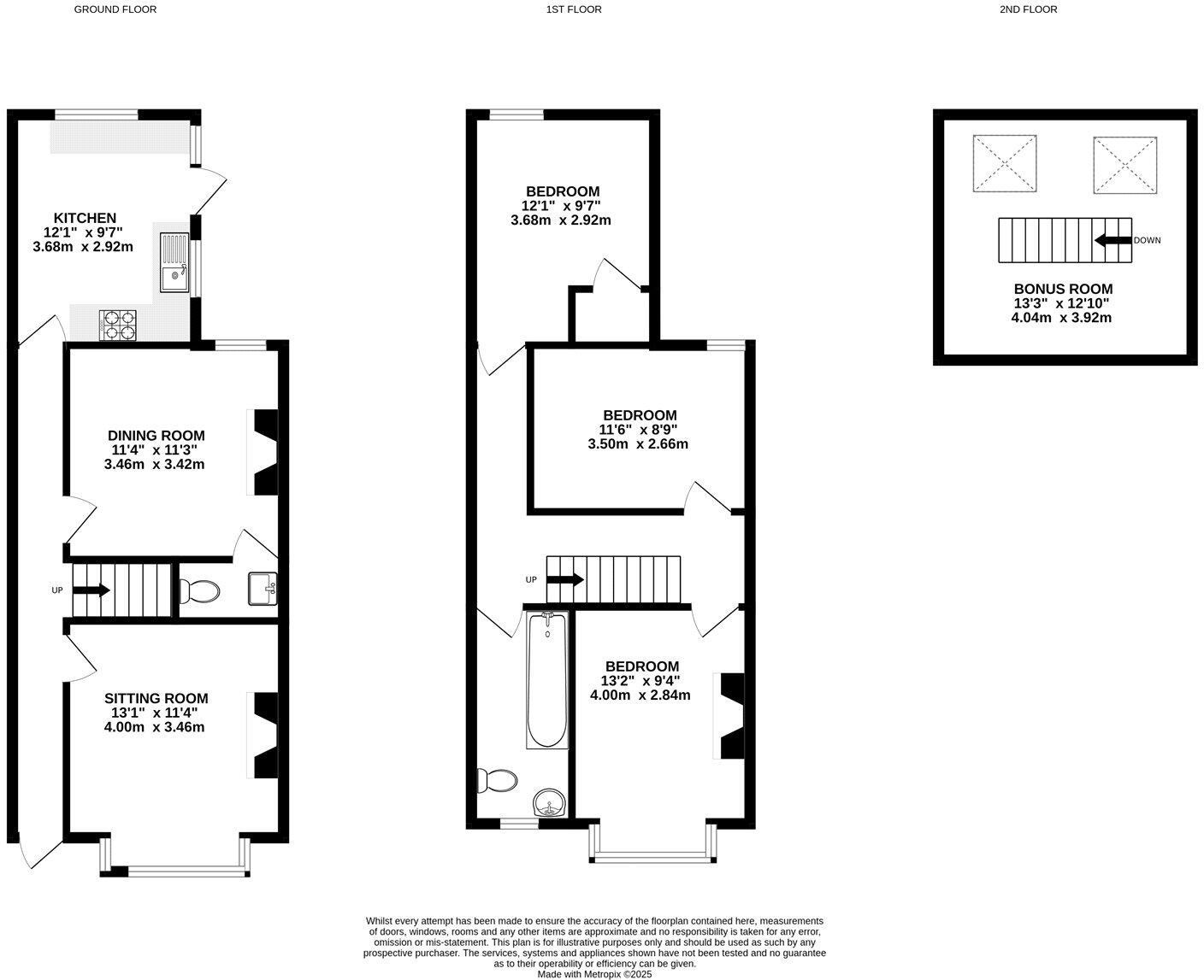
Renovated to a very high standard throughout, set over three floors and with internal accommodation being presented in exceptional order throughout, is this three bedroom home. Upon entering the property, you are greeted with an entrance hall with two separate reception rooms, one benefiting from...
Property Oracle says ..
The property is a 3 bedroom, 2 bathroom terraced house located on Ash Road in Aldershot, Hampshire. It is listed at £400,000 and has a floor area of 887.82 sqft. The property benefits from a rear garden. Based on the provided images, the property appears to have undergone recent renovation or refurbishment. The interior is presented in a modern style with new flooring, kitchen units, and bathroom suites. The overall condition of the property seems good. The property’s location in Aldershot offers proximity to Aldershot train station, providing convenient access to London Waterloo. There are also several schools within a reasonable distance, including St Michael’s Church of England Controlled Junior School, Park Primary School, and St Michael’s Church of England Controlled Infant School. Considering the average house price in the area is £374,225 and the average price per sqft is £396, the listed price of £400,000 for this property seems slightly on the higher end, but potentially justifiable given its apparent recent refurbishment and the relatively good condition shown in the photographs. However, the lack of plot size information and the limited details on comparable properties make a definitive conclusion difficult. More information on the size of the garden and specifics regarding the renovations would be beneficial in a more comprehensive valuation.
Therefore, we give this property 6 / 10. *Disclaimer: This is our option and does constitute a recommendation or financial advice. Do your own research. *
- Price
- 7
- Condition
- 8
- Location
- 7
- Land
- 4
- Bedrooms
- 3
- Bathrooms
- 2
- Sqft (est)
- 887.82
The heatmap indicates the level of crime in the area. The color of the heatmap indicates the crime severity and recency.
Metrics Year-on-Year
- Average area value
- 250,000.00 £Increased by 29.42 %
- Est sale value
- 265,458.18 £Increased by 32.89 %
- Average area rental value
- 833.00 £/moDecreased by 23.08 %
- Est letting value
- 0.00 £/moDecreased by 100.00 %
- Est rental Yield
- 4.00 %Decreased by 40.56 %
- Crime Rate
- 13.00 %Unchanged by 0.00 %
Agent Activity
Bridges Estate Agents created the listing.
Nearby Schools
| Name | Type | Ofsted | Distance |
|---|---|---|---|
| St Michael'S Church Of England Controlled Junior School | Voluntary Controlled School | Requires improvement | 0.58 KM |
| Park Primary School | Community School | Good | 0.76 KM |
| St Michael'S Church Of England Controlled Infant School | Voluntary Controlled School | Outstanding | 0.84 KM |
| Sunflowers Children'S Centre | Children's Centre Linked Site | 0.88 KM | |
| Maple Vue Children'S Centre | Children's Centre | 0.90 KM |
Images
Nearby Streets
| Name | Average Price | Average Sqft | Distance |
|---|---|---|---|
| Newport Road | £ 307,778 | 0 | 0.00 KM |
| Hop Kiln Villas | £ 0 | 0 | 0.00 KM |
| Orchard Way | £ 400,000 | 0 | 0.00 KM |
| Churchill Avenue | £ 566,667 | 0 | 0.00 KM |
| Mount Pleasant Road | £ 315,000 | 0 | 0.00 KM |
Nearby Transport
| Name | NLC | TLC | Distance |
|---|---|---|---|
| Aldershot | 5623 | AHT | 1.21 KM |
| Ash | 5641 | ASH | 4.15 KM |
| North Camp | 5636 | NCM | 4.24 KM |
| Ash Vale | 5547 | AHV | 4.54 KM |
| Farnham | 5545 | FNH | 5.83 KM |
Nearby Listings
| Address | Price | Type | Score | Distance |
|---|---|---|---|---|
| Ash Road, Aldershot, Hampshire, GU12 | £ 400,000 | BUY | 6 / 10 | 0.00 KM |
| Ash Road, Aldershot, Hampshire, GU12 | £ 350,000 | BUY | Unknown | 0.06 KM |
| Ash Road, Aldershot, Hampshire, GU12 | £ 380,000 | BUY | 6 / 10 | 0.10 KM |
| Ash Road,Aldershot,GU12 4EZ | £ 180,000 | BUY | 5 / 10 | 0.11 KM |
| Ash Road, Aldershot, Hampshire, GU12 | £ 450,000 | BUY | 7 / 10 | 0.12 KM |
Nearby Properties
| Address | Price | Distance |
|---|---|---|
| 5 Commercial Road | £ 250,000 | 0.05 KM |
| 3 Commercial Road | £ 249,950 | 0.05 KM |
| 21 Ash Road | £ 195,000 | 0.09 KM |
| 29 Ash Road | £ 326,000 | 0.09 KM |
| 47 Ash Road | £ 187,000 | 0.09 KM |