Ty Draw, Nantmawr
Town & Country Property Services logo

Ty Draw, Nantmawr

By Town & Country Property Services

£ 625,000

Reviews

3 out of 5 stars

Town & Country Property Services says ..

WITH NO ONWARD CHAIN!! Welcome to this stunning award winning barn conversion located in the charming former smallholding of Ty Draw, Nantmawr. This exquisite property offers a perfect blend of traditional charm and modern convenience. As you step inside, you are immediately greeted by characterf...

Property Oracle says ..

A well presented barn conversion in Nantmawr, Shropshire. The property is a good size with a large garden. It benefits from being close to a number of schools.

Therefore, we give this property 7 / 10. *Disclaimer: This is our option and does constitute a recommendation or financial advice. Do your own research. *

Price
7
Condition
9
Location
7
Land
8
Bedrooms
4
Bathrooms
2
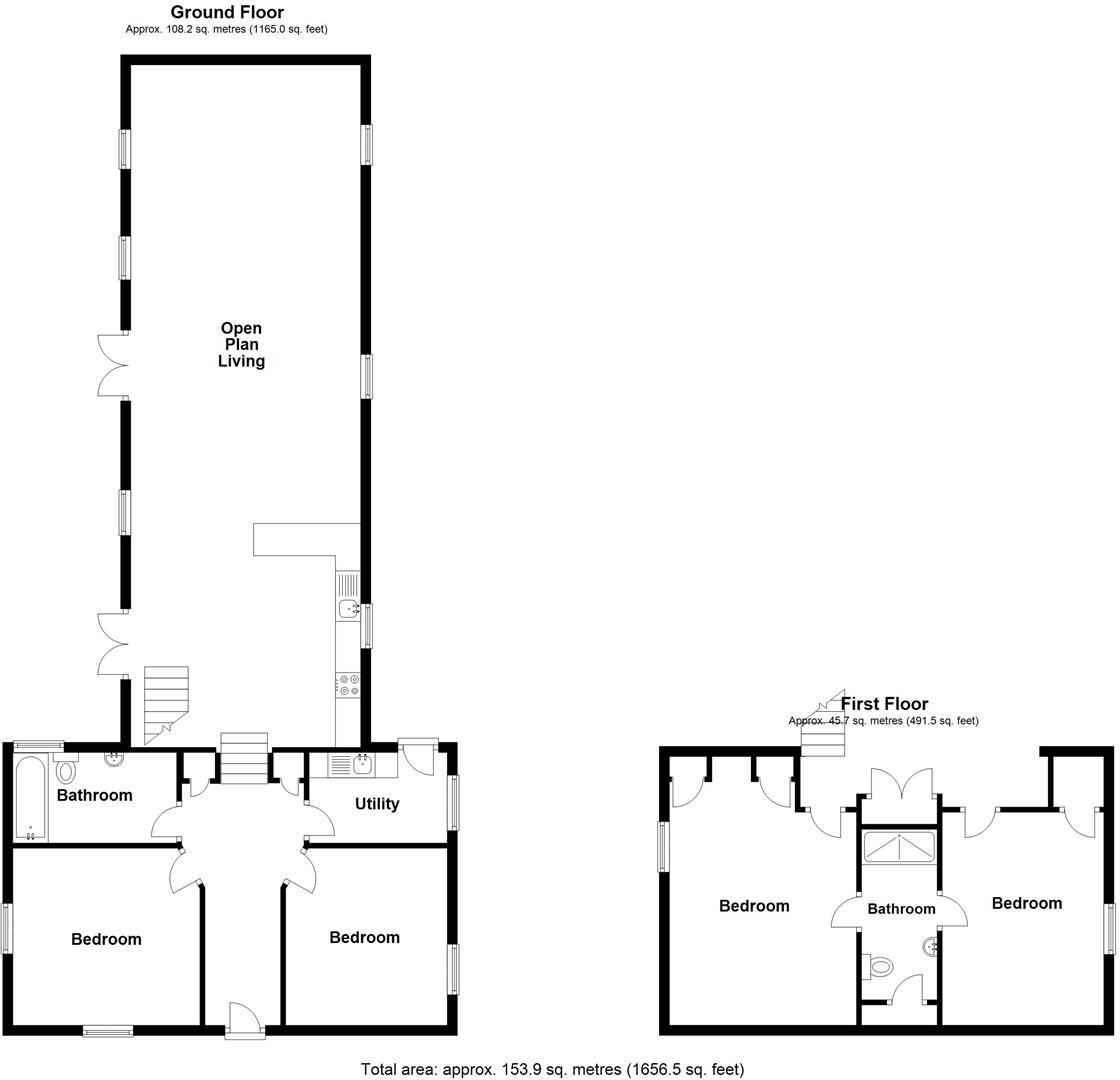
Sqft (est)
1,656.57

The heatmap indicates the level of crime in the area. The color of the heatmap indicates the crime severity and recency.

Metrics Year-on-Year

Average area value
243,278.00 £
Decreased by 3.15 %
from 251,196.00 £
Est sale value
518,506.41 £
Increased by 28.81 %
from 402,546.51 £
Average area rental value
1,186.00 £/mo
Increased by 12.42 %
from 1,055.00 £/mo
Est letting value
1,656.57 £/mo
Unchanged by 0.00 %
from 1,656.57 £/mo
Est rental Yield
5.85 %
Increased by 16.07 %
from 5.04 %
Crime Rate
0.00 %
from 0.00 %

Agent Activity

  • Town & Country Property Services created the listing.

Nearby Schools

NameTypeOfstedDistance
Llansantffraid C.I.W.A. SchoolWelsh Establishment4.70 KM
Ysgol Bro CynllaithWelsh Establishment5.14 KM
Trefonen Cofe Primary SchoolVoluntary Controlled SchoolGood5.22 KM
Carreghofa C.P. SchoolWelsh Establishment6.08 KM
Bryn Offa Cofe Primary SchoolVoluntary Controlled SchoolGood7.10 KM

Images

Kitchen Additional Photograph Landing Family Bathroom (Ground Floor) Bedroom Three (Ground Floor) Bedroom Four/Study (Ground Floor) Bedroom One Jack & Jill En-suite Bathroom Bedroom Two To The Front of the Property Rear Garden Additional Photograph Garage/Workshop The Fire Pit Additional Photograph The Large Patio Area Driveway & Parking The Rear Garden DSC_0003.jpg Hallway Driveway & Parking Kitchen Rear Garden Open Plan Kitchen/Dining/Lounge Area Dining Room Lounge Lounge Additional Photograph

Nearby Listings

AddressPriceTypeScoreDistance
Ty Draw, Nantmawr £ 625,000BUY7 / 100.00 KM
Nantmawr £ 495,000BUY4 / 100.10 KM
Glanyrafon Farm, Llanyblodwel, Oswestry, SY10 £ 725,000BUY7 / 101.25 KM
Nantmawr, Oswestry £ 350,000BUY5 / 101.45 KM