Skipton Road, Colne
KE

Skipton Road, Colne

By Keenans Estate Agents

£ 159,950

Reviews

2 out of 5 stars

Keenans Estate Agents says ..

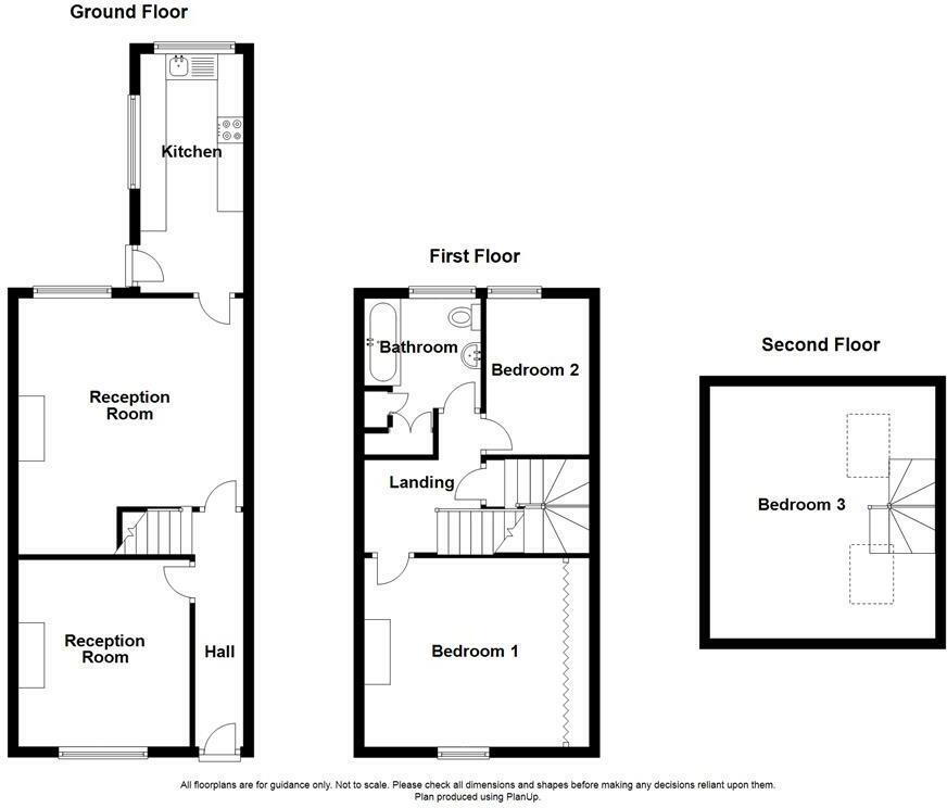
A LOVELY THREE-BED TERRACED HOME Welcome to Skipton Road, Colne - a charming location perfect for those looking to start a family. This lovely mid-terrace house boasts two reception rooms, three bedrooms, and a beautifully converted loft room that offers versatility and extra space. The ...

Property Oracle says ..

This three-bedroom terraced house in Colne, Lancashire, presents a modest family home in a convenient location. The property offers three bedrooms, including a converted loft room, a family bathroom and a compact kitchen and living area. While the property appears habitable and generally well-maintained, the décor presents a slightly dated feel, suggesting potential for modernisation to enhance its appeal. The modest paved rear yard adds a degree of outdoor space. The surrounding neighbourhood presents access to good schools and the Colne train station, enhancing its accessibility. However, it’s worth noting that the available information is limited with respect to square footage. More information would allow for a more informed comparative analysis of its price relative to the local market.

Therefore, we give this property 5 / 10. *Disclaimer: This is our option and does constitute a recommendation or financial advice. Do your own research. *

Price
7
Condition
6
Location
7
Land
3
Bedrooms
3
Bathrooms
1
Sqft (est)
870.00

The heatmap indicates the level of crime in the area. The color of the heatmap indicates the crime severity and recency.

Metrics Year-on-Year

Average area value
262,475.00 £
Increased by 52.59 %
from 172,016.00 £
Est sale value
253,170.00 £
Increased by 95.30 %
from 129,630.00 £
Average area rental value
950.00 £/mo
Increased by 33.05 %
from 714.00 £/mo
Est letting value
870.00 £/mo
from 0.00 £/mo
Est rental Yield
4.34 %
Decreased by 12.85 %
from 4.98 %
Crime Rate
11.00 %
Unchanged by 0.00 %
from 11.00 %

Agent Activity

  • Keenans Estate Agents created the listing.

Nearby Schools

NameTypeOfstedDistance
Park Primary SchoolCommunity SchoolGood0.75 KM
Newtown Nursery SchoolLocal Authority Nursery SchoolGood0.78 KM
West Street Community Primary SchoolCommunity SchoolGood0.86 KM
Sacred Heart Roman Catholic Primary School, ColneVoluntary Aided SchoolGood0.89 KM
Colne Park High SchoolAcademy Converter0.94 KM

Images

DSC09228.jpeg DSC09231.jpeg DSC09223.jpeg DSC09225.jpeg DSC09221.jpeg DSC09222.jpeg DSC09241.jpeg DSC09218.jpeg DSC09229.jpeg DSC09227.jpeg DSC09237.jpeg DSC09233.jpeg DSC09219.jpeg DSC09224.jpeg DSC09232.jpeg KMT08077.jpg KMT08078.jpg KMT08079.jpg KMT08080.jpg KMT08081.jpg KMT08082.jpg KMT08083.jpg KMT08084.jpg

Nearby Streets

NameAverage PriceAverage SqftDistance
Regent Avenue £ 000.00 KM
Bath Street £ 70,00000.00 KM
The Croft £ 140,00000.00 KM
Lynwood Close £ 539,00000.00 KM
Lilac Street £ 000.00 KM

Nearby Transport

NameNLCTLCDistance
Colne2562CNE2.17 KM
Nelson2565NEL6.32 KM
Brierfield2554BRF9.11 KM

Nearby Listings

AddressPriceTypeScoreDistance
Skipton Road, Colne £ 159,950BUY5 / 100.00 KM
Skipton Road, Colne, BB8 £ 167,500BUY4 / 100.02 KM
Castle Close, Colne £ 259,950BUY6 / 100.14 KM
Skipton Road, Colne, Lancashire, BB8 £ 79,000BUYUnknown0.16 KM
Skipton Road, Colne £ 200,000BUYUnknown0.18 KM

Nearby Properties

AddressPriceDistance
153 Skipton Road £ 103,5000.02 KM
187 Skipton Road £ 150,0000.02 KM
171 Skipton Road £ 75,0000.02 KM
175 Skipton Road £ 117,0000.02 KM
139 Skipton Road £ 101,0000.02 KM