FO
Kings Gardens, South Hampstead, London, NW6
By Foxtons
£ 650,000
Reviews
3 out of 5 stars
Foxtons says ..
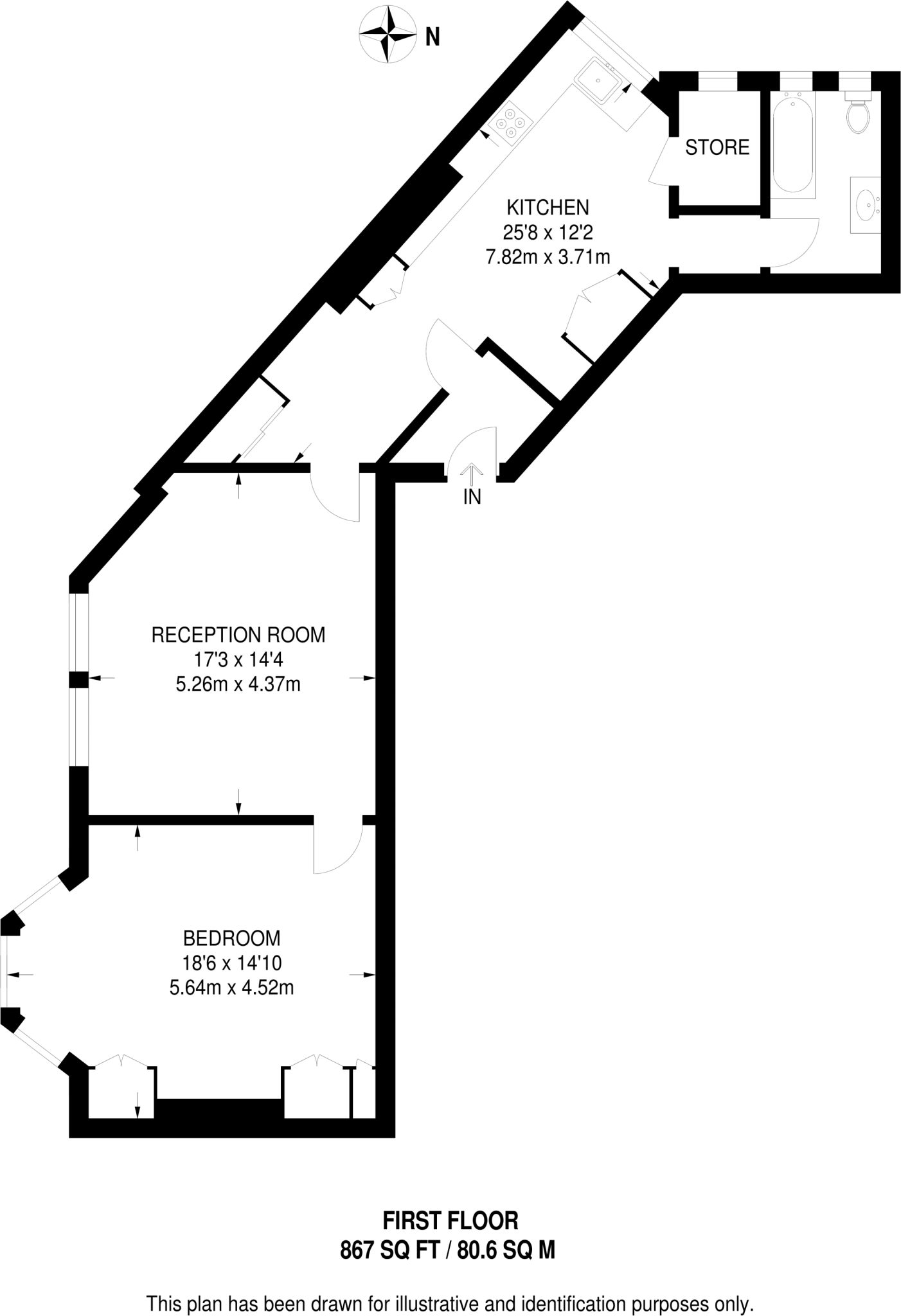
Located in a sought-after mansion block, this luxurious 1 bedroom first floor flat boasts a refurbished kitchen and bathroom with large room sizes throughout and original wood floors.
Property Oracle says ..
Therefore, we give this property 7 / 10. *Disclaimer: This is our option and does constitute a recommendation or financial advice. Do your own research. *
- Price
- 7
- Condition
- 8
- Location
- 9
- Land
- 6
- Bedrooms
- 1
- Bathrooms
- 1
The heatmap indicates the level of crime in the area. The color of the heatmap indicates the crime severity and recency.
Metrics Year-on-Year
- Average area value
- 598,568.00 £Decreased by 21.57 %
- Average area rental value
- 2,229.00 £/moIncreased by 6.80 %
- Est rental Yield
- 4.47 %Increased by 36.28 %
- Crime Rate
- 3.00 %Unchanged by 0.00 %
from 763,225.00 £
from 2,087.00 £/mo
from 3.28 %
from 3.00 %
Agent Activity
Foxtons created the listing.
Nearby Schools
| Name | Type | Ofsted | Distance |
|---|---|---|---|
| St Eugene De Mazenod Roman Catholic Primary School | Voluntary Aided School | Outstanding | 0.06 KM |
| St Mary'S Kilburn Church Of England Primary School | Voluntary Aided School | Good | 0.12 KM |
| Kilburn Grange School | Free Schools | Good | 0.41 KM |
| Kingsgate Primary School | Community School | Outstanding | 0.42 KM |
| Kilburn Grange Childrens Centre | Children's Centre | 0.62 KM |
Images
Nearby Streets
| Name | Average Price | Average Sqft | Distance |
|---|---|---|---|
| Kilburn High Road | £ 495,000 | 0 | 0.00 KM |
| Coral Mews | £ 0 | 0 | 0.00 KM |
| St Mary's Mews | £ 0 | 0 | 0.00 KM |
| Springfield Walk | £ 0 | 0 | 0.00 KM |
| Grangeway | £ 0 | 0 | 0.00 KM |
Nearby Transport
| Name | NLC | TLC | Distance |
|---|---|---|---|
| Kilburn High Road | 1415 | KBN | 0.49 KM |
| West Hampstead | 1421 | WHD | 0.71 KM |
| West Hampstead Thameslink | 1525 | WHP | 0.80 KM |
| Brondesbury | 1437 | BSY | 1.06 KM |
| Finchley Road And Frognal | 1445 | FNY | 1.51 KM |
Nearby Listings
| Address | Price | Type | Score | Distance |
|---|---|---|---|---|
| Kings Gardens, South Hampstead, London, NW6 | £ 650,000 | BUY | 7 / 10 | 0.00 KM |
| Kings Gardens, West Hampstead, London, NW6 | £ 1,999,999 | BUY | 6 / 10 | 0.00 KM |
| Kings Gardens, West Hampstead, London, NW6 | £ 700,000 | BUY | 6 / 10 | 0.00 KM |
| West End Lane, West Hampstead, NW6 | £ 700,000 | BUY | 6 / 10 | 0.03 KM |
| Kings Gardens, West Hampstead | £ 700,000 | BUY | 5 / 10 | 0.03 KM |
Nearby Properties
| Address | Price | Distance |
|---|---|---|
| 17b Kings Gardens | £ 87,000 | 0.03 KM |
| 6b Kings Gardens | £ 640,000 | 0.03 KM |
| 19 Kings Gardens | £ 1,297,000 | 0.03 KM |
| 18b Kings Gardens | £ 510,500 | 0.03 KM |
| 37a Kings Gardens | £ 760,000 | 0.03 KM |