Land At Rear Of Manor Road, Manor Lane
By Harper & Woods
£ 90,000
Reviews
3 out of 5 stars
Harper & Woods says ..
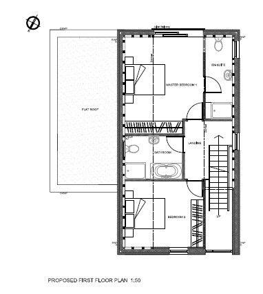
A fantastic opportunity! Currently this plot of land has had planning permission granted for a two bedroom detached home but (subject to approval), the plans could easily include a further bedroom if required. The plans includes a well planned ground floor with utility/WC, and open plan kitche...
Property Oracle says ..
This is a plot of land with planning permission for a new build. The location is good, close to schools and amenities. The condition is new, and the land has a garden. The price is reasonable for the area.
Therefore, we give this property 7 / 10. *Disclaimer: This is our option and does constitute a recommendation or financial advice. Do your own research. *
- Price
- 8
- Condition
- 8
- Location
- 7
- Land
- 7
- Bedrooms
- 2
- Bathrooms
- 1
- Sqft (est)
- 1,400.00
The heatmap indicates the level of crime in the area. The color of the heatmap indicates the crime severity and recency.
Metrics Year-on-Year
- Average area value
- 158,667.00 £Decreased by 12.47 %
- Est sale value
- 299,600.00 £Increased by 35.44 %
- Average area rental value
- 606.00 £/moDecreased by 22.70 %
- Est letting value
- 0.00 £/mo
- Est rental Yield
- 4.58 %Decreased by 11.75 %
- Crime Rate
- 5.00 %Unchanged by 0.00 %
Agent Activity
Harper & Woods created the listing.
Nearby Schools
| Name | Type | Ofsted | Distance |
|---|---|---|---|
| Liscard Primary School | Community School | Outstanding | 0.09 KM |
| Liscard Children'S Centre | Children's Centre Linked Site | 0.18 KM | |
| Egremont Primary School | Academy Converter | 1.06 KM | |
| St Alban'S Catholic Primary School | Voluntary Aided School | Good | 1.14 KM |
| New Brighton Primary School | Community School | Good | 1.22 KM |
Images
Nearby Streets
| Name | Average Price | Average Sqft | Distance |
|---|---|---|---|
| Brook Close | £ 179,995 | 0 | 0.00 KM |
| Warwick Drive | £ 265,500 | 0 | 0.00 KM |
| The Grange | £ 0 | 0 | 0.00 KM |
| Webster Avenue | £ 215,000 | 0 | 0.00 KM |
| Marsden Close | £ 130,000 | 0 | 0.00 KM |
Nearby Transport
| Name | NLC | TLC | Distance |
|---|---|---|---|
| New Brighton | 2152 | NBN | 2.00 KM |
| Birkenhead Park | 2220 | BKP | 2.91 KM |
| Birkenhead North | 2145 | BKN | 3.13 KM |
| Wallasey Village | 2265 | WLV | 3.60 KM |
| Conway Park | 3624 | CNP | 3.68 KM |
Nearby Listings
| Address | Price | Type | Score | Distance |
|---|---|---|---|---|
| Land At Rear Of Manor Road, Manor Lane | £ 90,000 | BUY | 7 / 10 | 0.00 KM |
| Manor Lane, Wallasey | £ 200,000 | BUY | 6 / 10 | 0.00 KM |
| Manor Lane, Wallasey, Wirral | £ 210,000 | BUY | Unknown | 0.03 KM |
| Manor Road, Wallasey, Wirral | £ 325,000 | BUY | 7 / 10 | 0.04 KM |
| Manor Road, Wallasey, Wirral | £ 175,000 | BUY | 7 / 10 | 0.11 KM |
Nearby Properties
| Address | Price | Distance |
|---|---|---|
| 16 Manor Lane | £ 124,999 | 0.01 KM |
| 1 Manor Lane | £ 162,000 | 0.01 KM |
| 10 Manor Lane | £ 119,950 | 0.01 KM |
| 6 Manor Lane | £ 49,950 | 0.02 KM |
| 8 Manor Lane | £ 130,000 | 0.02 KM |