Purplebricks says ..
Nestled in a secluded, peaceful position, moments from the River Lim and the scenic walk to Lyme Regis, this charming top-floor apartment offers a unique blend of historical grandeur and modern comfort. Dating back to the mid-19th century, built by the owner of the adjacent Waterside Blanket Mill...
Property Oracle says ..
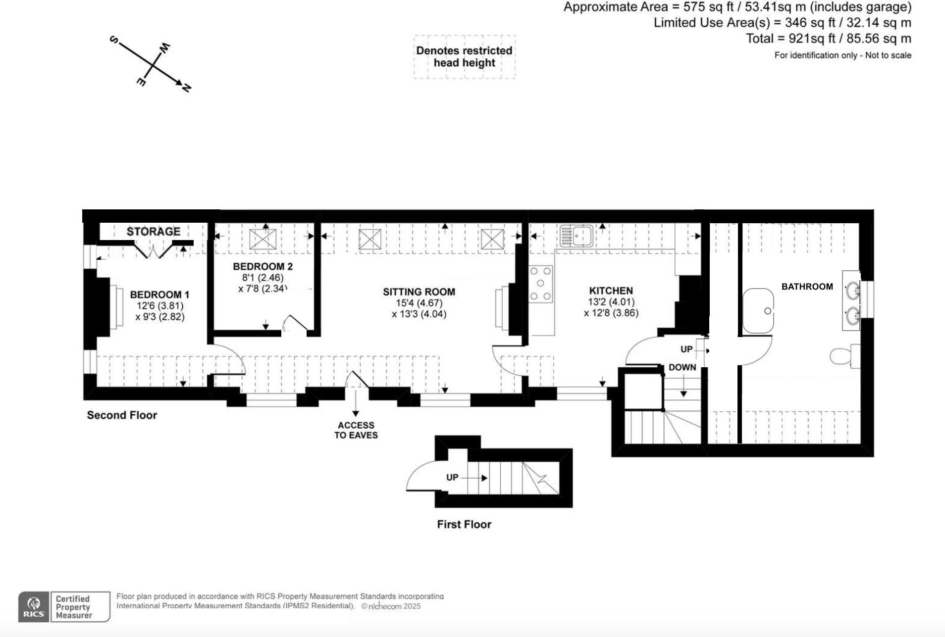
This property is a 2 bedroom apartment located in Lyme Regis, a popular coastal town in Dorset. The apartment is situated on Mill Lane, which offers a tranquil setting with a private road and access to a river path. While the provided images showcase a recently renovated interior with a modern kitchen and bathroom, the exterior appears to be a traditional property that may benefit from some external maintenance. The property boasts a good-sized plot of 921 sqft. The list price of £250,000 is significantly lower than the average house price in the area (£458,408), and the price per sqft is also below average. However, it is important to note that the average price and sqft data may not accurately reflect the value of apartments specifically. The proximity to good schools such as The Woodroffe School (Outstanding Ofsted rating) and Mrs Ethelston’s Cofe Primary Academy (Good Ofsted rating) adds to the property’s appeal. The nearby transportation links to Axminster via South Western Railway also enhance convenience.
Therefore, we give this property 8 / 10. *Disclaimer: This is our option and does constitute a recommendation or financial advice. Do your own research. *
- Price
- 9
- Condition
- 8
- Location
- 9
- Land
- 7
- Bedrooms
- 2
- Bathrooms
- 1
- Sqft (est)
- 597.31
- Lot (est)
- 921.00
The heatmap indicates the level of crime in the area. The color of the heatmap indicates the crime severity and recency.
Metrics Year-on-Year
- Average area value
- 446,826.00 £Increased by 0.22 %
- Est sale value
- 248,480.96 £Increased by 9.19 %
- Average area rental value
- 1,514.00 £/moDecreased by 8.57 %
- Est letting value
- 597.31 £/moUnchanged by 0.00 %
- Est rental Yield
- 4.07 %Decreased by 8.74 %
- Crime Rate
- 3.00 %Unchanged by 0.00 %
Agent Activity
Purplebricks created the listing.
Nearby Schools
| Name | Type | Ofsted | Distance |
|---|---|---|---|
| The Woodroffe School | Foundation School | Outstanding | 0.71 KM |
| Mrs Ethelston'S Cofe Primary Academy | Academy Converter | Good | 0.77 KM |
| St Michael'S Church Of England Voluntary Aided Primary School, Lyme Regis | Voluntary Aided School | Requires improvement | 2.18 KM |
| Beaminster And Lyme Regis Sure Start Children'S Centre | Children's Centre | 2.18 KM | |
| Charmouth Primary School | Community School | Requires improvement | 5.55 KM |
Images
Nearby Streets
| Name | Average Price | Average Sqft | Distance |
|---|---|---|---|
| Mill Lane | £ 0 | 0 | 0.00 KM |
| Ethelston's Close | £ 0 | 0 | 0.00 KM |
| Pound Lane | £ 850,000 | 0 | 0.00 KM |
| Springhill | £ 0 | 0 | 0.00 KM |
| Manor Avenue | £ 0 | 0 | 0.00 KM |
Nearby Transport
| Name | NLC | TLC | Distance |
|---|---|---|---|
| Axminster | 5714 | AXM | 7.58 KM |
Nearby Listings
| Address | Price | Type | Score | Distance |
|---|---|---|---|---|
| Mill Lane, Lyme Regis, DT7 | £ 250,000 | BUY | 8 / 10 | 0.00 KM |
| Stafford Mount, Uplyme, Lyme Regis | £ 325,000 | BUY | 6 / 10 | 0.22 KM |
| Lyme Road, Uplyme, Devon, DT7 | £ 695,000 | BUY | 7 / 10 | 0.24 KM |
| Lyme Road, Uplyme, Lyme Regis | £ 295,000 | BUY | 6 / 10 | 0.25 KM |
| Crogg Lane, Uplyme, Lyme Regis | £ 495,000 | BUY | Unknown | 0.27 KM |
Nearby Properties
| Address | Price | Distance |
|---|---|---|
| Waterside | £ 1,050,000 | 0.01 KM |
| Lindens | £ 490,000 | 0.01 KM |
| Weavers Cottage | £ 225,000 | 0.01 KM |
| Brook Cottage | £ 595,000 | 0.01 KM |
| Westernhay | £ 600,000 | 0.01 KM |