Fairlawns, Shoreham-By-Sea, West Sussex, BN43 6BW
By Oakley Property
£ 190,000
Reviews
3 out of 5 stars
Oakley Property says ..
This inviting one-bedroom ground floor retirement apartment in Fairlawns, Shoreham-By-Sea, offers comfortable living for over 55s with communal gardens and parking.
Property Oracle says ..
This is a one-bedroom apartment in Shoreham-by-Sea, West Sussex. The property is listed for £190,000. It is located in a convenient area, close to schools and transportation. The condition is fair, with some areas needing updating. There is communal garden space. Overall, it presents a good opportunity for first-time buyers or investors.
Therefore, we give this property 6 / 10. *Disclaimer: This is our option and does constitute a recommendation or financial advice. Do your own research. *
- Price
- 8
- Condition
- 6
- Location
- 7
- Land
- 5
- Bedrooms
- 1
- Bathrooms
- 1
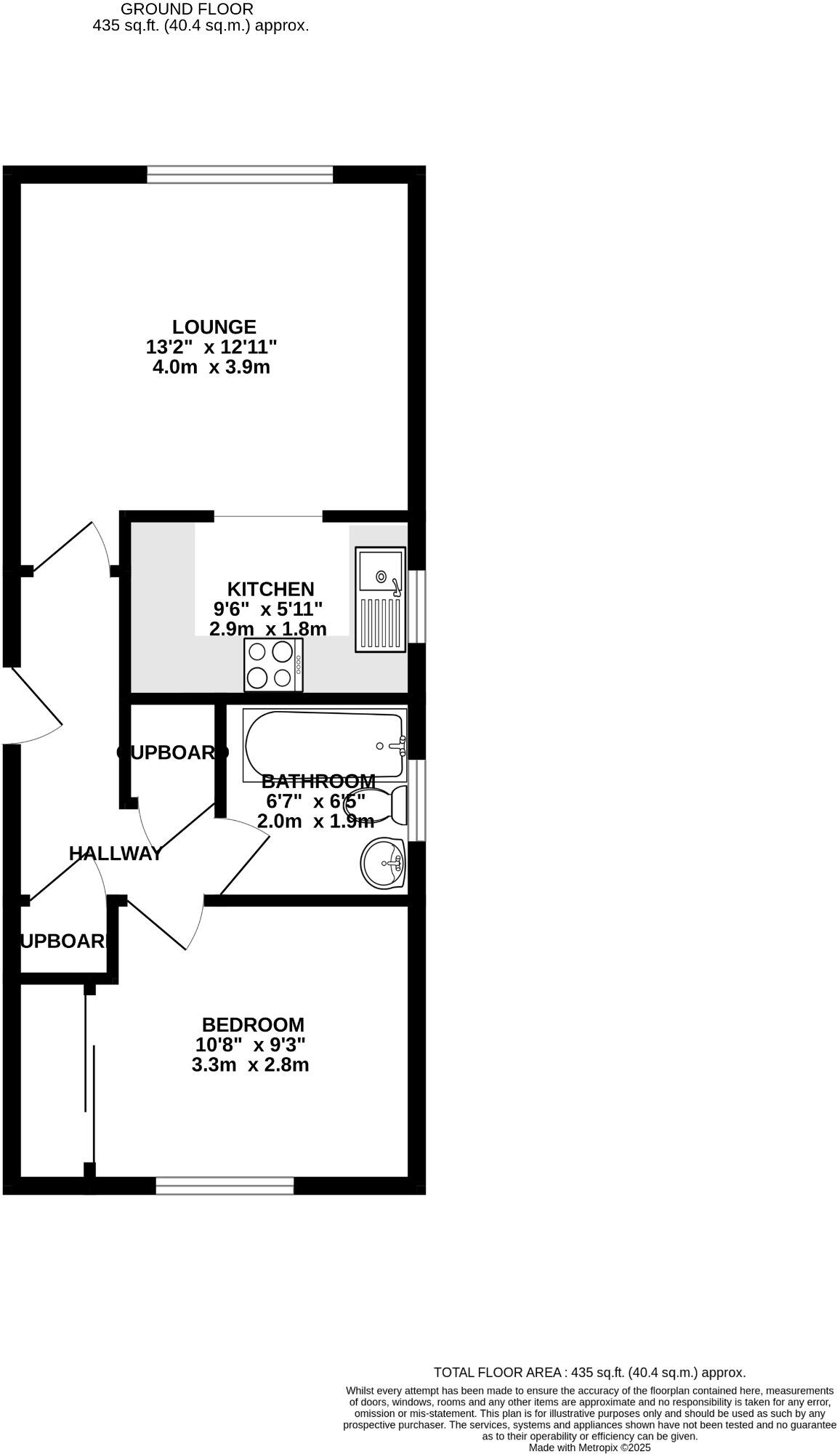
- Sqft (est)
- 435.00
The heatmap indicates the level of crime in the area. The color of the heatmap indicates the crime severity and recency.
Metrics Year-on-Year
- Average area value
- 524,714.00 £Increased by 15.54 %
- Est sale value
- 268,395.00 £Increased by 48.67 %
- Average area rental value
- 1,989.00 £/moIncreased by 4.74 %
- Est letting value
- 870.00 £/moIncreased by 100.00 %
- Est rental Yield
- 4.55 %Decreased by 9.36 %
- Crime Rate
- 0.00 %
Agent Activity
Oakley Property created the listing.
Nearby Schools
| Name | Type | Ofsted | Distance |
|---|---|---|---|
| Buckingham Park Primary School | Community School | Good | 0.38 KM |
| St Peter'S Catholic Primary School, Shoreham-By-Sea | Voluntary Aided School | Good | 0.46 KM |
| Kingston Buci Children & Family Centre | Children's Centre | 0.76 KM | |
| Shoreham Beach Primary School | Community School | Good | 1.12 KM |
| Swiss Gardens Primary School | Community School | Good | 1.38 KM |
Images
Nearby Streets
| Name | Average Price | Average Sqft | Distance |
|---|---|---|---|
| Parkside | £ 841,667 | 0 | 0.00 KM |
| Western Road | £ 287,500 | 0 | 0.00 KM |
| St Mary's Road | £ 349,975 | 0 | 0.00 KM |
| John Street | £ 449,982 | 0 | 0.00 KM |
| High Street | £ 289,975 | 0 | 0.00 KM |
Nearby Transport
| Name | NLC | TLC | Distance |
|---|---|---|---|
| Shoreham-By-Sea | 5277 | SSE | 0.73 KM |
| Southwick | 5286 | SWK | 3.53 KM |
| Fishersgate | 5284 | FSG | 5.31 KM |
| Lancing | 5275 | LAC | 6.33 KM |
| Portslade | 5276 | PLD | 6.85 KM |
Nearby Listings
| Address | Price | Type | Score | Distance |
|---|---|---|---|---|
| Fairlawns, Shoreham-By-Sea, West Sussex, BN43 6BW | £ 190,000 | BUY | 6 / 10 | 0.00 KM |
| Fairlawns, Shoreham-By-Sea, West Sussex, BN43 6BW | £ 250,000 | BUY | 7 / 10 | 0.00 KM |
| Upper Shoreham Road, Shoreham by Sea | £ 800,000 | BUY | 7 / 10 | 0.20 KM |
| The Kestrels, Shoreham-by-Sea | £ 350,000 | BUY | 7 / 10 | 0.21 KM |
| The Herons, Shoreham-By-Sea | £ 499,950 | BUY | 7 / 10 | 0.23 KM |
Nearby Properties
| Address | Price | Distance |
|---|---|---|
| 8 Buckingham Close | £ 375,000 | 0.04 KM |
| 2 Buckingham Close | £ 417,500 | 0.04 KM |
| 7 Buckingham Close | £ 230,000 | 0.04 KM |
| 5 Buckingham Close | £ 385,000 | 0.04 KM |
| 11 Buckingham Close | £ 268,000 | 0.04 KM |