Noble Estates says ..
A boutique mews development comprising a one-bedroom and seven two-bedroom freehold houses.
Property Oracle says ..
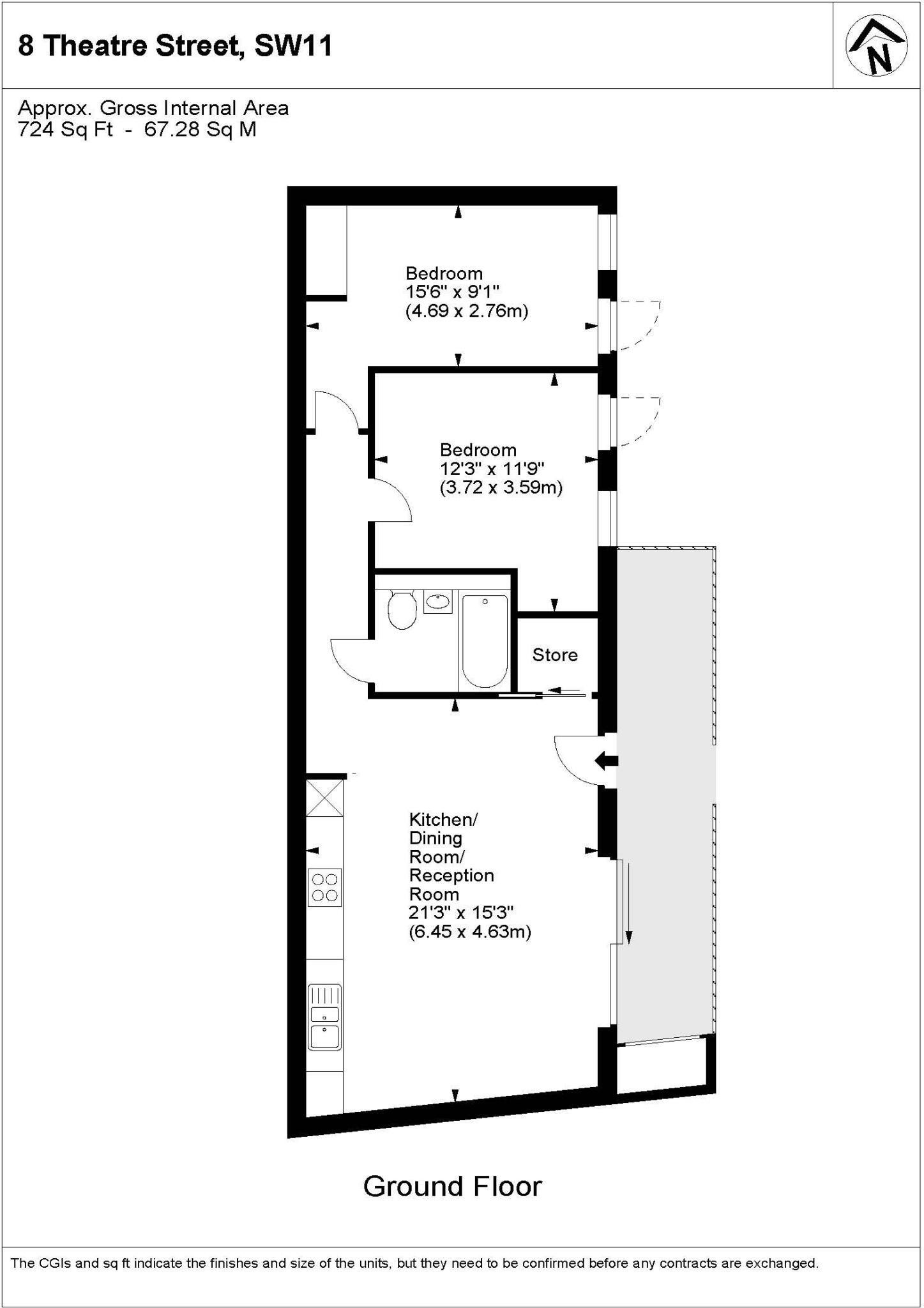
This is a two-bedroom terraced property in Battersea, London. The property is in good condition and has been recently renovated. The property is located in a desirable area, with good access to local amenities and transport links. The property has a small garden. The listing price is £745,000.
Therefore, we give this property 6 / 10. *Disclaimer: This is our option and does constitute a recommendation or financial advice. Do your own research. *
- Price
- 6
- Condition
- 8
- Location
- 7
- Land
- 3
- Bedrooms
- 2
- Bathrooms
- 1
- Sqft (est)
- 15,995,171.90
The heatmap indicates the level of crime in the area. The color of the heatmap indicates the crime severity and recency.
Metrics Year-on-Year
- Average area value
- 592,760.00 £Decreased by 27.61 %
- Est sale value
- 11,164,629,986.20 £Decreased by 16.90 %
- Average area rental value
- 2,532.00 £/moDecreased by 6.77 %
- Est letting value
- 31,990,343.80 £/moUnchanged by 0.00 %
- Est rental Yield
- 5.13 %Increased by 28.89 %
- Crime Rate
- 9.00 %Unchanged by 0.00 %
from 818,790.00 £
from 13,435,944,396.00 £
from 2,716.00 £/mo
from 31,990,343.80 £/mo
from 3.98 %
from 9.00 %
Agent Activity
Noble Estates created the listing.
Nearby Schools
| Name | Type | Ofsted | Distance |
|---|---|---|---|
| Shaftesbury Park Primary School | Community School | Good | 0.60 KM |
| Christ Church Cofe Primary School | Voluntary Aided School | Good | 0.67 KM |
| Sacred Heart Catholic Primary School, Battersea | Voluntary Aided School | Good | 0.76 KM |
| Harris Academy Battersea | Academy Sponsor Led | Outstanding | 0.91 KM |
| Parkgate House School | Other Independent School | Good | 0.91 KM |
Images
Nearby Streets
| Name | Average Price | Average Sqft | Distance |
|---|---|---|---|
| Lavender Gardens | £ 525,000 | 0 | 0.00 KM |
| Eland Road | £ 1,779,000 | 0 | 0.00 KM |
| Falcon Lane | £ 389,000 | 0 | 0.00 KM |
| Grayshott Road | £ 0 | 0 | 0.00 KM |
| Grayshott Road | £ 0 | 0 | 0.00 KM |
Nearby Transport
| Name | NLC | TLC | Distance |
|---|---|---|---|
| Clapham Junction | 5595 | CLJ | 0.98 KM |
| Queenstown Road (Battersea) | 5596 | QRB | 1.96 KM |
| Battersea Park | 5420 | BAK | 2.01 KM |
| Wandsworth Common | 5395 | WSW | 2.14 KM |
| Imperial Wharf | 9586 | IMW | 2.59 KM |
Nearby Listings
| Address | Price | Type | Score | Distance |
|---|---|---|---|---|
| THEATRE STREET, SW11 | £ 795,000 | BUY | 6 / 10 | 0.00 KM |
| THEATRE STREET, SW11 | £ 765,000 | BUY | 6 / 10 | 0.00 KM |
| THEATRE STREET, SW11 | £ 630,000 | BUY | 6 / 10 | 0.00 KM |
| THEATRE STREET, SW11 | £ 745,000 | BUY | 6 / 10 | 0.00 KM |
| Latchmere Road, SW11 | £ 650,000 | BUY | 7 / 10 | 0.03 KM |
Nearby Properties
| Address | Price | Distance |
|---|---|---|
| 35 Theatre Street | £ 245,000 | 0.00 KM |
| 41 Theatre Street | £ 118,000 | 0.00 KM |
| 33 Theatre Street | £ 520,000 | 0.00 KM |
| 39 Theatre Street | £ 182,000 | 0.00 KM |
| 199a Latchmere Road | £ 610,000 | 0.04 KM |