Queens Road, Reading, Berkshire, RG1
By Parkers Estate Agents
£ 368,000
Reviews
2 out of 5 stars
Parkers Estate Agents says ..
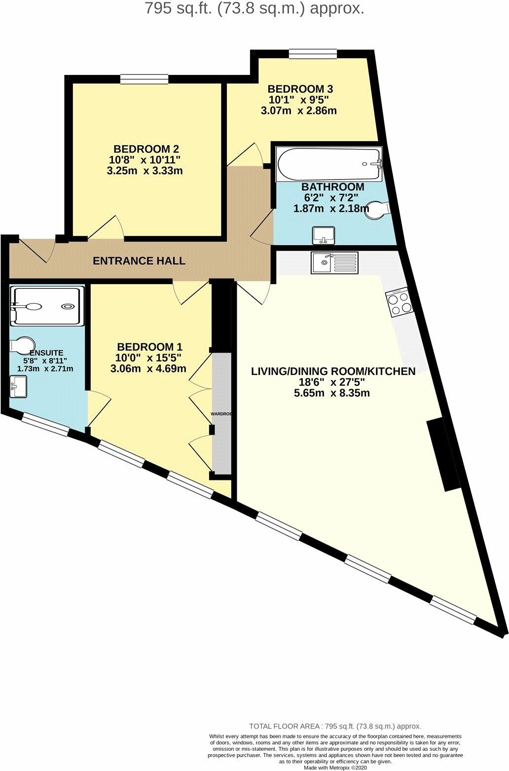
Offered to the market with no onward chain and located within a short walk from Reading town centre and mainline railway station, this three bedroom apartment is ideal for first time buyers and investment buyers alike.
Property Oracle says ..
This three-bedroom apartment located on Queens Road in Reading offers a convenient and well-connected lifestyle. Its proximity to Reading town centre and the mainline railway station is a key advantage for commuters. The property appears to be well maintained and offers a modern interior, with updated kitchen and bathroom facilities. The images reveal a clean and contemporary style throughout the unit. The location is also convenient for families, with several schools located within walking distance, including the Katesgrove Primary School, which is rated ‘Good’ by Ofsted. The apartment’s lack of outdoor space is a consideration for buyers who prioritise gardens or private land. The price of £368,000 appears competitive within the Reading market, particularly given its central location and proximity to amenities, although a deeper market analysis is recommended for precise evaluation of the property’s value.
Therefore, we give this property 5 / 10. *Disclaimer: This is our option and does constitute a recommendation or financial advice. Do your own research. *
- Price
- 7
- Condition
- 7
- Location
- 8
- Land
- 1
- Bedrooms
- 3
- Bathrooms
- 2
- Sqft (est)
- 794.38
The heatmap indicates the level of crime in the area. The color of the heatmap indicates the crime severity and recency.
Metrics Year-on-Year
- Average area value
- 327,000.00 £Increased by 3.23 %
- Est sale value
- 420,227.02 £Increased by 39.21 %
- Average area rental value
- 1,287.00 £/moDecreased by 3.31 %
- Est letting value
- 1,588.76 £/moIncreased by 100.00 %
- Est rental Yield
- 4.72 %Decreased by 6.35 %
- Crime Rate
- 6.00 %Unchanged by 0.00 %
Agent Activity
Parkers Estate Agents created the listing.
Nearby Schools
| Name | Type | Ofsted | Distance |
|---|---|---|---|
| The Deenway Montessori School | Other Independent School | Good | 0.20 KM |
| Kendrick School | Academy Converter | 0.24 KM | |
| The Abbey School Reading | Other Independent School | 0.60 KM | |
| Red Balloon Learner Centre Reading | Other Independent School | 0.86 KM | |
| Katesgrove Primary School | Community School | Good | 0.87 KM |
Images
Nearby Streets
| Name | Average Price | Average Sqft | Distance |
|---|---|---|---|
| Queens Road | £ 368,000 | 0 | 0.00 KM |
| Queen's Road | £ 259,950 | 0 | 0.00 KM |
| Oscar Wilde Memorial Walk | £ 0 | 0 | 0.00 KM |
| Duke Street | £ 310,000 | 0 | 0.00 KM |
| London Road | £ 0 | 0 | 0.00 KM |
Nearby Transport
| Name | NLC | TLC | Distance |
|---|---|---|---|
| Reading | 3149 | RDG | 0.95 KM |
| Reading West | 3160 | RDW | 2.75 KM |
| Earley | 5694 | EAR | 5.41 KM |
| Tilehurst | 3154 | TLH | 7.41 KM |
| Winnersh Triangle | 5698 | WTI | 8.39 KM |
Nearby Listings
| Address | Price | Type | Score | Distance |
|---|---|---|---|---|
| Oswald House, 24-26 Queen's Road, Reading, Berkshire, RG1 | £ 170,000 | BUY | Unknown | 0.00 KM |
| Queens Road, Reading, Berkshire, RG1 | £ 368,000 | BUY | 5 / 10 | 0.00 KM |
| Queens Road, Reading, Berkshire, RG1 | £ 340,000 | BUY | 5 / 10 | 0.00 KM |
| Queens Road, Caversham, Reading | £ 415,000 | BUY | 6 / 10 | 0.01 KM |
| Queens Road, Reading, Berkshire | £ 250,000 | BUY | 6 / 10 | 0.04 KM |
Nearby Properties
| Address | Price | Distance |
|---|---|---|
| 40 Queens Road | £ 345,000 | 0.03 KM |
| 34 Queens Road | £ 110,900 | 0.03 KM |
| 21 Queens Cottages | £ 180,000 | 0.08 KM |
| 13 Queens Cottages | £ 249,000 | 0.08 KM |
| 11 Queens Cottages | £ 187,000 | 0.08 KM |