Chancellors says ..
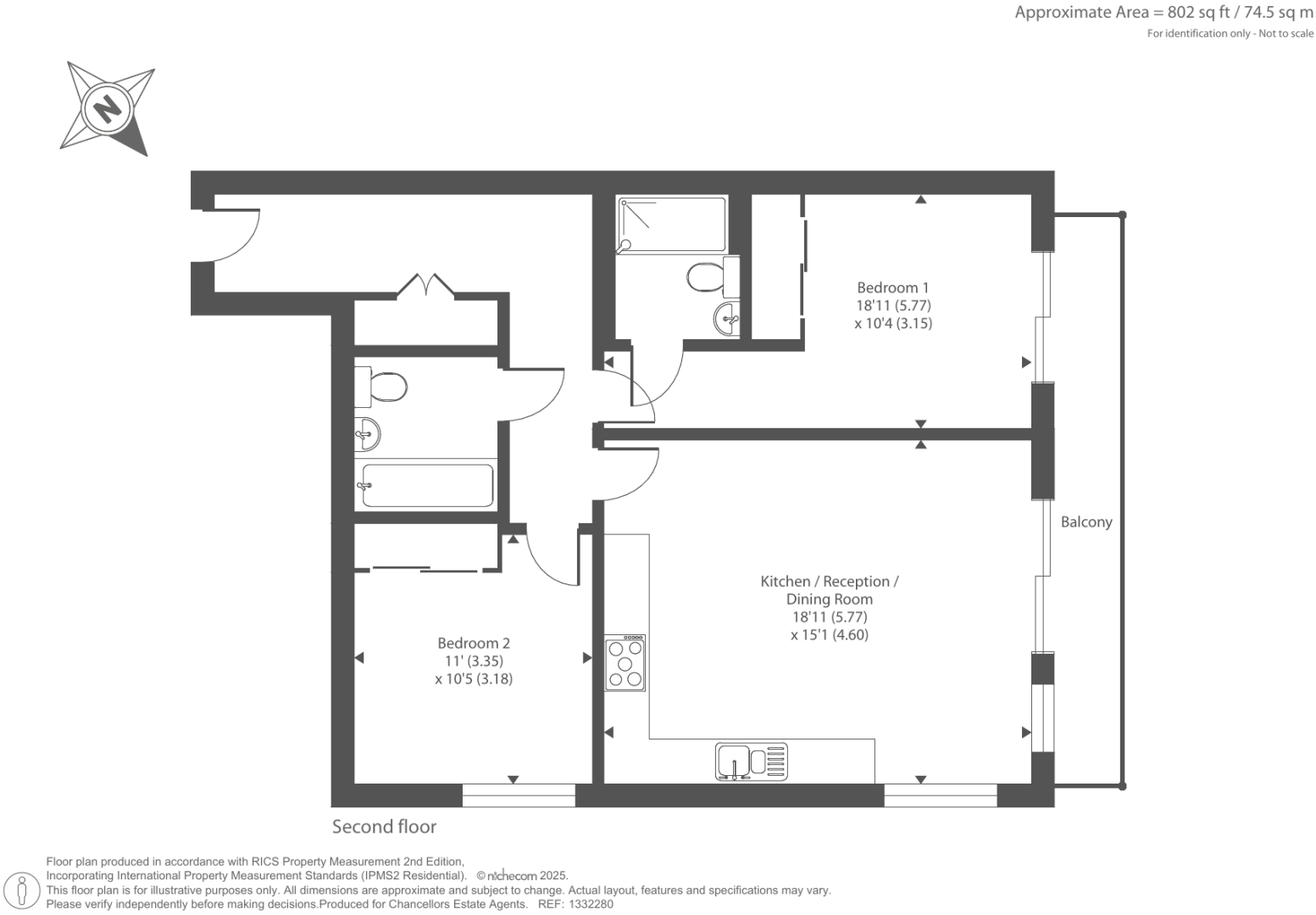
*TRACK VIEWS* A two bedroom, two bathroom, Newbury racecourse apartment with west facing balcony and track views. The apartment is not overlooked by other properties and has the corner design which gives bigger living room accomodation. With allocated parking.
Property Oracle says ..
Therefore, we give this property 6 / 10. *Disclaimer: This is our option and does constitute a recommendation or financial advice. Do your own research. *
- Price
- 8
- Condition
- 9
- Location
- 7
- Land
- 3
- Bedrooms
- 2
- Bathrooms
- 2
- Sqft (est)
- 802.00
The heatmap indicates the level of crime in the area. The color of the heatmap indicates the crime severity and recency.
Metrics Year-on-Year
- Average area value
- 358,606.00 £Decreased by 9.74 %
- Est sale value
- 359,296.00 £Increased by 27.27 %
- Average area rental value
- 1,448.00 £/moIncreased by 6.78 %
- Est letting value
- 802.00 £/moUnchanged by 0.00 %
- Est rental Yield
- 4.85 %Increased by 18.29 %
- Crime Rate
- 9.00 %Unchanged by 0.00 %
from 397,302.00 £
from 282,304.00 £
from 1,356.00 £/mo
from 802.00 £/mo
from 4.10 %
from 9.00 %
Agent Activity
Chancellors created the listing.
Nearby Schools
| Name | Type | Ofsted | Distance |
|---|---|---|---|
| Engaging Potential | Other Independent Special School | Good | 1.13 KM |
| Fir Tree Primary School And Nursery | Academy Sponsor Led | Requires improvement | 1.35 KM |
| The Willows Primary School | Community School | Requires improvement | 1.50 KM |
| St Joseph'S Catholic Primary School | Voluntary Aided School | Good | 1.58 KM |
| Victoria Park Nursery School & Family Hub | Local Authority Nursery School | Outstanding | 2.13 KM |
Images
Nearby Streets
| Name | Average Price | Average Sqft | Distance |
|---|---|---|---|
| Filly Close | £ 0 | 0 | 0.00 KM |
| Alder Close | £ 0 | 0 | 0.00 KM |
| Fontwell Road | £ 0 | 0 | 0.00 KM |
| Arnhem Road | £ 0 | 0 | 0.00 KM |
| Popes Place | £ 475,000 | 0 | 0.00 KM |
Nearby Transport
| Name | NLC | TLC | Distance |
|---|---|---|---|
| Newbury Racecourse | 3071 | NRC | 0.50 KM |
| Newbury | 3074 | NBY | 2.16 KM |
| Thatcham | 3152 | THA | 6.67 KM |
Nearby Listings
| Address | Price | Type | Score | Distance |
|---|---|---|---|---|
| Newbury, Berkshire, RG14 | £ 285,000 | BUY | 6 / 10 | 0.00 KM |
| Kingman Way, Newbury, RG14 | £ 220,000 | BUY | 6 / 10 | 0.00 KM |
| Southmead House, Kingman Way, Newbury, RG14 7FY | £ 225,000 | BUY | 6 / 10 | 0.01 KM |
| Kingman Way, Newbury, RG14 | £ 285,000 | BUY | 6 / 10 | 0.01 KM |
| Kingman Way, Newbury, RG14 | £ 270,000 | BUY | 6 / 10 | 0.03 KM |
Nearby Properties
| Address | Price | Distance |
|---|---|---|
| 18 Farriers House | £ 318,000 | 0.10 KM |
| Unit 40a Kingfisher Court | £ 55,000 | 0.39 KM |
| 14 Cormorant Wood | £ 207,000 | 0.60 KM |
| 21 Cormorant Wood | £ 167,995 | 0.60 KM |
| 24 Cormorant Wood | £ 199,950 | 0.60 KM |