St. Peters Street, Sandwich, Kent, CT13
By Regal Estates
£ 479,000
Reviews
3 out of 5 stars
Regal Estates says ..
Picture Postcard & Chocolate Box could describe the look of this attractive period home which is situated within the heart of the town in the desirable St Peters Street. This characterful grade II listed property features all that you'd expect with its array of exposed beams & Inglenook fireplace.
Property Oracle says ..
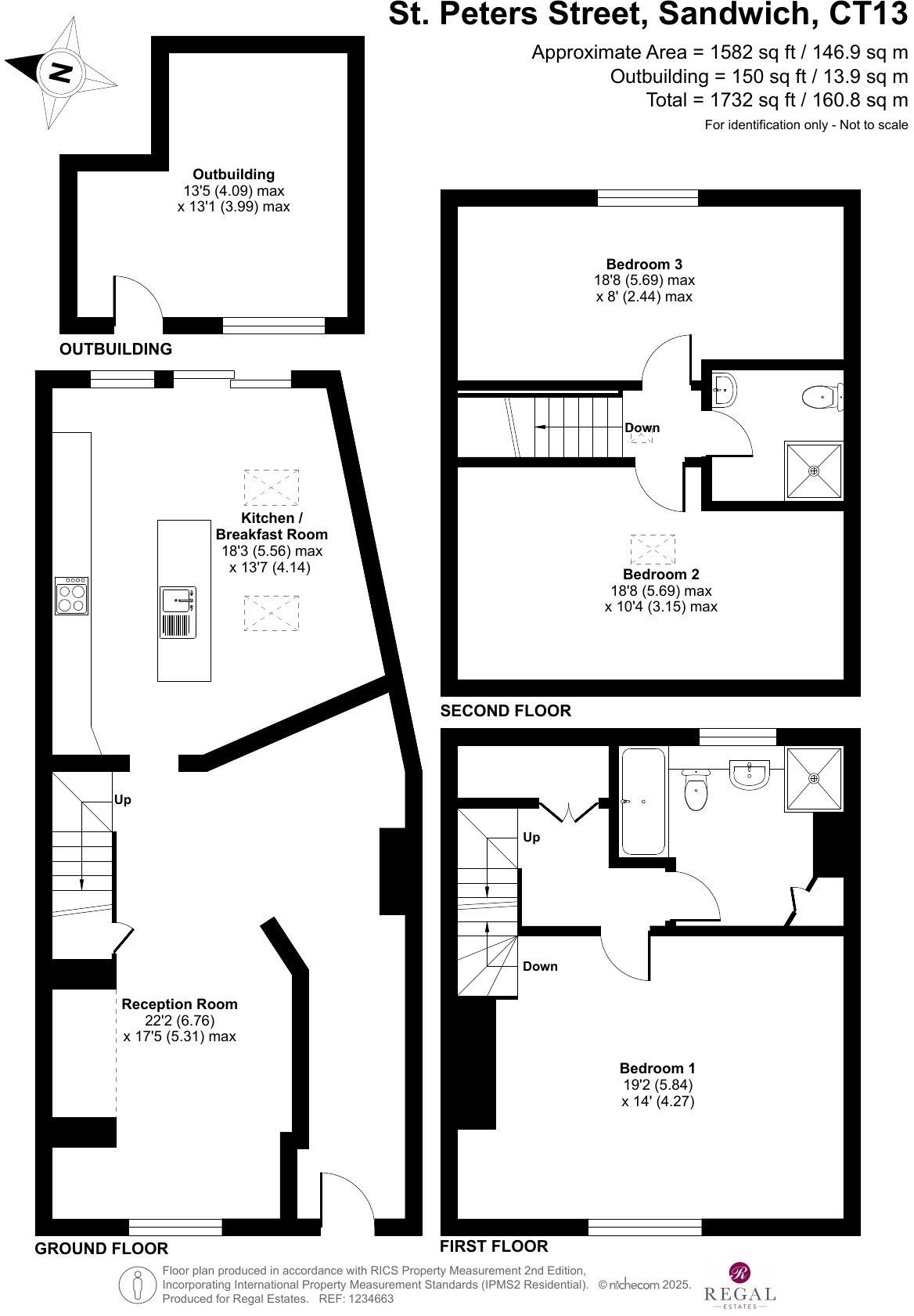
This is a charming terraced property located in the historic town of Sandwich, Kent. The house boasts many original period features, including exposed beams and fireplaces, adding to its character and appeal. The property offers three bedrooms and two bathrooms, making it suitable for families or couples. The kitchen has been modernised. The property also benefits from a garden, providing outdoor space. While generally well-maintained, some areas of the house could benefit from updating. The location is ideal, with close proximity to local schools, transportation, and amenities. Overall, this property offers a blend of historic charm and modern living in a desirable location.
Therefore, we give this property 7 / 10. *Disclaimer: This is our option and does constitute a recommendation or financial advice. Do your own research. *
- Price
- 7
- Condition
- 7
- Location
- 8
- Land
- 6
- Bedrooms
- 3
- Bathrooms
- 2
- Sqft (est)
- 1,732.00
The heatmap indicates the level of crime in the area. The color of the heatmap indicates the crime severity and recency.
Metrics Year-on-Year
- Average area value
- 730,000.00 £Increased by 46.62 %
- Est sale value
- 659,892.00 £Increased by 8.86 %
- Average area rental value
- 735.00 £/moDecreased by 40.63 %
- Est letting value
- 0.00 £/mo
- Est rental Yield
- 1.21 %Decreased by 59.40 %
- Crime Rate
- 79.00 %Unchanged by 0.00 %
Agent Activity
Regal Estates created the listing.
Nearby Schools
| Name | Type | Ofsted | Distance |
|---|---|---|---|
| Sandwich Infant School | Academy Converter | 0.55 KM | |
| Sir Roger Manwood'S School | Academy Converter | Outstanding | 0.58 KM |
| Sandwich Junior School | Community School | Outstanding | 0.87 KM |
| Sandwich Technology School | Academy Converter | Good | 1.21 KM |
| Worth Primary School | Academy Converter | 2.15 KM |
Images
Nearby Streets
| Name | Average Price | Average Sqft | Distance |
|---|---|---|---|
| Church Street St. Clements | £ 495,000 | 0 | 0.00 KM |
| Pillory Gate | £ 0 | 0 | 0.00 KM |
| Ramsgate Road | £ 200,000 | 0 | 0.00 KM |
| Church Street St. Marys | £ 0 | 0 | 0.00 KM |
| The Butts | £ 465,000 | 0 | 0.00 KM |
Nearby Transport
| Name | NLC | TLC | Distance |
|---|---|---|---|
| Sandwich | 5026 | SDW | 0.55 KM |
| Minster | 5019 | MSR | 6.62 KM |
| Deal | 5011 | DEA | 8.60 KM |
| Walmer | 5041 | WAM | 9.19 KM |
Nearby Listings
| Address | Price | Type | Score | Distance |
|---|---|---|---|---|
| St. Peters Street, Sandwich, Kent, CT13 | £ 500,000 | BUY | 7 / 10 | 0.00 KM |
| St. Peters Street, Sandwich, Kent, CT13 | £ 479,000 | BUY | 7 / 10 | 0.00 KM |
| King Street, Sandwich | £ 450,000 | BUY | 7 / 10 | 0.05 KM |
| King Street, Sandwich | £ 435,000 | BUY | 6 / 10 | 0.06 KM |
| Seven Post Alley, Sandwich | £ 285,000 | BUY | 6 / 10 | 0.07 KM |
Nearby Properties
| Address | Price | Distance |
|---|---|---|
| 14 St Peters Street | £ 360,000 | 0.01 KM |
| The Lodge | £ 199,995 | 0.01 KM |
| 16 St Peters Street | £ 249,950 | 0.01 KM |
| 24 St Peters Street | £ 30,000 | 0.01 KM |
| 12 St Peters Street | £ 108,500 | 0.01 KM |