WR
Flat 3, 31 Sansome Walk, Worcester, Worcestershire.
By WR Estate Agents
£ 125,000
Reviews
3 out of 5 stars
WR Estate Agents says ..
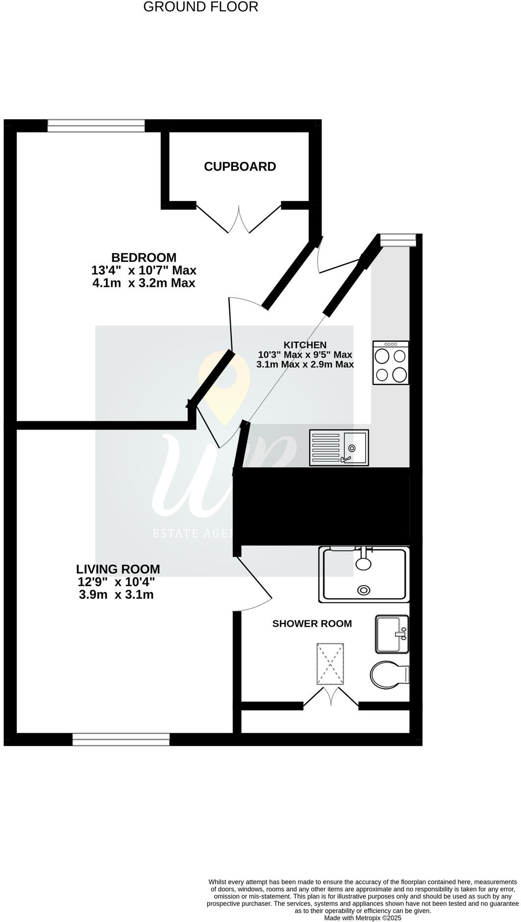
Located on the top floor of a well-maintained period-style building, this spacious one-bedroom apartment is perfectly positioned in the heart of Worcester city centre, offering a superb blend of character, convenience, and practicality. Ideal for first-time buyers, investors, or those looking for...
Property Oracle says ..
Therefore, we give this property 6 / 10. *Disclaimer: This is our option and does constitute a recommendation or financial advice. Do your own research. *
- Price
- 7
- Condition
- 8
- Location
- 7
- Land
- 3
- Bedrooms
- 1
- Bathrooms
- 1
- Sqft (est)
- 368.13
The heatmap indicates the level of crime in the area. The color of the heatmap indicates the crime severity and recency.
Metrics Year-on-Year
- Average area value
- 241,538.00 £Increased by 19.85 %
- Est sale value
- 116,697.21 £Increased by 20.99 %
- Average area rental value
- 906.00 £/moIncreased by 1.12 %
- Est letting value
- 368.13 £/moUnchanged by 0.00 %
- Est rental Yield
- 4.50 %Decreased by 15.73 %
- Crime Rate
- 9.00 %Unchanged by 0.00 %
from 201,530.00 £
from 96,450.06 £
from 896.00 £/mo
from 368.13 £/mo
from 5.34 %
from 9.00 %
Agent Activity
WR Estate Agents created the listing.
Nearby Schools
| Name | Type | Ofsted | Distance |
|---|---|---|---|
| Royal Grammar School Worcester | Other Independent School | 0.44 KM | |
| St George'S Cofe Primary School | Voluntary Aided School | Requires improvement | 0.81 KM |
| St George'S Catholic Primary School | Voluntary Aided School | Good | 0.82 KM |
| Bishop Perowne Cofe College | Academy Converter | Good | 0.92 KM |
| Riversides School | Academy Special Sponsor Led | Good | 0.97 KM |
Images
Nearby Streets
| Name | Average Price | Average Sqft | Distance |
|---|---|---|---|
| Mc Naught Place | £ 0 | 0 | 0.00 KM |
| Hop Market | £ 0 | 0 | 0.00 KM |
| Harrington Road | £ 216,000 | 0 | 0.00 KM |
| Hebb Street | £ 225,000 | 0 | 0.00 KM |
| Netherton Court | £ 0 | 0 | 0.00 KM |
Nearby Transport
| Name | NLC | TLC | Distance |
|---|---|---|---|
| Worcester Foregate Street | 4893 | WOF | 0.32 KM |
| Worcester Shrub Hill | 4891 | WOS | 1.43 KM |
| Worcestershire Parkway | 6580 | WOP | 8.28 KM |
Nearby Listings
| Address | Price | Type | Score | Distance |
|---|---|---|---|---|
| Flat 3, 31 Sansome Walk, Worcester, Worcestershire. | £ 125,000 | BUY | 6 / 10 | 0.00 KM |
| Sansome Walk, Worcester, WR1 | £ 120,000 | BUY | 6 / 10 | 0.01 KM |
| Sansome Walk, Worcester, Worcestershire, WR1 | £ 110,000 | BUY | 6 / 10 | 0.03 KM |
| Sansome Mews, Worcester | £ 180,000 | BUY | Unknown | 0.05 KM |
| Sansome Walk, Worcester, Worcestershire, WR1 | £ 220,000 | BUY | 6 / 10 | 0.06 KM |
Nearby Properties
| Address | Price | Distance |
|---|---|---|
| 50 Sansome Walk | £ 74,000 | 0.05 KM |
| 52 Sansome Walk | £ 150,000 | 0.05 KM |
| 36 Sansome Walk | £ 84,950 | 0.05 KM |
| 42 Sansome Walk | £ 31,750 | 0.05 KM |
| 34 Sansome Walk | £ 230,000 | 0.05 KM |