Church Avenue, Warmley, Bristol, BS30 5JJ
By Michael Nicholas
£ 650,000
Reviews
3 out of 5 stars
Michael Nicholas says ..
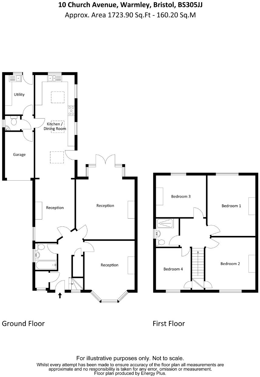
Michael Nicholas Estate Agents are pleased to offer this substantial and much improved 1930's family home that is conveniently and equidistantly located between the town centers of Bristol and Bat...
Property Oracle says ..
This four-bedroom, two-bathroom detached house situated on Church Avenue, Warmley, Bristol presents itself as a well-maintained family home. The property’s interior features modern updates with various living spaces, a renovated kitchen, and updated bathrooms. The photographs highlight a large, landscaped garden complete with paved patio areas, lawn space, mature trees, a greenhouse and separate shed. This outdoor space offers significant potential for family use and relaxation.
The location in Warmley offers a balance of suburban peace and proximity to larger urban areas like Bristol and Bath, with nearby ‘Good’ Ofsted-rated schools adding to its family appeal. The property appears to have been well-maintained and updated, enhancing its current market value and overall appeal to potential buyers.
However, a detailed analysis requires more precise local market data such as the average property price and price per square foot for similar properties within the same immediate vicinity. While the given list price seems reasonable based on the available data, more precise figures would refine this assessment.
Therefore, we give this property 7 / 10. *Disclaimer: This is our option and does constitute a recommendation or financial advice. Do your own research. *
- Price
- 7
- Condition
- 8
- Location
- 7
- Land
- 8
- Bedrooms
- 4
- Bathrooms
- 2
- Sqft (est)
- 1,723.90
The heatmap indicates the level of crime in the area. The color of the heatmap indicates the crime severity and recency.
Metrics Year-on-Year
- Average area value
- 351,700.00 £Decreased by 2.90 %
- Est sale value
- 739,553.10 £Increased by 28.06 %
- Average area rental value
- 1,243.00 £/moDecreased by 9.34 %
- Est letting value
- 1,723.90 £/moUnchanged by 0.00 %
- Est rental Yield
- 4.24 %Decreased by 6.61 %
- Crime Rate
- 3.00 %Unchanged by 0.00 %
Agent Activity
Michael Nicholas created the listing.
Nearby Schools
| Name | Type | Ofsted | Distance |
|---|---|---|---|
| St Barnabas Cofe Primary School | Voluntary Controlled School | Good | 0.76 KM |
| Warmley Park School | Community Special School | Good | 1.08 KM |
| Digitech Studio School | Studio Schools | Requires improvement | 1.34 KM |
| Redfield Edge Primary School | Community School | Good | 1.41 KM |
| Sir Bernard Lovell Academy | Academy Sponsor Led | Requires improvement | 1.57 KM |
Images
Nearby Streets
| Name | Average Price | Average Sqft | Distance |
|---|---|---|---|
| Old School Close | £ 0 | 0 | 0.00 KM |
| The Dramway | £ 0 | 0 | 0.00 KM |
| Tweeney Lane | £ 446,667 | 0 | 0.00 KM |
| Millbrook Close | £ 350,000 | 0 | 0.00 KM |
| Highcroft | £ 0 | 0 | 0.00 KM |
Nearby Transport
| Name | NLC | TLC | Distance |
|---|---|---|---|
| Keynsham | 3237 | KYN | 5.32 KM |
Nearby Listings
| Address | Price | Type | Score | Distance |
|---|---|---|---|---|
| Church Avenue Warmley Bristol | £ 475,000 | BUY | 7 / 10 | 0.06 KM |
| Rogers Walk, Bridgeyate, Bristol | £ 675,000 | BUY | 7 / 10 | 0.12 KM |
| London Road, Warmley, Bristol | £ 425,000 | BUY | Unknown | 0.14 KM |
| Howard Walk, Bridgeyate, Bristol | £ 650,000 | BUY | Unknown | 0.14 KM |
| Brunel Close, Warmley, Bristol | £ 650,000 | BUY | 7 / 10 | 0.24 KM |
Nearby Properties
| Address | Price | Distance |
|---|---|---|
| 13 Church Avenue | £ 540,000 | 0.06 KM |
| 7 Church Avenue | £ 272,000 | 0.06 KM |
| 5 Church Avenue | £ 360,000 | 0.06 KM |
| 4 Church Avenue | £ 385,000 | 0.06 KM |
| 10 Church Avenue | £ 274,950 | 0.06 KM |