Hall & Scott says ..
Top floor apartment in a prime location close within a short walk to the town and seafront.
Property Oracle says ..
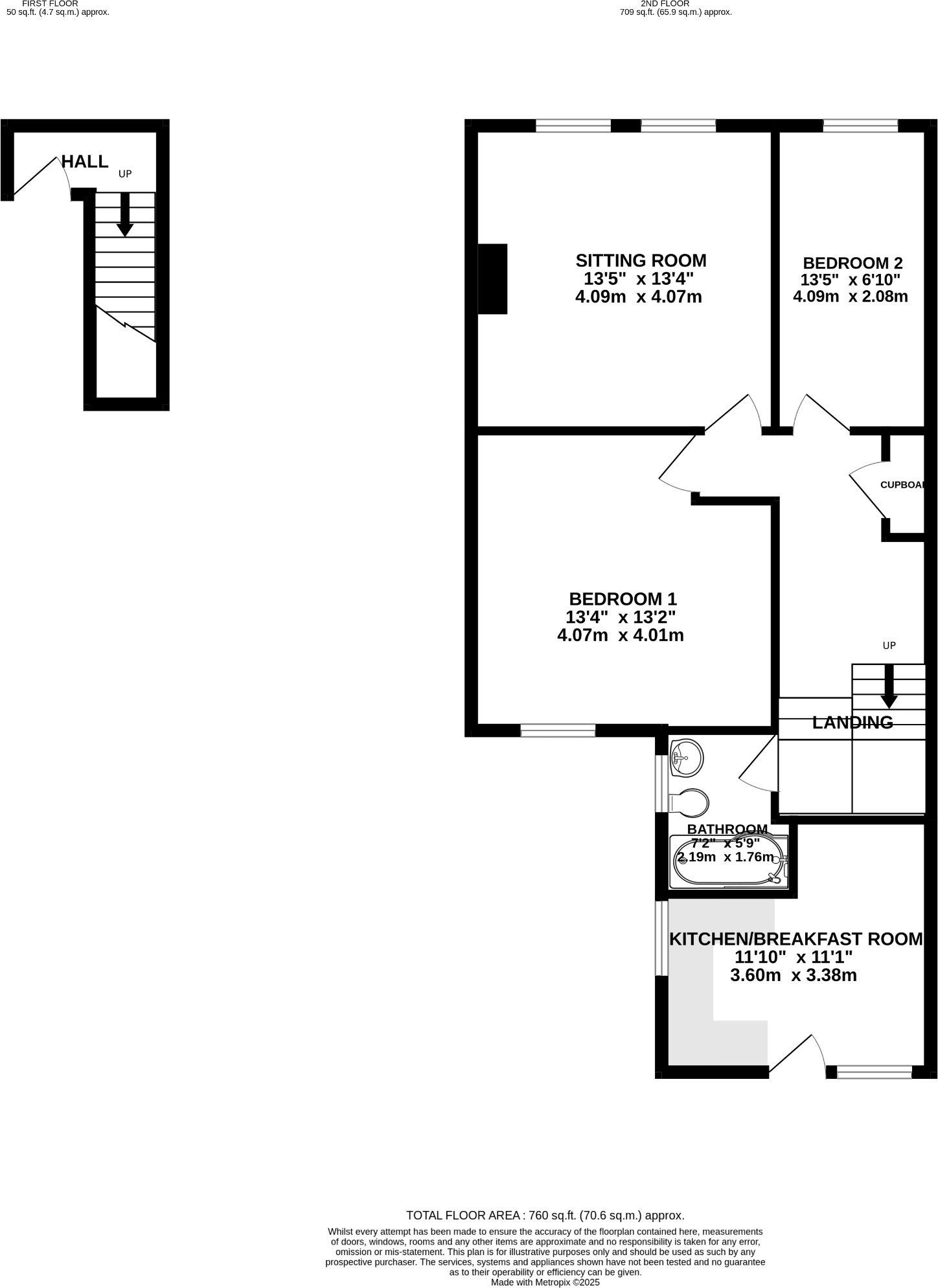
This is a two-bedroom flat located on Morton Road in Exmouth Town. The property is in reasonable condition and benefits from its proximity to local amenities, including the train station and schools. The flat offers 760 sqft of living space. While it’s a flat, land isn’t a major feature. The asking price of £189,950 seems reasonable compared to average property prices in the area.
Therefore, we give this property 6 / 10. *Disclaimer: This is our option and does constitute a recommendation or financial advice. Do your own research. *
- Price
- 7
- Condition
- 7
- Location
- 7
- Land
- 3
- Bedrooms
- 2
- Bathrooms
- 1
- Sqft (est)
- 760.00
The heatmap indicates the level of crime in the area. The color of the heatmap indicates the crime severity and recency.
Metrics Year-on-Year
- Average area value
- 353,125.00 £Increased by 13.69 %
- Est sale value
- 326,040.00 £Increased by 22.92 %
- Average area rental value
- 1,100.00 £/moDecreased by 4.18 %
- Est letting value
- 760.00 £/moUnchanged by 0.00 %
- Est rental Yield
- 3.74 %Decreased by 15.77 %
- Crime Rate
- 32.00 %Unchanged by 0.00 %
Agent Activity
Hall & Scott created the listing.
Nearby Schools
| Name | Type | Ofsted | Distance |
|---|---|---|---|
| The Beacon Church Of England (Va) Primary School | Voluntary Aided School | Good | 0.58 KM |
| Exeter Road Community Primary School | Foundation School | Good | 0.88 KM |
| Exeter Royal Academy For Deaf Education | Non-maintained Special School | Requires improvement | 1.36 KM |
| St Joseph'S Catholic Primary School, Exmouth | Academy Converter | Good | 1.58 KM |
| Exmouth Community College | Academy Converter | Requires improvement | 1.67 KM |
Images
Nearby Streets
| Name | Average Price | Average Sqft | Distance |
|---|---|---|---|
| Beacon Hill | £ 0 | 0 | 0.00 KM |
| South Street | £ 0 | 0 | 0.00 KM |
| Albion Terrace | £ 200,000 | 0 | 0.00 KM |
| Southern Road | £ 425,000 | 0 | 0.00 KM |
| Admirals Court | £ 119,488 | 0 | 0.00 KM |
Nearby Transport
| Name | NLC | TLC | Distance |
|---|---|---|---|
| Exmouth | 5756 | EXM | 0.54 KM |
| Starcross | 3413 | SCS | 3.44 KM |
| Dawlish Warren | 3409 | DWW | 3.53 KM |
| Lympstone Village | 5761 | LYM | 3.65 KM |
| Lympstone Commando | 5762 | LYC | 5.52 KM |
Nearby Listings
| Address | Price | Type | Score | Distance |
|---|---|---|---|---|
| Morton Road, Exmouth | £ 189,950 | BUY | 6 / 10 | 0.00 KM |
| Morton Road, Exmouth, EX8 | £ 230,000 | BUY | 6 / 10 | 0.02 KM |
| Morton Road, Exmouth | £ 175,000 | BUY | 5 / 10 | 0.02 KM |
| Morton Road, Exmouth | £ 190,000 | BUY | 4 / 10 | 0.02 KM |
| Morton Road, Exmouth | £ 200,000 | BUY | 6 / 10 | 0.02 KM |
Nearby Properties
| Address | Price | Distance |
|---|---|---|
| 21 Morton Road | £ 186,000 | 0.02 KM |
| 45 Morton Road | £ 340,000 | 0.07 KM |
| 39 Morton Road | £ 272,000 | 0.07 KM |
| 46 Victoria Road | £ 295,000 | 0.10 KM |
| 47 Victoria Road | £ 275,000 | 0.10 KM |