EB&P says ..
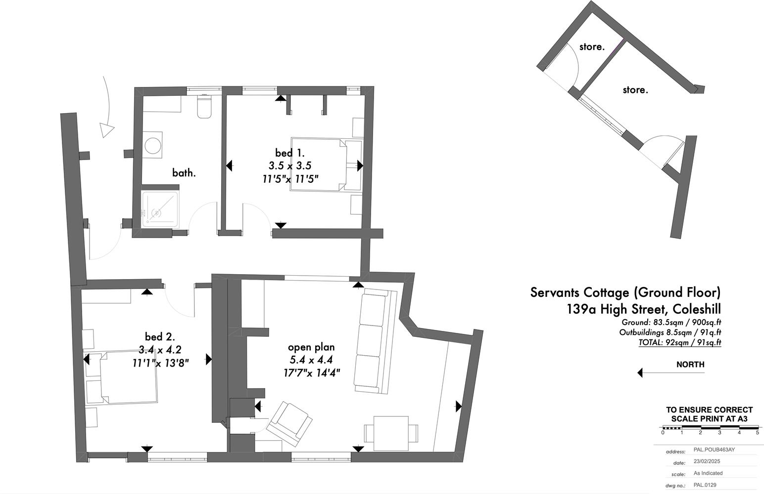
Stunning Ground Floor Apartment in a Prestigious Georgian Estate, “Servant’s Cottage” High Street, Coleshill -First floor apartment also available A rare opportunity to acquire a beautifully converted ground-floor apartment within a historic Georgian estate, recently transformed to an ex...
Property Oracle says ..
Therefore, we give this property 7 / 10. *Disclaimer: This is our option and does constitute a recommendation or financial advice. Do your own research. *
- Price
- 7
- Condition
- 8
- Location
- 8
- Land
- 6
- Bedrooms
- 2
- Bathrooms
- 1
- Sqft (est)
- 898.79
The heatmap indicates the level of crime in the area. The color of the heatmap indicates the crime severity and recency.
Metrics Year-on-Year
- Average area value
- 295,000.00 £Decreased by 21.35 %
- Est sale value
- 353,224.47 £Increased by 3.97 %
- Average area rental value
- 1,000.00 £/moDecreased by 13.57 %
- Est letting value
- 898.79 £/moUnchanged by 0.00 %
- Est rental Yield
- 4.07 %Increased by 10.00 %
- Crime Rate
- 69.00 %Unchanged by 0.00 %
from 375,095.00 £
from 339,742.62 £
from 1,157.00 £/mo
from 898.79 £/mo
from 3.70 %
from 69.00 %
Agent Activity
EB&P created the listing.
Nearby Schools
| Name | Type | Ofsted | Distance |
|---|---|---|---|
| Coleshill Church Of England Primary School | Academy Converter | 0.38 KM | |
| St Edward'S Catholic Primary School | Academy Converter | 0.54 KM | |
| Woodlands | Academy Special Converter | 1.13 KM | |
| High Meadow Community School | Community School | Outstanding | 1.28 KM |
| The Coleshill School | Academy Converter | Good | 1.33 KM |
Images
Nearby Streets
| Name | Average Price | Average Sqft | Distance |
|---|---|---|---|
| Walkers Way | £ 0 | 0 | 0.00 KM |
| Park Avenue | £ 0 | 0 | 0.00 KM |
| Wood Close | £ 0 | 0 | 0.00 KM |
| Ferndale Road | £ 0 | 0 | 0.00 KM |
| Orchard Close | £ 0 | 0 | 0.00 KM |
Nearby Transport
| Name | NLC | TLC | Distance |
|---|---|---|---|
| Coleshill Parkway | 9882 | CEH | 2.21 KM |
| Water Orton | 1121 | WTO | 4.85 KM |
| Birmingham International | 1215 | BHI | 5.62 KM |
| Marston Green | 1034 | MGN | 6.50 KM |
| Hampton-In-Arden | 1033 | HIA | 7.57 KM |
Nearby Listings
| Address | Price | Type | Score | Distance |
|---|---|---|---|---|
| High Street, Coleshill, Birmingham | £ 275,000 | BUY | 7 / 10 | 0.00 KM |
| High Street, Coleshill | £ 425,000 | BUY | 7 / 10 | 0.01 KM |
| High Street, Coleshill | £ 365,000 | BUY | 7 / 10 | 0.02 KM |
| High Street, Coleshill | £ 650,000 | BUY | 6 / 10 | 0.02 KM |
| High Street, Coleshill, Birmingham, Warwickshire, B46 | £ 275,000 | BUY | 7 / 10 | 0.10 KM |
Nearby Properties
| Address | Price | Distance |
|---|---|---|
| 7 Maxstoke Lane | £ 375,000 | 0.10 KM |
| 1 Maxstoke Lane | £ 195,000 | 0.10 KM |
| 5 Maxstoke Lane | £ 217,500 | 0.10 KM |
| 9 Maxstoke Lane | £ 233,334 | 0.10 KM |
| 15 Maxstoke Lane | £ 775,000 | 0.10 KM |