North Street, Ripon, North Yorkshire HG4 1JZ
By McCarthy Stone
£ 349,999
Reviews
3 out of 5 stars
McCarthy Stone says ..
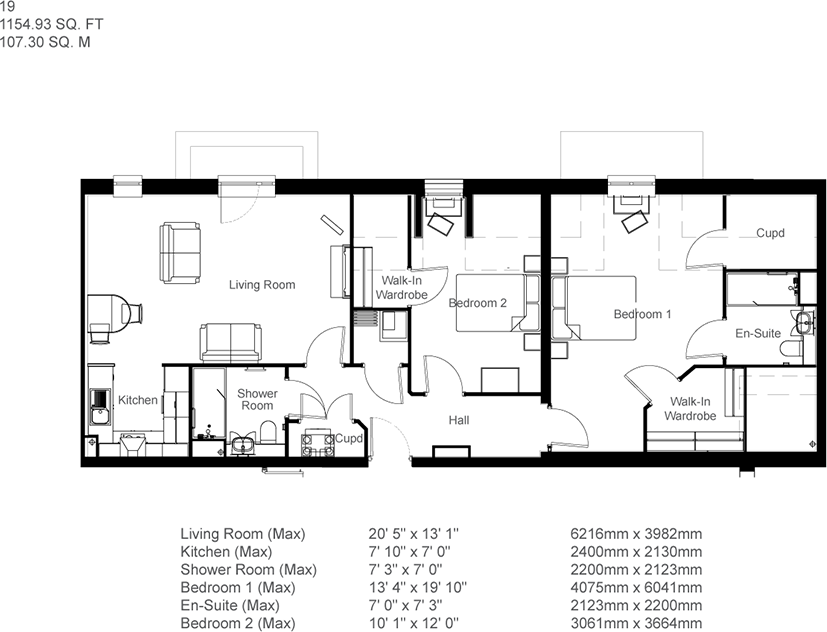
Apartment 19 is a beautiful two-bedroom apartment at our stunning Dawson Grange development in Ripon.
Property Oracle says ..
The property is a 2-bedroom apartment in Ripon, North Yorkshire, a historic cathedral city with amenities and schools nearby. The apartment is in excellent condition, with modern fixtures and fittings, and residents have access to a communal garden. The list price appears high compared to other nearby apartments, however, more information on the apartment size is needed for a conclusive price assessment.
Therefore, we give this property 7 / 10. *Disclaimer: This is our option and does constitute a recommendation or financial advice. Do your own research. *
- Price
- 5
- Condition
- 10
- Location
- 8
- Land
- 7
- Bedrooms
- 2
- Bathrooms
- 0
- Lot (est)
- 1,154.93
The heatmap indicates the level of crime in the area. The color of the heatmap indicates the crime severity and recency.
Metrics Year-on-Year
- Average area value
- 314,000.00 £Increased by 7.32 %
- Average area rental value
- 800.00 £/moDecreased by 31.68 %
- Est rental Yield
- 3.06 %Decreased by 36.25 %
- Crime Rate
- 19.00 %Unchanged by 0.00 %
Agent Activity
McCarthy Stone created the listing.
Nearby Schools
| Name | Type | Ofsted | Distance |
|---|---|---|---|
| Holy Trinity Cofe Infant School | Voluntary Controlled School | Requires improvement | 0.48 KM |
| Holy Trinity Cofe Junior School | Voluntary Controlled School | Good | 0.79 KM |
| Ripon Cathedral Church Of England Primary School | Voluntary Aided School | Good | 0.86 KM |
| St Wilfrid'S Catholic Primary School | Voluntary Aided School | Outstanding | 0.95 KM |
| Moorside Primary School & Nursery | Community School | Good | 1.70 KM |
Images
Nearby Streets
| Name | Average Price | Average Sqft | Distance |
|---|---|---|---|
| The Crescent | £ 950,000 | 0 | 0.00 KM |
| Victoria Terrace | £ 0 | 0 | 0.00 KM |
| College Walk (aka Killiecrankie) | £ 0 | 0 | 0.00 KM |
| Old Market Place | £ 0 | 0 | 0.00 KM |
| Lavender Alley | £ 0 | 0 | 0.00 KM |
Nearby Listings
| Address | Price | Type | Score | Distance |
|---|---|---|---|---|
| North Street, Ripon, North Yorkshire HG4 1JZ | £ 349,999 | BUY | 7 / 10 | 0.00 KM |
| Dawson Grange, North Street, Ripon, HG4 1JZ | £ 195,000 | BUY | 6 / 10 | 0.04 KM |
| Dawson Grange, North Street, Ripon, HG4 1JZ | £ 230,000 | BUY | 7 / 10 | 0.05 KM |
| Dawson Grange, North Street, Ripon, HG4 1JZ | £ 300,000 | BUY | 6 / 10 | 0.05 KM |
| Dawson Grange, North Street, Ripon, HG4 1JZ | £ 220,000 | BUY | 6 / 10 | 0.06 KM |
Nearby Properties
| Address | Price | Distance |
|---|---|---|
| 5 North Road | £ 150,000 | 0.07 KM |
| 4 North Road | £ 178,000 | 0.07 KM |
| 9 Tower Road | £ 196,000 | 0.15 KM |
| 15 Tower Road | £ 230,000 | 0.15 KM |
| 19 Tower Road | £ 217,095 | 0.15 KM |