Knutsford Road, Alderley Edge, SK9
By Stuart Rushton & Co
£ 550,000
Reviews
3 out of 5 stars
Stuart Rushton & Co says ..
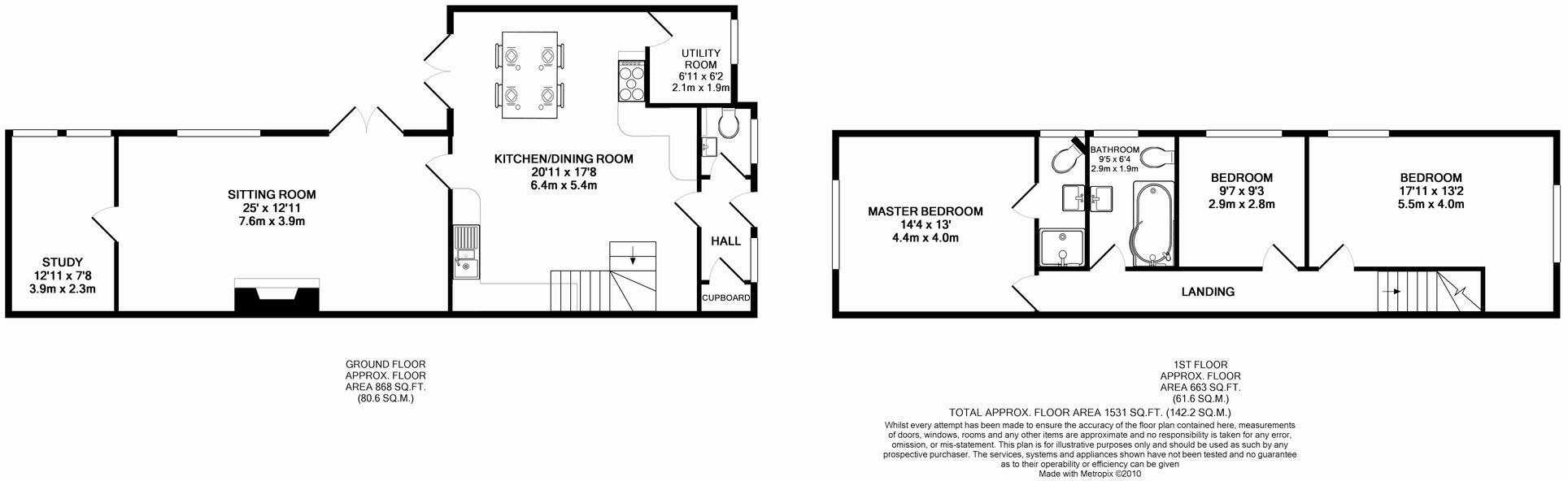
An excellent detached period property in Alderley Edge, offering versatile family living, character features, spacious accommodation, open-plan kitchen, generous lounge/dining area, study, 3 bedrooms, private courtyard garden, off-road parking, no chain.
Property Oracle says ..
This is a detached property on Knutsford Road, Alderley Edge, offering three bedrooms and two bathrooms. The house spans 1,530.63 sqft. The property benefits from its location in a sought-after area, with good access to schools and transportation. While generally well-maintained, some areas could use updating. The garden is present but not particularly large. Priced at £550,000, it presents reasonable value compared to the local average price per square foot.
Therefore, we give this property 6 / 10. *Disclaimer: This is our option and does constitute a recommendation or financial advice. Do your own research. *
- Price
- 7
- Condition
- 7
- Location
- 7
- Land
- 5
- Bedrooms
- 3
- Bathrooms
- 2
- Sqft (est)
- 1,530.63
The heatmap indicates the level of crime in the area. The color of the heatmap indicates the crime severity and recency.
Metrics Year-on-Year
- Average area value
- 646,257.00 £Increased by 0.56 %
- Est sale value
- 999,501.39 £Increased by 46.09 %
- Average area rental value
- 2,875.00 £/moIncreased by 74.77 %
- Est letting value
- 3,061.26 £/moIncreased by 100.00 %
- Est rental Yield
- 5.34 %Increased by 73.94 %
- Crime Rate
- 0.00 %
Agent Activity
Stuart Rushton & Co created the listing.
Nearby Schools
| Name | Type | Ofsted | Distance |
|---|---|---|---|
| Lindow Community Primary School | Community School | Good | 1.44 KM |
| Ashdene Primary School | Community School | Outstanding | 2.70 KM |
| David Lewis School | Non-maintained Special School | Good | 2.79 KM |
| The David Lewis Centre | Special Post 16 Institution | Outstanding | 2.79 KM |
| The Ryleys School | Other Independent School | 2.79 KM |
Images
Nearby Streets
| Name | Average Price | Average Sqft | Distance |
|---|---|---|---|
| Willow Close | £ 0 | 0 | 0.00 KM |
| Rotherwood Road | £ 0 | 0 | 0.00 KM |
| Springfield Drive | £ 0 | 0 | 0.00 KM |
Nearby Transport
| Name | NLC | TLC | Distance |
|---|---|---|---|
| Alderley Edge | 2760 | ALD | 3.54 KM |
| Chelford (Cheshire) | 2764 | CEL | 4.14 KM |
| Wilmslow | 2774 | WML | 5.26 KM |
| Styal | 2868 | SYA | 5.69 KM |
| Manchester Airport | 2961 | MIA | 6.63 KM |
Nearby Listings
| Address | Price | Type | Score | Distance |
|---|---|---|---|---|
| Knutsford Road, Alderley Edge, SK9 | £ 550,000 | BUY | 6 / 10 | 0.00 KM |
| Stanley Terrace, Knutsford Road, Alderley Edge | £ 449,950 | BUY | 7 / 10 | 0.03 KM |
| Prospect Cottages, Prospect Lane, Alderley Edge | £ 350,000 | BUY | 8 / 10 | 0.28 KM |
| Beswicks Lane, Alderley Edge, Cheshire, SK9 | £ 1,250,000 | BUY | Unknown | 0.30 KM |
| Gore Lane, Alderley Edge | £ 775,000 | BUY | Unknown | 0.35 KM |
Nearby Properties
| Address | Price | Distance |
|---|---|---|
| 96 Knutsford Road | £ 169,000 | 0.25 KM |
| 102 Knutsford Road | £ 337,500 | 0.25 KM |
| 104 Knutsford Road | £ 285,000 | 0.25 KM |
| Gorst Cottage | £ 685,000 | 0.25 KM |
| 100 Knutsford Road | £ 220,000 | 0.25 KM |